-
项目定位:倍米Better-me是一家专注研究健康食品精准营养的餐饮专门店,我们意在寻求能与现今年轻人思维,生活方式,行为习惯能产生契合的设计表达。平民化,轻松,微妙,有意思。
-
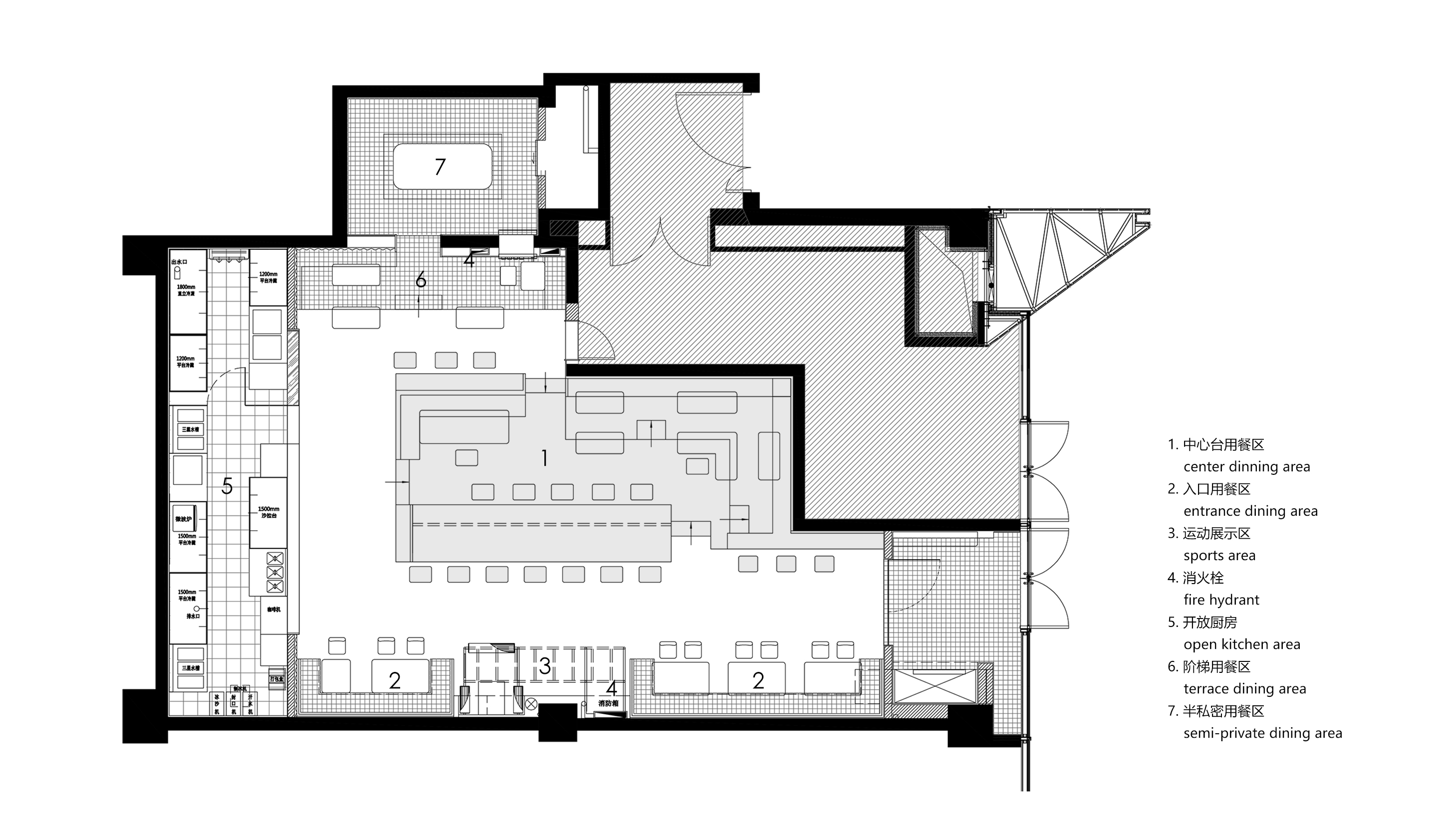
空间意境:1,对顾客行为的探讨。从座位的设置,行走轨迹,交流互动的各种可能性都做了研究。试图设置一种丰富与单纯,喧嚣与静谧,聚集与独处的环境状态。
2,对光设计的探讨。正面档口用不同的透光材料组合,全透,半透,朦胧,反射,半反射等,形成微妙的光影表皮,使内外区域产生视觉的复杂性和趣味性,人的活动使空间中的光流动性起来,形成生动的光影叠加的效果。
3,对材料单纯性的探讨。试图用单纯的材料表现出丰富的效果,中心区域木质的小建筑,包括顶地墙及座位,均由单一材料多层板(九厘)制成。7公分瓷砖形成地面,墙面,座椅,乃至下沉炕区,是和中心木质建筑的唱和。
4,对室内表现张力的探讨。光效的丰富性与单纯的木质区域的对比,木质区域的形式与瓷砖区域的形式的对比,整体空间的意味丰富起来。 -
空间布局:1.将一座单纯的木质小建筑置于室内的中心位置,营造多种尺度的就餐模式,形成材料单纯,形式丰富的效果。而外围的瓷砖是对这一形式的重复,在档口光影变化下,两种主要材料的对比产生出微妙的趣味。
2.将消防栓区域改造成模拟舞台,形成店内最富戏剧效果的空间,雪雾喷涌,单板人偶凌空飞出,运动魔镜,动感单车,舞台上循环播放的黑白经典映像,传达了众人互动的乐观情绪。
3.室外标识的设计形式,是对周围环境气氛的回应,室外成排的槐树平日清晰地映在店面南向的落地玻璃窗上,受这种光影痕迹密度的启发,产生了现在的方案。也与惯常的业态标识构成差异性。 -
设计选材:室内所用材料,夹板,墙砖,阳光板,加膜玻璃,水泥磨光地面均为大众化的普通建材及做法,在使用形式上力图产生新意,不追浮华,朴实而有趣。
-
用户体验:因为对于普通材料不同使用方式的坚持,室内的节点难度对于施工单位一直是考验,但完成后却是一个皆大欢喜的结果,甲方很满意,对应餐厅的经营方式和菜品,显现出和谐的效果。在新的餐饮形式涌现的潮流中,提供了一种非主流的可能性。
0
0

认证 · 让您身份增值
417