未来办公新叙事


- 项目类型:办公
- 项目地点:广州市
- 建筑面积:3200.0000㎡
- 项目造价:1100.0000万元
- 主案设计师: 熊立权
- 竣工时间:2024年1月
-
项目定位:潮洋科技主要板块业务是出海的跨境电商,结合公司性质,怎么体现作为亚马逊头部功能性服饰内衣品牌的实力和出海的特性,原本是独立两层写字楼,设计师对空间做了一个大动作的调整切部门楼板,前台和柱子的咬合如海上前行的轮船和向着巨浪光明的跌梯中空油然而生,让原有独立的两层有一个很好的使用和交付衔接,将空间的维度做了一个上下两层的递进延伸,塑造出一个松弛、开放又独立的秩序空间。
-
空间意境:本设计强调以“体块盒子链接”为核心,展现企业的使命、愿景和价值观。室内打破传统封闭式的功能分区规则,将整个空间划分成三个主体区域—前厅接待区、会议展示区、办公区。每个区域在保有自己特定功能属性的同时,又与其他区域产生功能场域的交互。一楼接待大厅同时拥有空间的体块感与建筑结构感,从空间整体出发,设计强调几何体块的相互咬合与精致的选材,以释放空间上下尺度和左右张力,催生“L”型转折线条、体块和光影之间的巧妙结合,两个L形体塑造出横向“光明窗口”的视觉指引,引导并梳理着行人轨迹。在某种意义上,我们希望从生活里提取一种公共情感、秩序和理性,它不是所谓的“压榨式的办公环境”,它应该有情感、有思想、有停留、有娱乐、有休闲,进入空间时就传递给每一个人,把最好远山景色的留给自己。
-
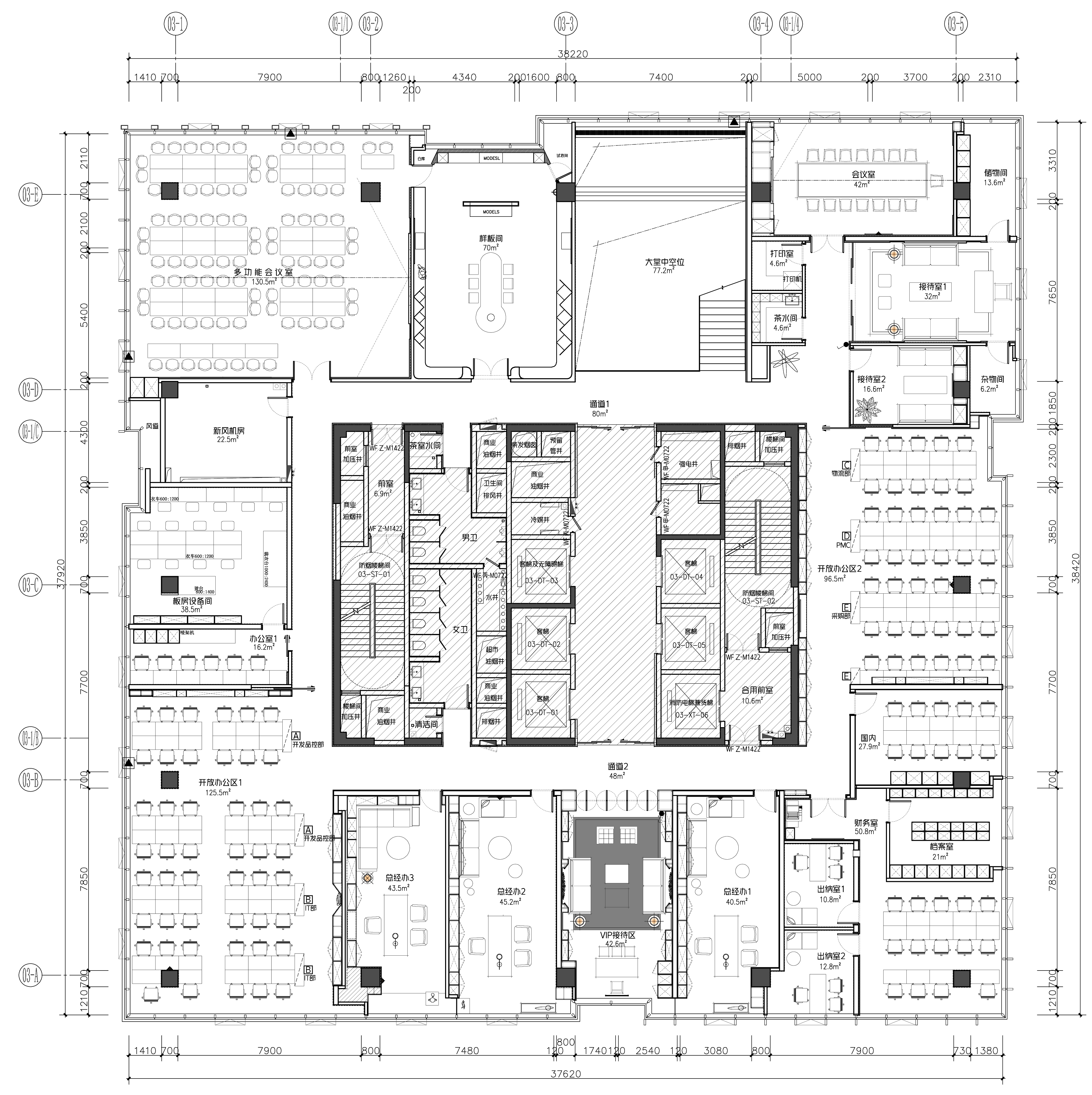
空间布局:结合原建筑电梯结构形成大的环绕式动线,梳理功能动线把办公与接待进行分区,一层主要作为开放办公和配套前厅面试的人事部和会议室,出电梯一瞬间就有上下和左右尺度的视觉张力,有一种豁然开朗的感觉,上下楼梯的衔接和无敌山景的吧台和接待区,闲暇休憩时也可以错落而坐来分享交流和游戏。此空间还将承载产品推介会,社交沙龙和员工节日福利的功能属性,电动门开启到开放的办公区,把大面积的玻璃幕墙优势放大,为空间带来极佳的采光和视野,阳光透过玻璃轻柔的进入室内,生成一种轻松、愉悦、美好的办公“室内环境”。二层主要为相对私密的办公区、总经办独立办公室和VIP接待室,开放和独立的有序设定,让空间提升了一个高级神秘感。
-
设计选材:作为公司内部连通11楼和12楼的效率通道,白色岩板楼梯被视为空间中的巨型雕塑,象征着"出海’稳健前进的信念、无穷的力量与灵感,鼓励着两个独立部分之间的互动,木饰面和条纹地毯大面积贯穿,把原本分区的部门形成一个协同合作拉力。利用统一的设计语言整合立面与天花之间的关系,简化外在结构的同时也为空间带来近乎方正的形式感。同时结合办公家具的组合,让整体空间关系获得统一与平衡。情景交融、趣味性、艺术性的种种可能,营造出人性化的未来办公模式。
-
用户体验:设计师的引导和坚持,让原本独立的办公有了一个很完美的整体氛围,空间结构感和讨巧的功能分区,多功能前厅接待区让员工和客户有了很好的体验价值和情绪“尊重"。
抽槽的大理石背景映衬着咬合式航海前台,天地两个“L"型形体转折,把视觉动线引导式的走向叠梯,放大上下尺度和左右延伸,让空间充满的探索性和视觉性。
整体抽槽大理石材质盒子式体块被直入,外前台和内接待会议有了一个很好的转折链接。
结构感极强的叠梯,象征着企业稳步前进向上。
木饰面上下整体贯穿,像一个巨型的建筑融入其中,强化环绕式通道。
白色大理石盒子体块的转折,上下灯带的强化让它更有立体感和视觉指引。
左右视觉延伸让未来空间有更多的可能出现,大而有作。
把最好的视觉留给供应商和自己,前厅接待区配套水吧,自由开放的情绪得到释放,木饰面盒子融入其中形成两个相对私密的面试间。
那一缕阳光飘进入室内,轻松、愉悦、美好高效的一天开始。
前台大理石背景材质延续到接待性会议室,纹理动线式引导,内外结合互不干扰。
开敞式的办公通过天花结构进行功能分区,大面积条纹地毯的通铺让空间独立又整体。
部分之间的考核奖励让他展示,让企业的文化得到诠释,进取、创新、团队合作发挥到极致
多功能组合变化式会议室,培训 会议都可进行,横竖向木纹墙板让整个空间链接形成一个整体。
楼梯上到二楼的对景则是一个世界贸易地图,向往着企业发展的空间可持续性。
对称的体块符号,对坐的小型接待室也能欣赏到远处的山景,严谨又放松。
方正的小会议室,表达了一个严密、高效的办公场景。那一抹红跳跃如空间之上,与底色形成较大的对话关系,让空间更有活跃灵动性。
作为一个女性功能服饰内衣出海电商品牌,弧形才是它真正的形体美。
VIP接待室,对称的两个立体的球形装置,意味着企业使命贸易走向全球。
岩板的层层的递进,一步一个脚印,走向全球 实现贸易全球化的价值使命。
延续楼下材质和手法,环绕式动线一个整体贯穿。
设计师办公区,爆单的产品需要认真探索和独立展示,岩板视觉中心的引导为他呈现,犹如舞台聚光下的“演员”
干净的体块处理手法来表达总经办,纯粹又不失大体。
一层主要为前厅接待、会议室和开放办公区。
二层主要为总经办、私密办公区及配套的展厅和接待会议室。

