“融” 的居所
297 - 项目类型:住宅公寓
- 项目地点:广州市
- 建筑面积:178.0000㎡
- 项目造价:190.0000万元
- 主案设计师: 熊立权
- 参与设计师:谢雯珊
- 竣工时间:2022-03-05
- 设计机构:广东纵横建设设计工程有限公司
-
项目定位:业主是一个四口之家,女主人是一位干练精致的教师,男业主是某集团副总裁,她对“理想生活诉求”有着自己的理解,即适合自己的“家”,才是最美的。因此设计师希望这套房子强调“家的体验”,更是一个从内到外探寻最开敞、舒适的体验空间。从归家的那一刻起,围绕家庭共处、亲子交流的公共空间属性展开,让他有更多的可能“融”入到这个空间。这是一个承载着一家人过去、现在和未来的居所,更是在这里演绎着每个人不同阶段的生活方式。
-
空间意境:不被定义的功能分区,是远离热闹城市的一处安静空间,是温暖的、美好且愉悦的。设计师在本案中尽可能克制得以平凡之物呈现“家”的日常本质,在优雅的基调中体现出温暖的人性关怀,亲子陪伴”是孩童家庭教育中最重要的环节。因此,业主希望在这里为孩子营造尽可能高质量的学习、陪伴和居住的场所。
-
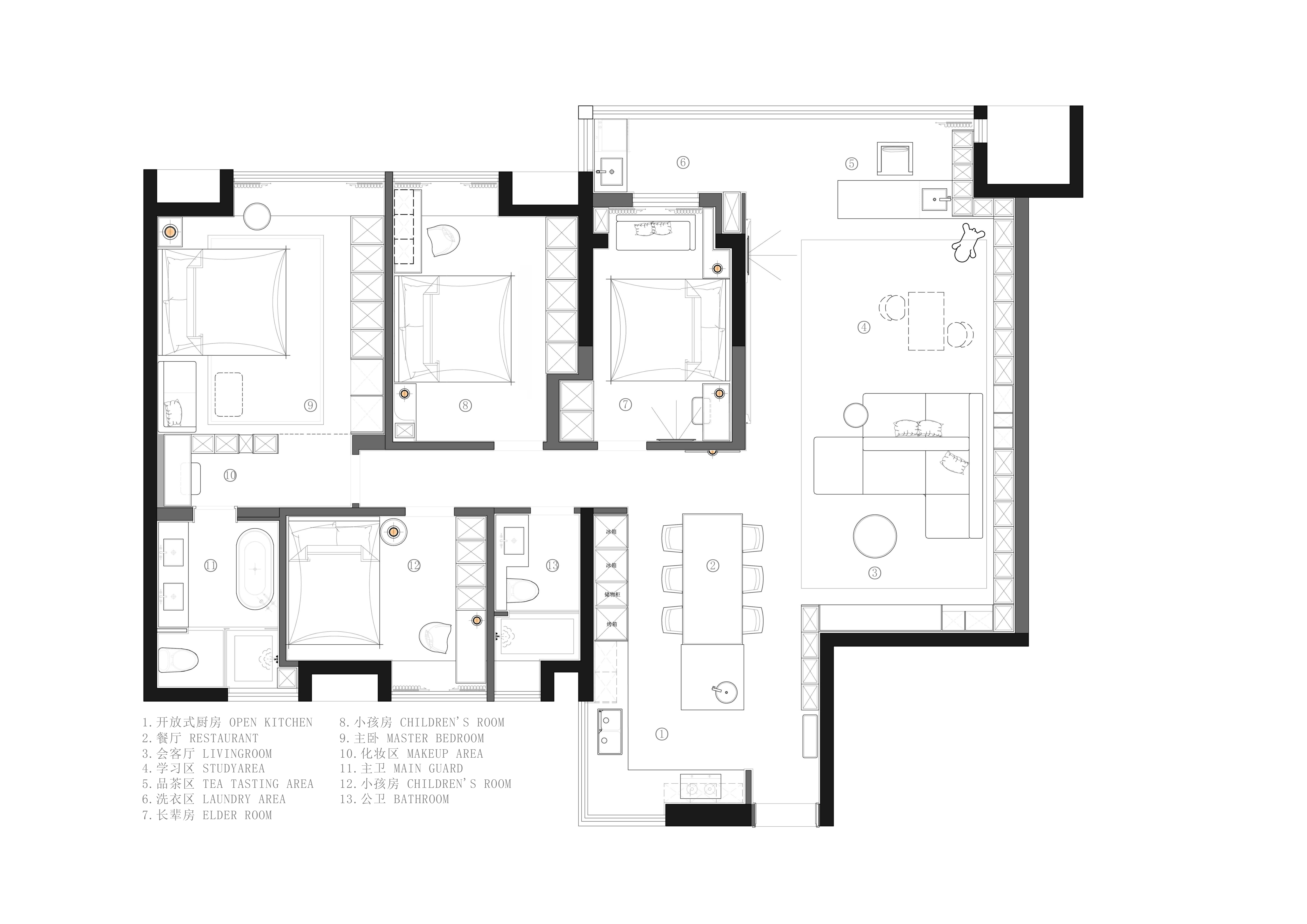
空间布局:开门见山,设计师舍弃原本“豆腐块”厨房格局,随之而来的课题是敞开式的厨房与餐厅的互动关系,把传统玄关概念弱化,设计师着重考虑家庭成员多方位沟通交流的表达,环绕式动线释放了厨房封闭空间的压力,又解决了无光的餐厅形式。同时过道空间纳入厨餐区域,墙面L型吊柜的转折,将人视线带到开放的空间。客厅、品茶区和学习区构成一个完整的区域,既形成功能区域上的划分,同时构成一种空间的连续感,有效地将整个公共空间囊括进一个更大的尺度范围内。
-
设计选材:白色烤漆木饰面从门口一直延伸到茶台,把原本采光较弱的整体空间进行一个提亮,地面通铺灰色地砖做为整个空间基底,白色烤漆和咖色染色木皮贯穿整个空间。为居者量身定制的合适的基调,在平凡空间里,过平凡温暖的日子,才是最美的。
-
用户体验:移步借景让空间丰富多彩,生活也如此 。
开门见山,舍弃原本“豆腐块”厨房格局,随之而来的课题是敞开式的厨房与餐厅的互动关系,把传统玄关概念弱化,考虑家庭成员多方位沟通交流的表达,环绕式动线释放了厨房封闭空间的压力,又解决了无光的餐厅形式。同时过道空间纳入厨餐区域,墙面L型吊柜的转折,将人视线带到开放的空间。
吧台处的装饰画作为入口处的视线焦点,承载着人与物的对话,物与景的相连,让空间更生动。
178㎡的空间里,客厅、品茶区和学习区构成一个完整的区域,既形成功能区域上的划分,同时构成一种空间的连续感,有效地将整个公共空间囊括进一个更大的尺度范围内。
黑板电视机背景墙上的儿童涂鸦、写写画画,时光仿佛在这一刻慢了下来,被镌刻在“家”的记忆里。
“亲子陪伴”是孩童家庭教育中最重要的环节。因此,业主希望在这里为孩子营造尽可能高质量的学习、陪伴和居住的场所。
将更多的 “亲子陪伴、共同成长” 的理念融入生活空间细节。LDK 一体化改造设计,通过让餐厨空间、客厅空间、学习区与茶室空间的视线通透,大面积的哑光烤漆和木饰面温和地呈现于空间中,不动声色地调节着情感,如诗般充满隐喻,同时也塑造着场所的时间维度。
家,应该是什么模样的呢?是远离热闹城市的一处安静空间,是温暖的、美好且愉悦的。在本案中尽可能克制得以平凡之物呈现“家”的日常本质,在优雅的基调中体现出温暖的人性关怀
整个LDK区域的设计既满足家庭开放式社交生活体验,彼此交互,又基于个体功能差异:作为共享度最高,功能性最复杂的区域,无论下厨做饭,还是偶尔处理工作学习,都能从容地一边处理手头事务,一边不疏于对孩子的看护与陪伴。
繁忙的工作结束后需要一处属于自己安静的小场所,在阳台规划出一个小茶室,或独处、或两三人安坐闲聊,同时在无边的天际线中感受着对这座城市的期许。视觉界面与客厅空间彼此穿插、咬合,亦动亦静,时间就此趋缓。
L型转折地台通过深色木饰面衬托储物功能柜的同时,开放柜的出现又把亲子学习区和会客厅的功能划分,咬合的茶台形成亲子学习的围合感。
主人房的木饰面转折弱化了卫生间们对休息区的冲击感,让主次更加清晰明了,人随境而转,空间消弭了明显的界限,舒缓了居者的私密心境。
结合现场梁位,弧形L转折让天面和立面有个很好的包裹感和安全感。
长辈房暖色的木地板与灰色木饰面,柔暖的灯光营造着安静舒适的休憩环境,让空间有了特有的温度。
0
1

认证 · 让您身份增值