轻法式290㎡自建别墅



作品说明
- 项目类型:别墅
- 项目地点:咸阳市
- 建筑面积:290.0000㎡
- 项目造价:140.0000万元
- 参与设计师:高文涛
- 竣工时间:2024年3月
-
项目定位:业主是名画家,希望空间随处是景,在每一个瞬间都拥有雅致诗意的氛围感。
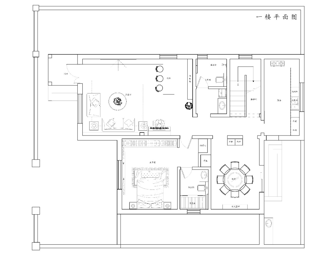
我们将主要的生活功能区以及主卧放在一楼,增加足够多的可活动社交区域,因此更接近大平层的设计。 -
空间意境:PART.01 / 客厅
客厅作为进入家的第一视野,以柔和奶白为大面积底色,让整个家被温柔笼罩,透过百叶帘洒入的光影让客厅空间十分惬意,治愈繁忙时刻的疲惫。
PART.02 / 茶室
大理石墙面使居家装饰得更有整体感,呈现的是奢华大气的空间质感,宛如一件天然独特的艺术品。
奶油色的储物柜,精致的柜门拉手、轻法式的弧形线条搭配暖色系灯带不仅舒适好看,同时还能扩容收纳,保证客餐厅的整洁度。
PART.03 / 餐厅
餐厅放置的大理石台面的圆桌,搭配树枝水晶吊灯,将整个空间的质感和柔和发挥到极致。工作忙碌之余,和家人一起吃顿饭,停下来享受家庭的温馨和安逸,一起用心感受生活里的小美好。
PART.04 / 主卧
推开主卧的门,奶油色的墙面搭配鱼骨拼地板,从视觉上拉伸空间。床头背景墙上简约的法式线条和雕花设计,搭配以舒适的床品和柔和的灯光,营造出一个轻松愉悦的居住空间。
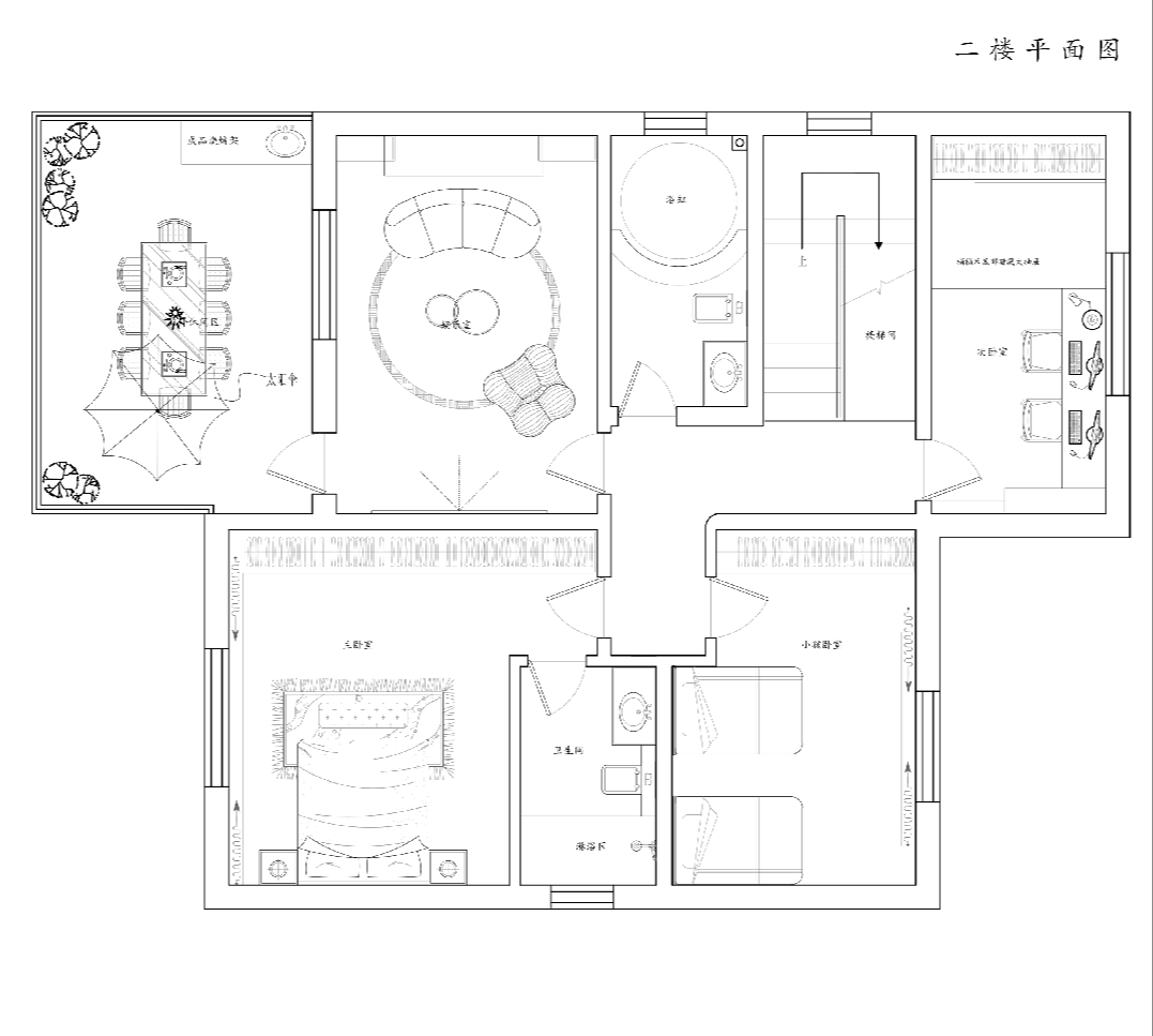
PART.05 / 影音室
划线二层最特别的是打造了家庭KTV系统,一家人闲暇之余即可以在家享受唱歌的乐趣,让生活变得更加丰富多彩。奶油白配色给人一种清冷,但温馨的矛盾感,不管从哪个角度看都是高级感满满,不需要把天上的星星摘下就可以拥有满屋繁星。
PART.06 / 浴室
作为私享空间,浴室必不可少,旁边还设置了恒温花洒,泡澡淋浴统统拿下。 -
空间布局:客厅拱形元素和法式PU线条的使用可以说是整个空间的点睛之处,有效的对区域进行了合理划分,弱化空间的线条感,精致但不繁复,为家添加几分柔美。
楼梯是空间意义上的结构转换,也是心理状态的情绪切换。从半公开的会客空间,转化成私密的居住空间,以层层阶梯转化层层情绪。 -
设计选材:大部分采用比较柔和温馨的材料,搭配部分大理石做点缀。
-
用户体验:优雅的法式浪漫打造诗和远方,将自己的生活态度融入到空间设计中,在留白中构建空间的规则,远离城市里的喧嚣,在一方小空间里找到属于自己的舒适自由。

