国立酒品鉴馆
210
作品说明
- 项目类型:展示
- 项目地点:仁怀市
- 建筑面积:120.0000㎡
- 项目造价:30.0000万元
- 参与设计师:孟磊
- 竣工时间:2022年10月
- 设计机构:凡舍设计
-
项目定位:我们思考我们的展厅是什么?
它的功能是什么?
我们构思得出这样的结论
空间如同酒的容器,我们的每一个不同的功能如同调酒一样,把基酒,白酒调和在一起,形成一个整体。
空间的动线就像品酒,慢慢去品尝酒的酱香,甘甜,
空间也是如此,呈现给客户一种娓娓道来的体验感。 -
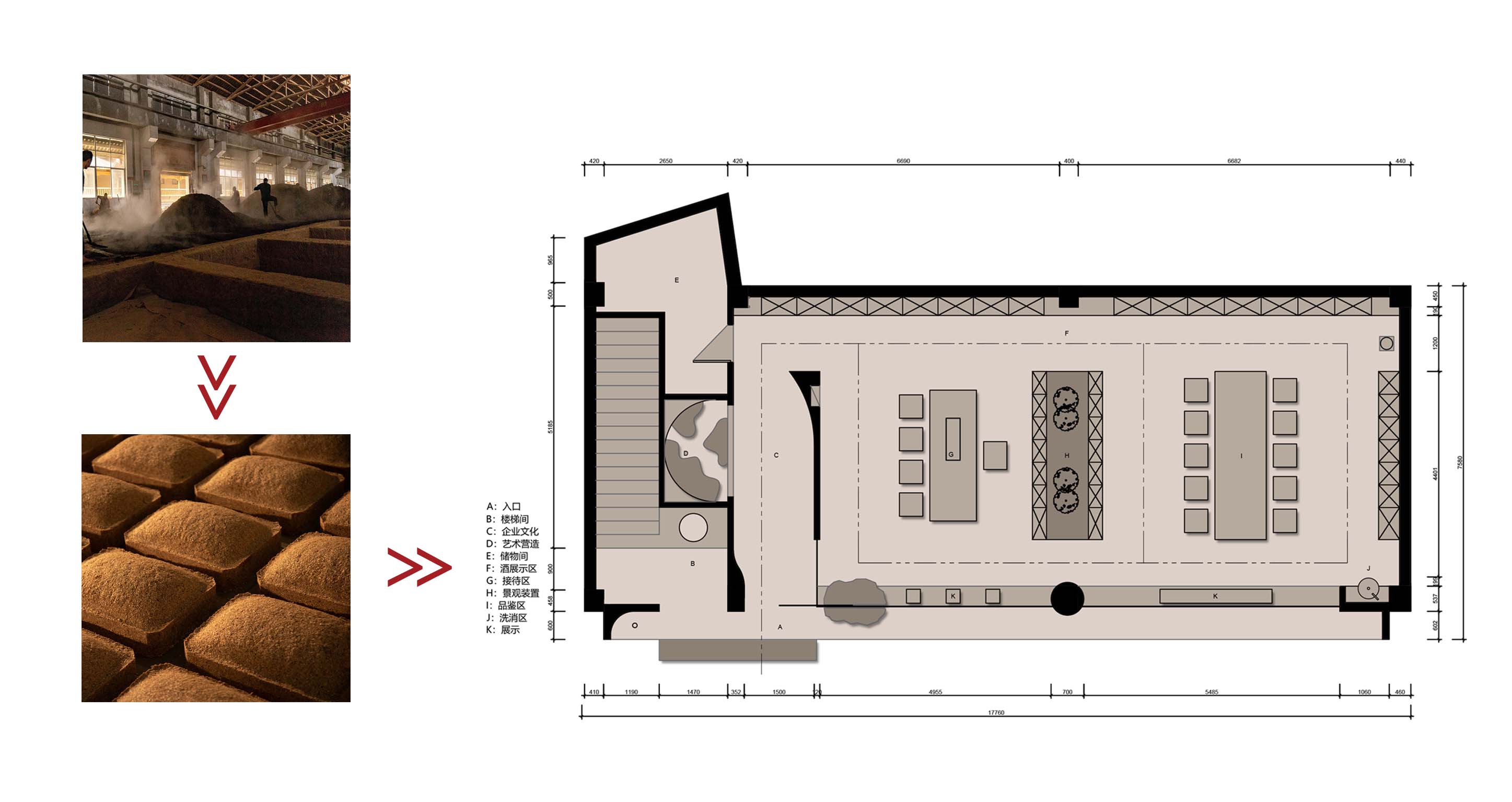
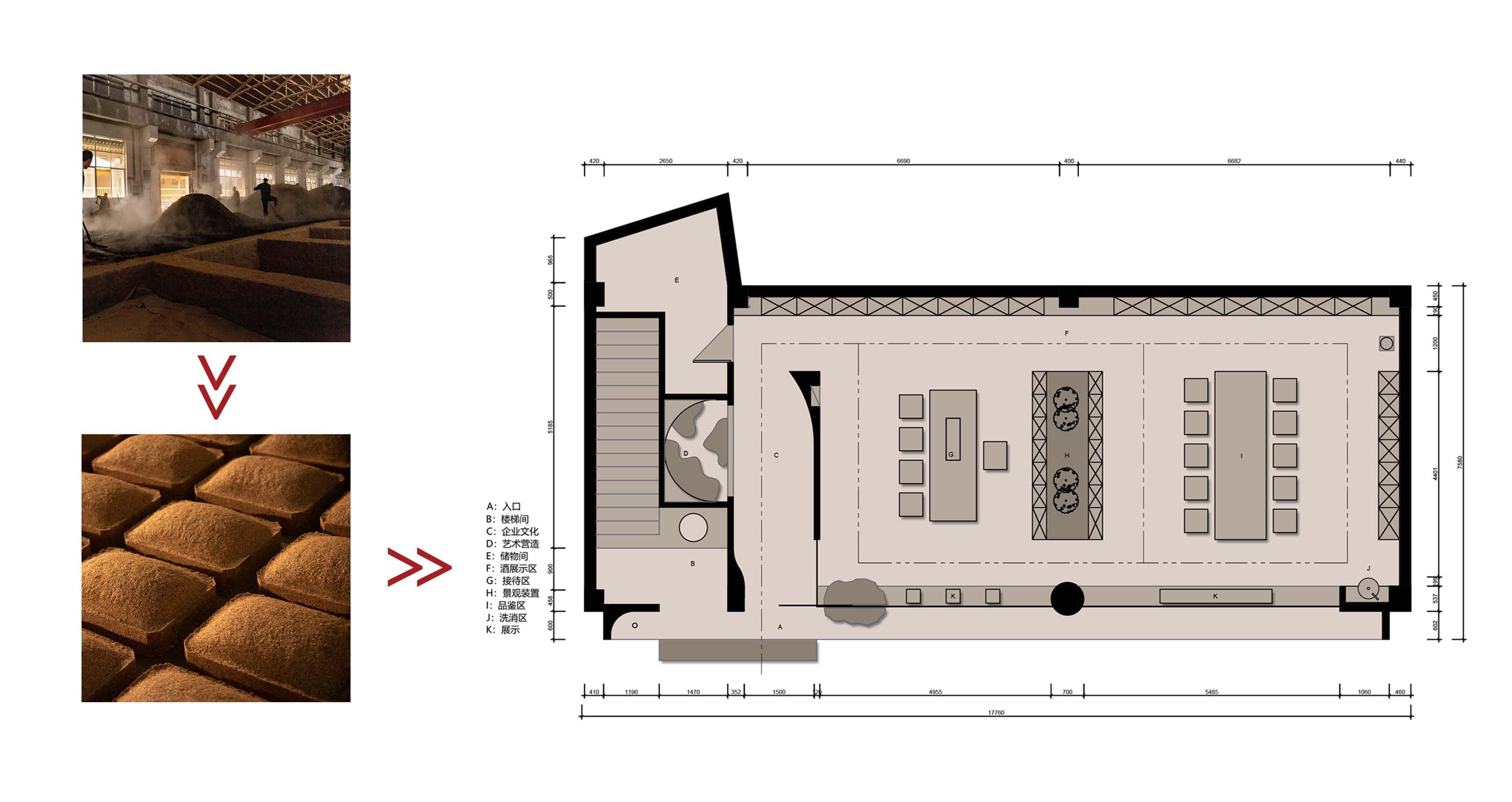
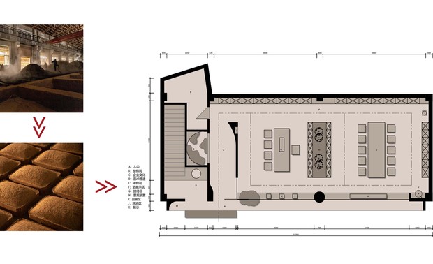
空间意境:风格上打破传统白酒展厅的设计,我们尊重建筑的原始结构,保留混凝土裸梁、柱子,将自然与空间结合,用空间传达酿酒工艺的特点
-
空间布局:布局上我们考虑客户到店的体验情绪,摒弃传统的大开间格局,改为入小口,见天地,通过有麦田装置的走廊进入接待区,产品展陈到品鉴区
-
设计选材:空间的用材选用低碳环保的木头,木条,水泥砖,麦穗,火山石等天然的材料
-
用户体验:空间投入使用后业主自身很满意,到访的客人也给予好评,客户回馈的原话是“2W的设计比他们北京10W的设计有价值”
0
1

认证 · 让您身份增值