国立品鉴馆-53°灰
306
作品说明
- 项目类型:展示
- 项目地点:仁怀市
- 建筑面积:120㎡
- 项目造价:30万元
- 参与设计师:孟磊
- 竣工时间:2022-12-05
- 设计机构:凡舍设计
我们思考我们的展厅是什么?
它的功能是什么?
我们构思得出这样的结论
空间如同酒的容器,我们的每一个不同的功能如同调酒一样,把基酒,白酒调和在一起,形成一个整体。
空间的动线就像品酒,慢慢去品尝酒的酱香,甘甜,
空间也是如此,呈现给客户一种娓娓道来的体验感。
国立酒业位于贵州省仁怀市,有着中国酱酒圣地的茅台镇。国立品鉴馆作为酒厂日常接待、品鉴的场所,打造一个轻松、舒适、独特的品鉴空间,是这个项目主要的功能需求。
酱香型亦称茅香型,以茅台、蜚声中外的美酒为代表,属大曲酒类其酱香突出,幽雅细致,酒体醇厚,回味悠长,清澈透明,色泽微黄
对于白酒而言,当酒精度保持在53 度左右,白酒中的酒精分子与酒中的水分子之间的缔合最为牢固,加上酱香型白酒的储藏期较长,存储条件稳定,酒中的酒精分子游离较少,若是存放若干年后,在密封完整的情况下,酱香味依然浓郁、口感尚佳。
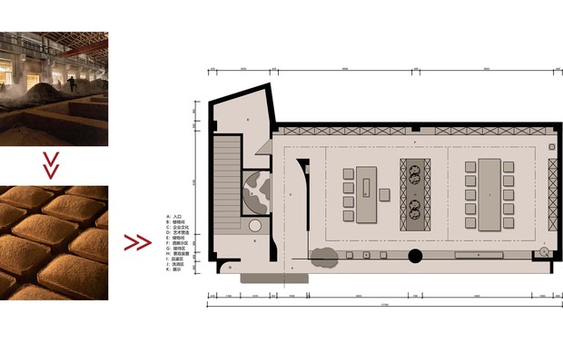
整个空间的平面布局就从池而来。正如人们拥有空间却无法100%填满空间,而液体却可以占据整个空间。无形的酒,转化为曲线、转化为面,将整个空间划分开来,将这个“酉”划分开来。
物料
产品陈列架设计
品鉴桌设计
接待桌设计
原始空间结构
施工过程现场
施工过程现场
施工过程现场
完工现场
自然光下的外立面
傍晚下的外立面
展厅入口
展厅入口
入口过道
入口过道麦田装置
入口过道麦田装置
接待区
接待区
接待区
酿酒工艺雕塑展示
陈列架与装置艺术
陈列架
陈列架
陈列架
品鉴区
品鉴区
品鉴区
品鉴区
品鉴区
品鉴区
品鉴区背景
品鉴区背景
品鉴区背景
-
贵阳市
工作地点
-
联系方式
0851-85110720

认证 · 让您身份增值