凡舍设计办公室


作品说明
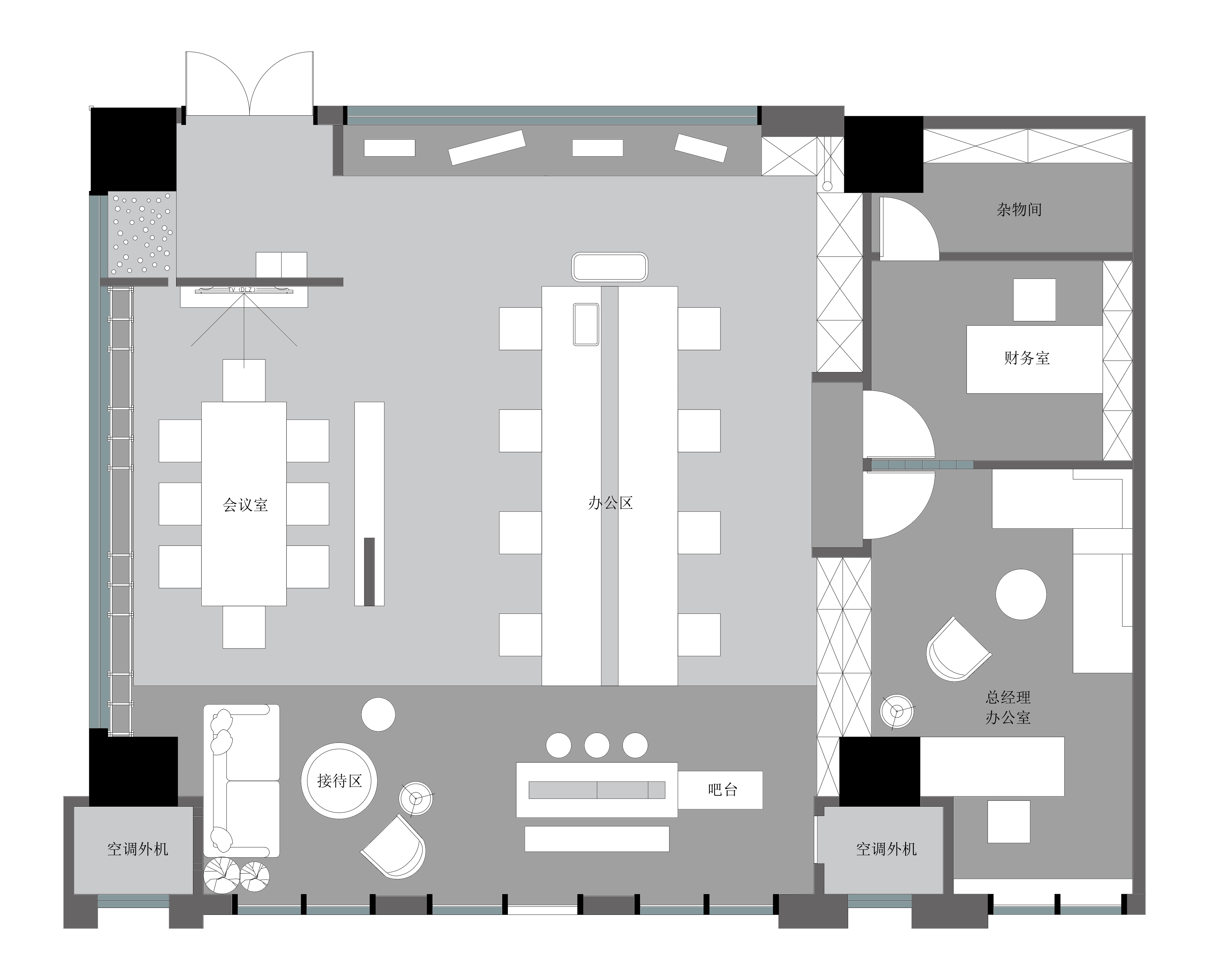
- 项目类型:办公
- 项目地点:贵阳市
- 建筑面积:110.0000㎡
- 项目造价:10.0000万元
- 参与设计师:孟磊、雷文、张园园
- 竣工时间:2019-11-02
- 设计机构:凡舍设计
-
项目定位:凡舍,意在打造一家有“生而不凡,锲而不舍”的设计公司。定位给每一位客户提供专业的设计及施工服务。
-
空间意境:再简约的风格里融入一些原始材质和旧的元素
-
空间布局:代变革,反应在设计方面的改变,注重交流,关注内心,寻求平衡。办公室不仅仅是办公场所,也是每天八小时的生活。设计之初,设计师一直想要寻找一种多元的设计元素平衡,不仅注重镜头艺术呈现,更注重空间体验感。
-
设计选材:本案选用的都是一些最基础的材料“木龙骨、玻璃、钉子、瓷砖”以及一些最原始的材料“从山里找的石头、石板、木板、烂木头、青苔”,意在用简单到再简单不过的“普通材料”经过描绘,组合。以光影艺术,做没有艺术的设计。
-
用户体验:空间舒适、放松、有格调
凡舍,意在“生而不凡,锲而不舍”的设计精神。入口处灯光下的“凡舍”,白色乳胶漆、灯光、竹子、白色鹅卵石、腐朽的木根,钉子组成的标志。
时代变革,反应在设计方面的改变,注重交流,关注内心,寻求平衡。
办公室不仅仅是办公场所,也是每天八小时的生活。设计之初,设计师一直想要寻找一种多元的设计元素平衡,不仅注重镜头艺术呈现,更注重空间体验感。
开放的大长桌是主办公区、让我们的工作更有仪式感也能让大家畅所欲言
设计师发挥想象力,把最便宜的木龙骨和木板做了一个创意组合
会客区及茶台也是运用木龙骨阵列做一个意在表达山的理念
会客区及茶台也是运用木龙骨阵列做一个意在表达山的理念
会客区及茶台也是运用木龙骨阵列做一个意在表达山的理念
坐凳是设计师去旅行获得的荔枝木板、经过巧妙的设计形成一款不错的坐凳
山里捡来的干树枝配上定制沙发、茶几给人几份禅意。
简单到再简单不过的“普通材料”经过描绘,组合。以光影艺术,做没有艺术的设计。
项目地址/ Project location:贵阳市GuiYangShi 项目面积/ Project area:120㎡ 设计师/ Designer:孟磊 MengLei 设计团队/ Design team:凡舍设计 FancyDesign

