《南苑复式•影间》



作品说明
- 项目类型:住宅公寓
- 项目地点:桂林市
- 建筑面积:130.0000㎡
- 项目造价:30.0000万元
- 主案设计师: 陈诗密
- 竣工时间:2022年12月
-
项目定位:干净、简单是业主的诉求。设计中运用点、线、面的穿插,让整个空间层次有度;整体空间以黑、白、灰为主基调,搭配少量木纹,使得整个空间粗中有细。多元的材质,细腻的表达,质感与氛围感十足。
-
空间意境:干净、简单是业主的诉求。设计中运用点、线、面的穿插,让整个空间层次有度;整体空间以黑、白、灰为主基调,搭配少量木纹,使得整个空间粗中有细。多元的材质,细腻的表达,质感与氛围感十足。
-
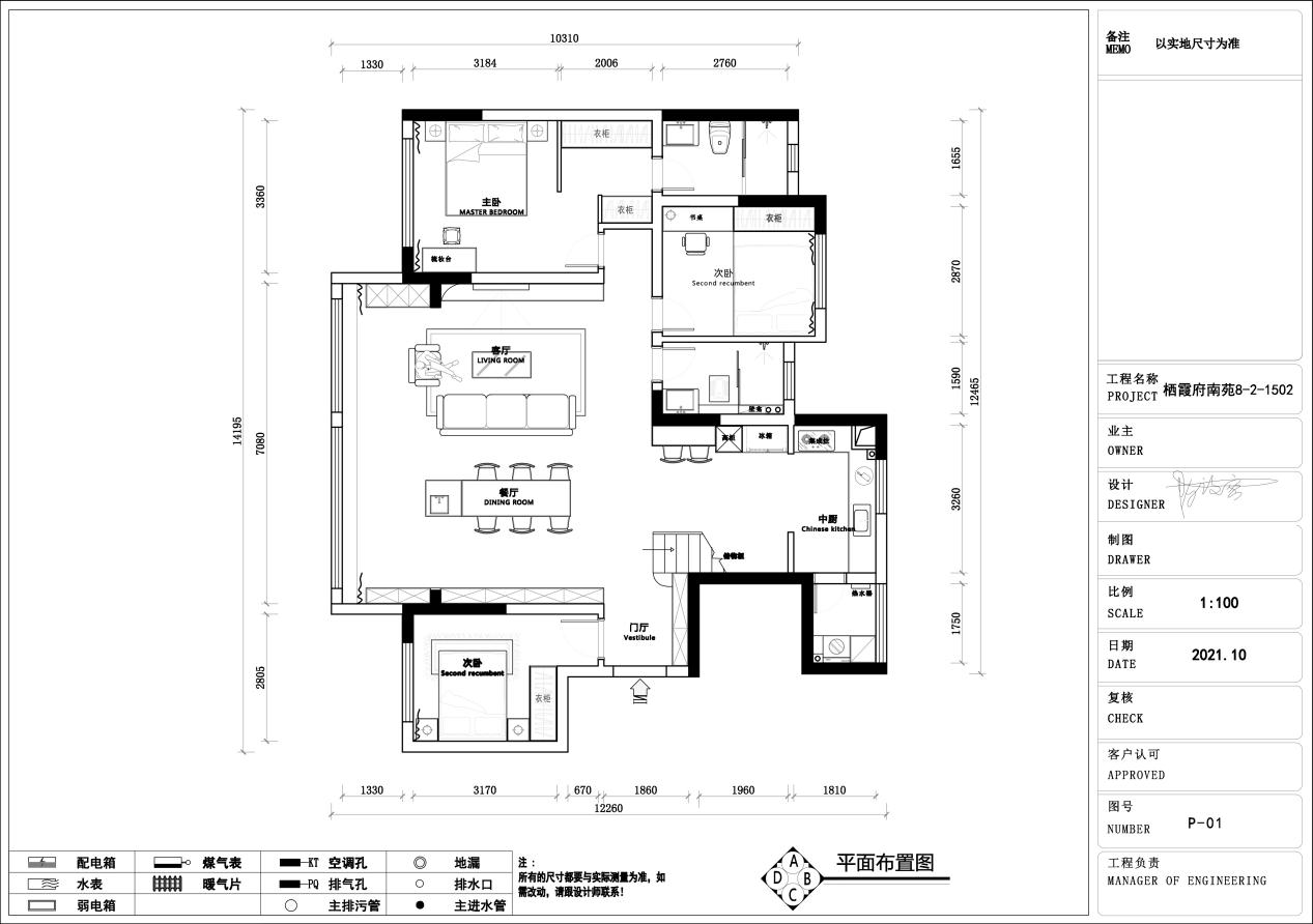
空间布局:户型设计四房改三房,将原来餐厅的区域设计成楼梯间+咖啡角,拆掉的一个房间划分成会客厅,原本户型客厅区域作为餐厅使用,竖厅变横厅,使得公共区域视觉感受大平层的既视感。多元的灯光组合,让空间的照明方式更加灵动多变,可以对应不同的生活场景。
-
设计选材:材料均选用低碳环保类
-
用户体验:提高了生活水平,一个放松、舒适的家。

