依云兰庭
348
作品说明
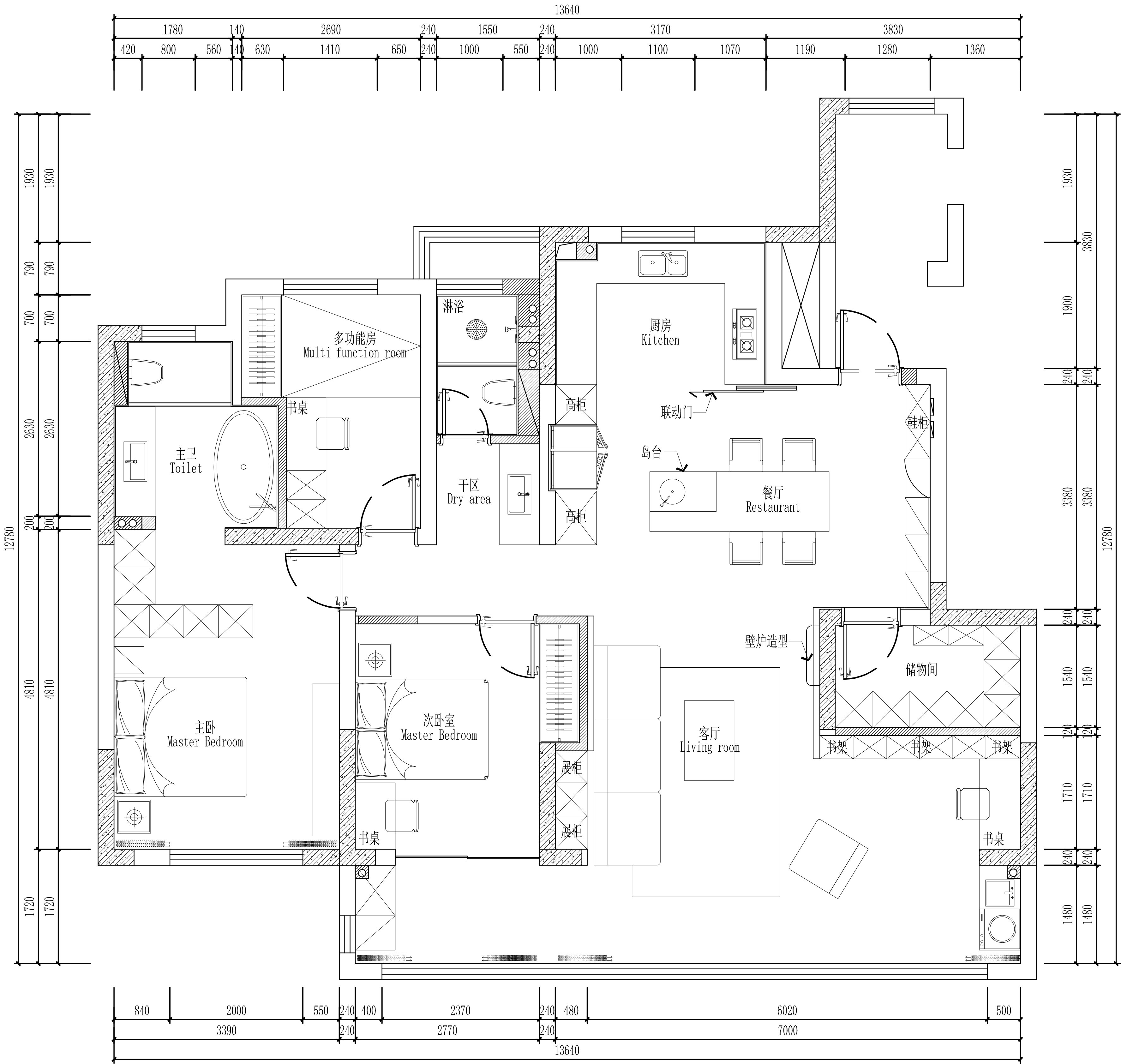
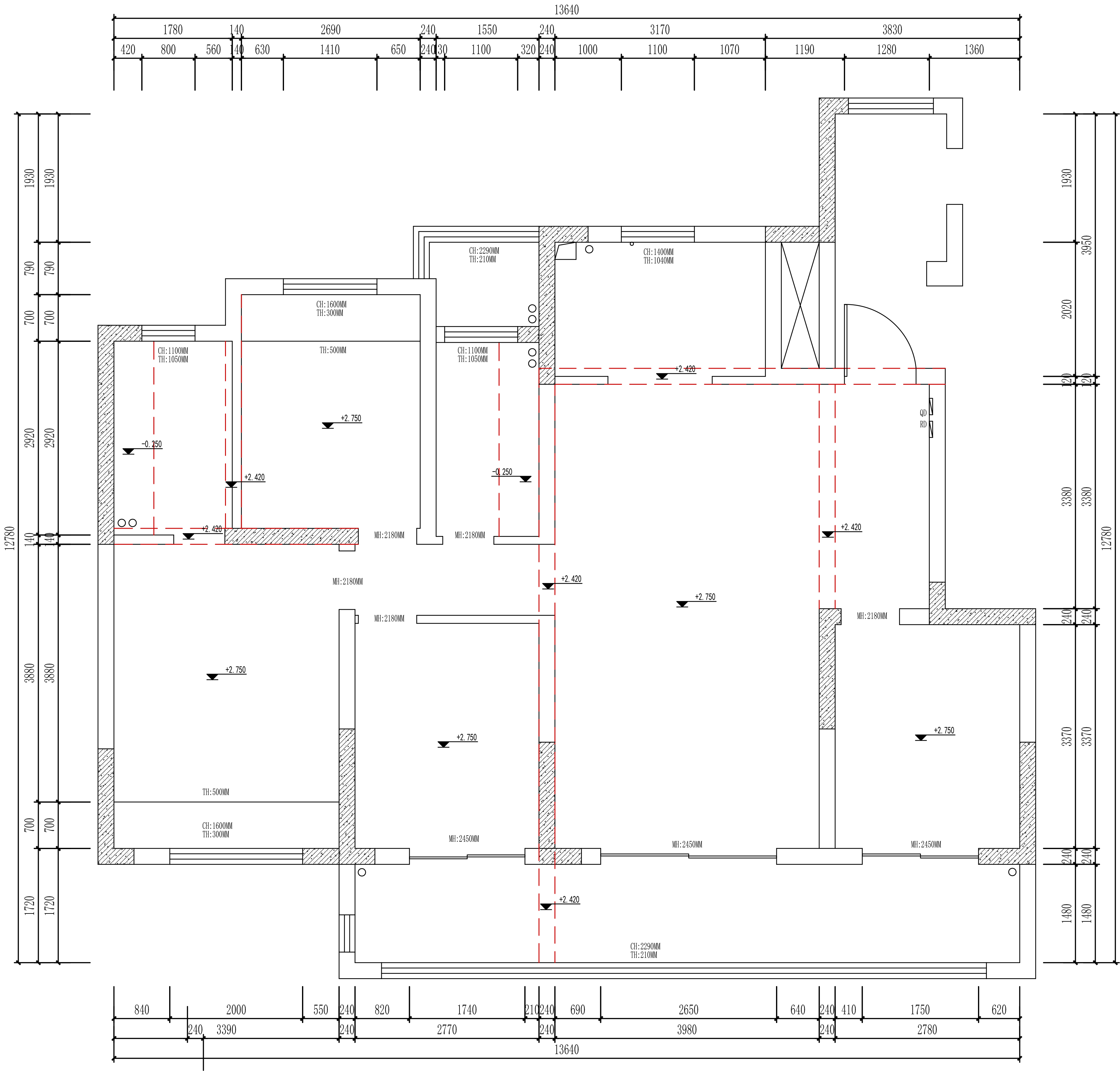
- 项目类型:住宅公寓
- 项目地点:苏州市
- 建筑面积:140㎡
- 项目造价:60万元
- 主案设计师: 徐高原
- 竣工时间:2023-05-18
-
项目定位:本案通过木质独有的温润自然的气息,构建柔和天然感的生活场域。以极简风格为主轴,简洁的家具与空间线条塑造轻盈质感,大面积的木质介入,柔化了极简带来的疏离感,营造舒适的宜居氛围。空间中的材质、颜色、家具,装饰……无一不在调动居住者对生活的感知,让美的力量在生活中滋养而生。
-
空间意境:灵感来源于阳台,房屋本身就是三开间超大露台,视野开阔,在设计上把整个公共空间能够打开融合在同个空间之中,随意通走
-
空间布局:厨房做了开发式厨房,把厨房和餐厅,客厅整合在同空间中,增加空间的互通
二是在把书房,阳台空间做了延伸,在这个规划上多了储物间,弥补了家庭的储物功能 -
设计选材:原木色由入户延展向室内空间,内敛、节制是木材赋予的特质。去繁就简的设计,尽可能地减少视觉层面的干扰,营造出一个轻松自在的归所。
-
用户体验:运用原木色的中性模糊黑与白的边界,柔和的灯光低调而优雅地介入其中,在极简的空间风格里,凸显有质感的生活“痕迹”。浸润在烟火气里的厨房,有着几分寻常人家的温婉与热闹,待香气散尽,空间再次重归静谧与舒缓。
0
0

认证 · 让您身份增值