关 己
528
作品说明
- 项目类型:别墅
- 项目地点:苏州市
- 建筑面积:180㎡
- 项目造价:1000000万元
- 主案设计师: 徐高原
- 参与设计师:徐高原
- 竣工时间:2020-07-18
- 设计机构:一野设计
-
项目定位:考虑到业主自身情况丁克家庭,只需要三间卧室(主卧,双方父母居住),老人喜欢安静的生活方式,业主本身喜欢旅游,并不局限与现状的情况下。
-
空间意境:在风格上,用到了了大量不同风格的元素。硬装上整体是以现代为主,灰色的地砖,深卡其色地板,用主卧床头背景使用了复古的护墙,所有的柜体选择了现代美式门板,书房的书桌则是成品地板后期加工成书桌,书桌台面是一圈圈时间的印记。
-
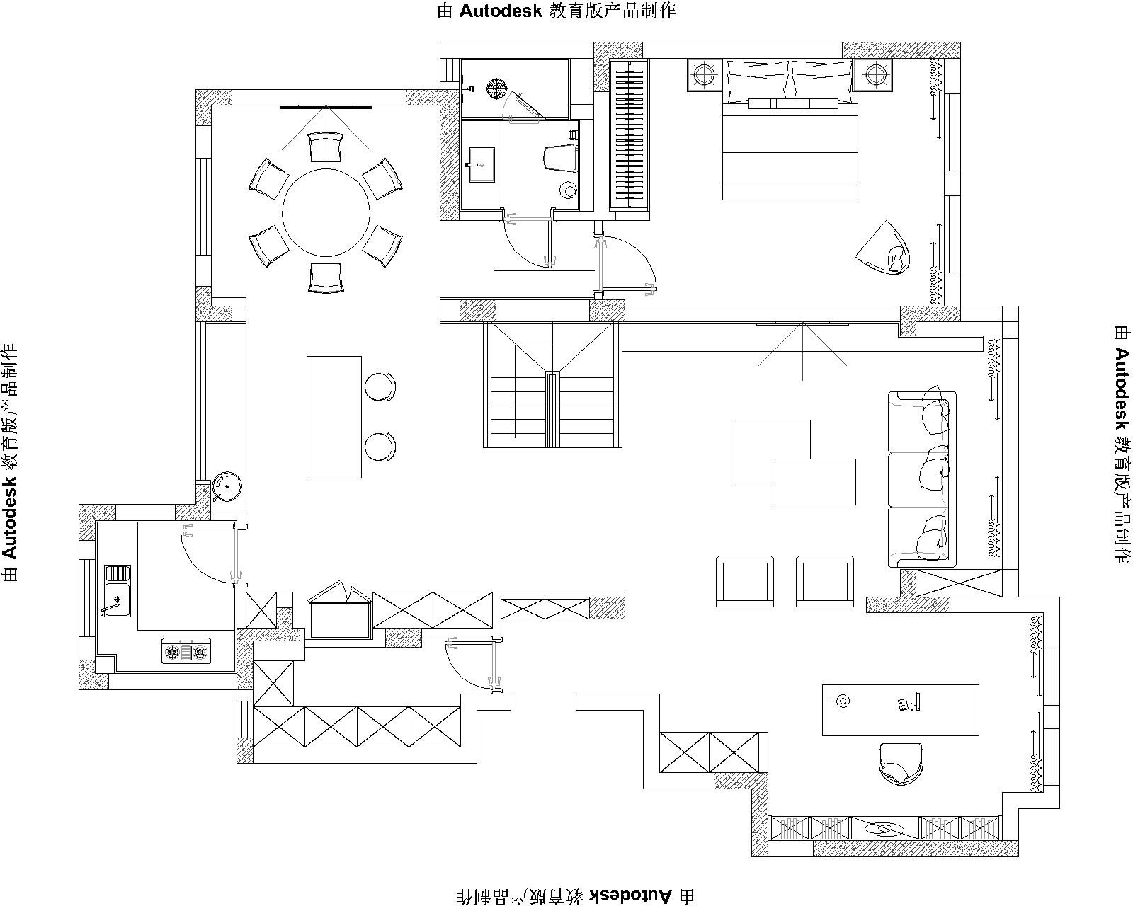
空间布局:在原有5房的基础上,只保留三间卧室。把更多的空间融入日常生活。考虑到有老人居住,把每一层的父母房都设置了卫生间,方便父母的日常起居。原有的楼梯过于狭小,把楼梯设置在整个空间的中间位置,把客厅,书房,西厨,餐厅紧紧联系在一起。跃层区域现浇后做成主人的起居室,茶余饭后能有自己的一片悠然自得。
-
设计选材:全案使用大面积涂料,局部区域像楼梯用的是大理石,开销最大项目全屋的木作
-
用户体验:业主是很满意的,从一开始设计所想的书房,中西厨都一一呈现。在整个施工过程中涉及到例如搭建阳光房和隔壁邻居交接地方,设计在做了一些调整,问题全部完美解决。
这间顶层复式为一对夫妻设计居住,整体功能规划上以居住人期待和需求出发。在打破一切的阻碍,增加空间体量感,清晰行为边际后,设计师赋予空间的极简、宁静、沉稳。抛弃过多的装饰手法,回归到居住体验生活,表达不跟风,不追求奢华,不为潮流所左右的态度。
客厅空间连接着一层书房和通往餐厅过道功能,以功能性结合舒适性为主,整体家具选择了业主喜欢黑色皮质元素色调!整体色调大面积实用白色和黑色搭配,简单大理石地台和楼梯相交而过,大大增加空间的视觉延续,使得每个空间不独醉,互相贯通,有联系。沙发背面满墙灰色书柜,带有时间年轮木色书桌,更体现出居住人对生活挚爱。
厨房和餐厅是人间烟火之地,也是家庭比较重要的区域。从餐厅看西厨的角度,岛台结合电器柜和整面灰色高柜,有超棒的实用性。岛台的设计,大大的增加西厨操作便捷性。格局的改造出足够的开放性,重视人与人之间的自由舒适的交流,品尝当下。餐厅满墙的祖母绿,夺目耀眼,跃然而起,用仪式感消解日常生活的寡淡。
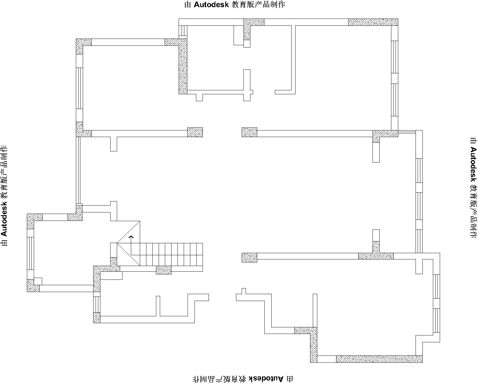
一层原始结构图
一层平面空间布置图
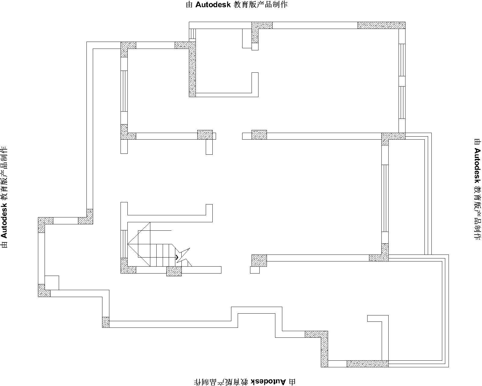
二层原始结构图
二层平面空间布置图
0
0

认证 · 让您身份增值