东北大院
270
作品说明
- 项目类型:餐饮
- 项目地点:沈阳市
- 建筑面积:6000.0000㎡
- 项目造价:2500.0000万元
- 主案设计师: 刘丽云
- 参与设计师:刘丽云 陈龙 王博娅 贾琪然 孙宇
- 竣工时间:2023-10-03
- 设计机构:石家庄市大石代设计咨询有限公司
-
项目定位:东北菜品牌的当代性场景化空间表达
场景化空间表达中没有强烈的符号表达,而是以具有当代品质感的材料、简约的设计语言、意象化的色彩铺陈等形式来演绎具有当代“东北味”“喜庆”“欢聚一堂”的宴请调性空间。
-
空间意境:场景化空间设计的出发点:基于企业基因与东北人的百姓消费的心理,将硬件配置发挥到极致,强调外在形式美、气场,满足东北人好面的原始基因。
-
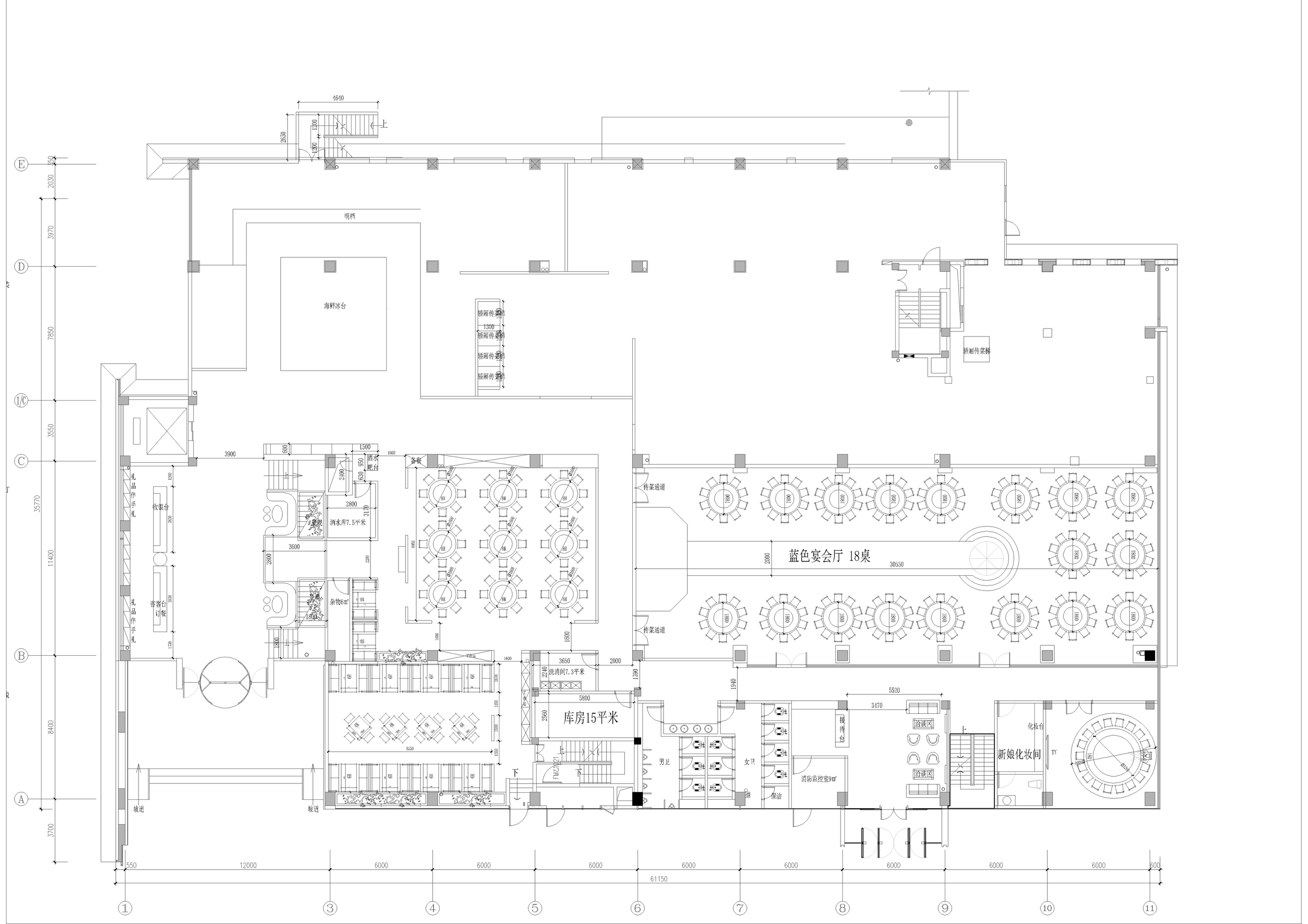
空间布局:一层以明档、厨房、散厅、宴会为主,
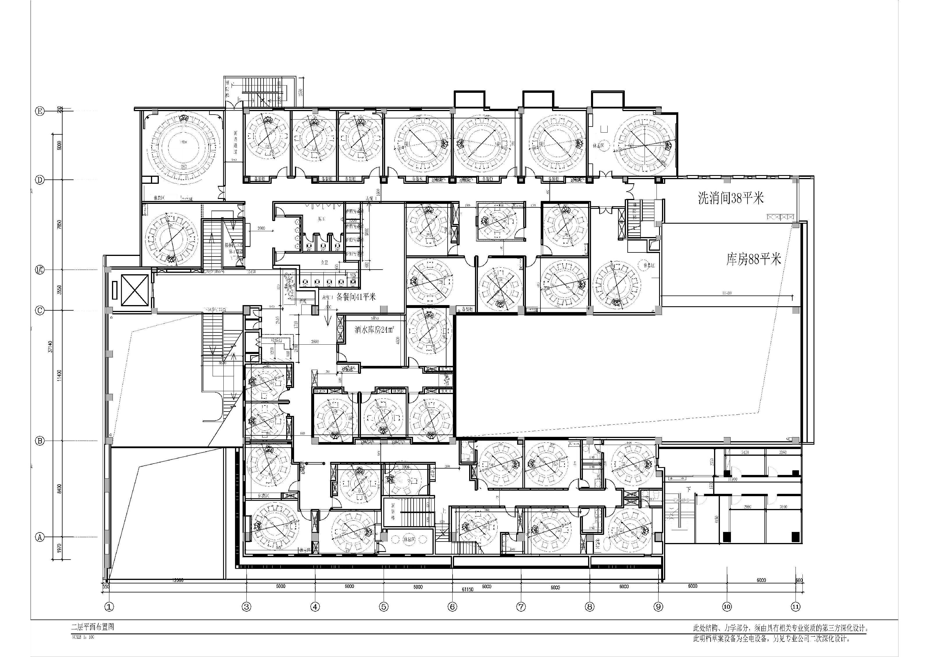
二层包间以院落为主,分为民国风包间区:位于二楼一隅,属于独立的院落包间区,以6-10人的小包间为主,并带独立卫生间,适配具有商务属性的宴请。而浓重的东北历史文化元素也符合(新)中产、年轻人的审美需求,事实上这也是门店最受欢迎的包间类型。
现代包间区:是门店最大的包间区,桌型最全,以12-20人的大桌型为主,适合10-20人的家宴/朋友聚会/商务宴请等。
新中式包间区、时尚民俗包间区:都是相对独立的院落包间区,以10-12人桌型为主,遇到小宴会也可以全部包下来,宴会功能多样化灵活化,承接了其它宴会(小宴会)的功能。 -
设计选材:灰色岩板石材、不锈钢、竹木纤维板材、亚克力、长虹玻璃等
-
用户体验:大气亮堂,服务也热情到位,有宾至如归的感觉,名字是东北大院但是呢,里面没有大花袄的感觉,既现代又洋气!
两层半挑空大堂,整体高度接近12米,体量很大,敞亮!
服务台与背景整体发光设置,显得大堂更加敞亮、现代
在大堂一侧设置了网红楼梯,直通2层,弥补了一部电梯的不足!
从网红楼梯下方看往大堂
明档海鲜区
明档区电子显示屏,多种动态图案组合切换,让客人感受不同,仿佛置身海洋馆!
东北大院明档区非常华丽,让美景不负美食,更能彰显食物的可口!
可以说明档是东北大院的一大亮点,在沈北区道义区有非常强的优势!
大散厅区,亮堂,舒服,满足不同客群,
小散厅区以4人台为主,环境比较安逸,舒适!
颜色搭配舒服
从2个散厅区可以通往大堂
二层平台
二层网红打卡地,流水屏
二层现代走廊区
二层现代走廊区
二层现代走廊区
二层现代包间区
二层现代走廊区
二层现代走廊区
二层现代走廊区
二层现代包间区
二层现代包间区
民国区
民国区
民国区
民国区
民国区
民国区
民国区
民国区
民国区
民国区打卡地,复古气息很浓
现代走廊通往民国区
新中包间区
新中包间区
新中包间区
通往民俗包间区
新中包间区
通往民俗包间区
新中包间区
民国区
民国区
民俗包间区
民俗包间区
民俗包间区
一层平面图
二层平面图
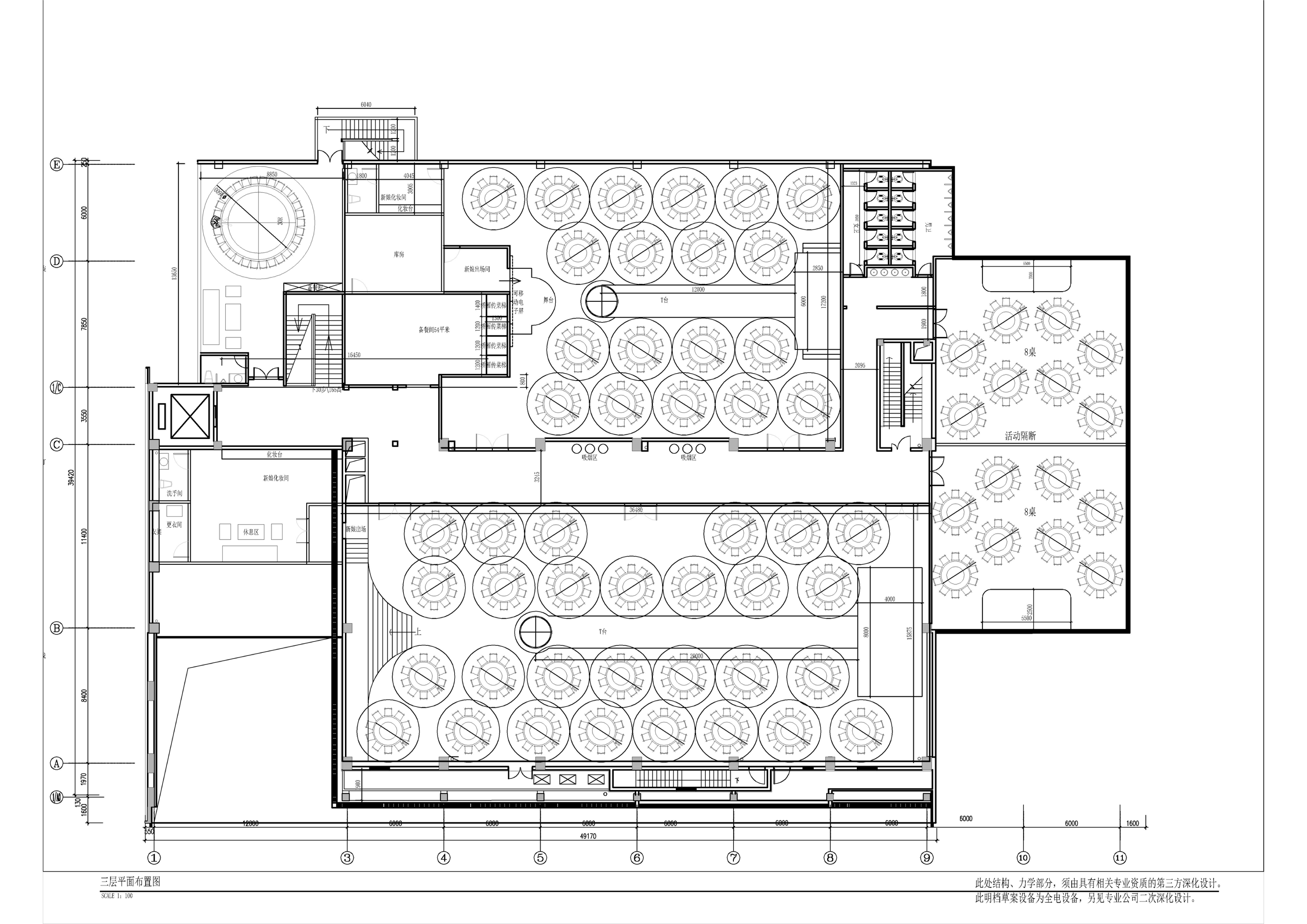
三层平面图
0
0

认证 · 让您身份增值