Ren 宅
227
作品说明
- 项目类型:住宅公寓
- 项目地点:葫芦岛市
- 建筑面积:180.0000㎡
- 项目造价:86.0000万元
- 主案设计师: 杨云
- 参与设计师:李环宇 张悦 金红
- 竣工时间:2023-07-06
- 设计机构:道合空间设计机构
-
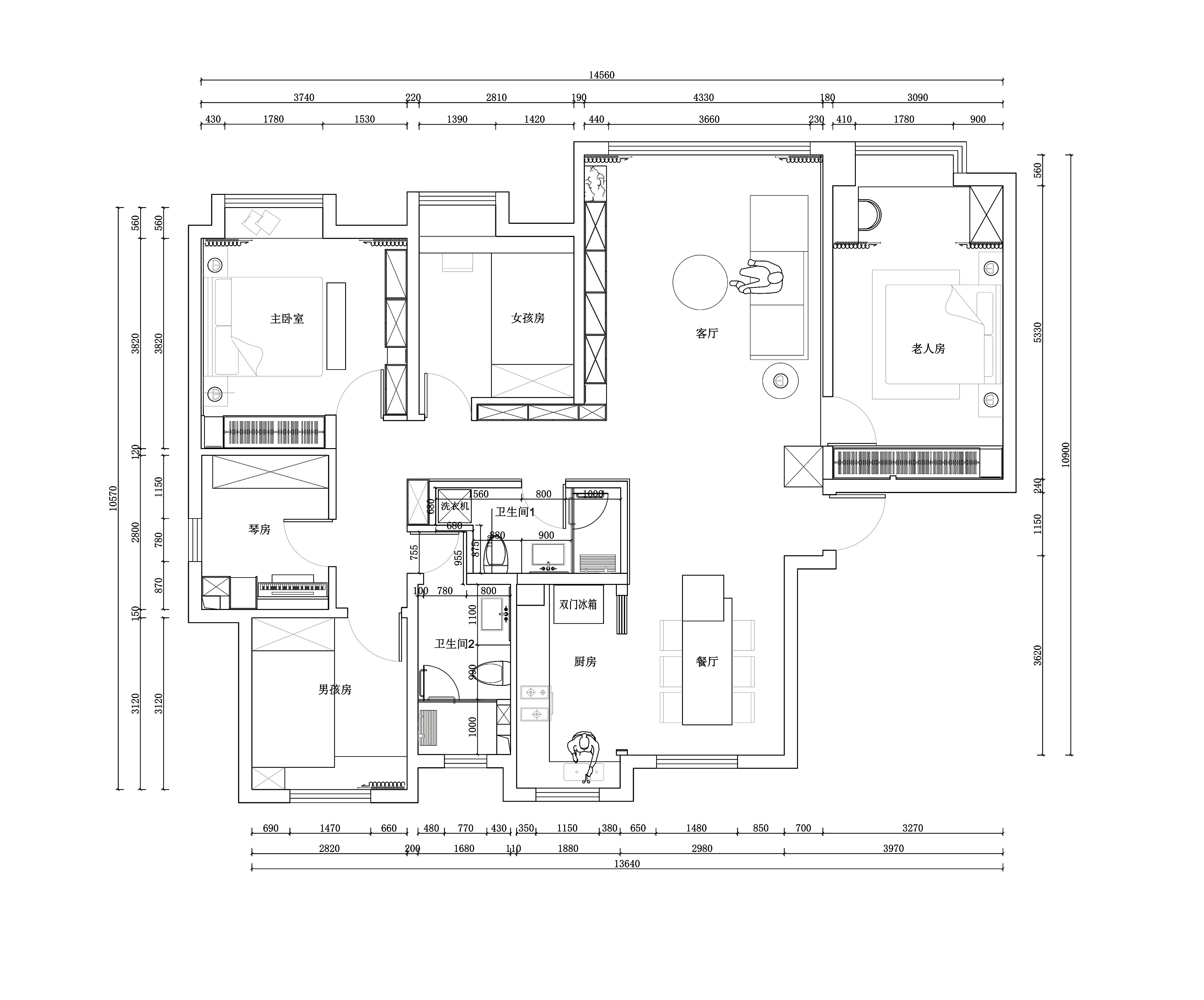
项目定位:这是一套大平层的项目,难点在于居住的是三代人七口之家,要把四居变五居,其它房间功能还要保留,以及要更大的储物空间,更大的餐厨空间等等;现场勘察后结合居住需求,设计方向定位为现代都市,整体营造现代、舒适、智能、大气、略带商务的高级感!空间布局定位五室两厅两卫。
-
空间意境:整体色调以米灰色为主,在人的主视角内以白色为主色调,而在背景色上则选择深色的木色为主,配以白色石材为点缀,你坐在沙发上时,就像在画中一样,而你的主视角有很舒服,整体会营造一种放松而又高级的空间感。进门玄关处特意设计的壁炉,在深色的衬托下,格外温馨;同时也解决了入户衣帽柜的难题!入户玄关区的折纸造型顶,很好的掩饰了主梁下仅有2.25米高的难题,又让人进门眼前一亮!客厅电视墙是利用穿插的手法将电视墙立面和走廊立面无缝衔接,又利用多材质的对比,共同打造一个丰富的视觉效果和强大的储物空间!
-
空间布局:将原有走廊南移1.5米,使得餐厅长度得到放大,同时实现了入户有端景的仪式感,再把原有1.5米宽的走廊缩小至1.2米,成功得到了一个长3.3米宽1.7米的大公卫!将原主卫改造成集储物、琴房、客卧为一体的多功能房;利用西南角客卧室的超长进深,改造一个大型的生活阳台,解决晾晒问题!
-
设计选材:整体深色木皮选用的是秋香木也就是常说的科技木,及实现了天然木皮的质感,有促进了材料的可重复利用性,降低成本也符合可持续设计的初衷!
-
用户体验:业主常说的就是这回东西都地方放了,孩子们都特别喜欢他们的房间,老人洗在多的衣服都能晾下了,我们朋友来了都说我们搬进大豪宅了!
0
0

认证 · 让您身份增值