精神归宿.木石之间



作品说明
- 项目类型:办公
- 项目地点:秦皇岛市
- 建筑面积:260.0000㎡
- 项目造价:55.0000万元
- 主案设计师: 杨云
- 参与设计师:精神归宿.木石之间
- 竣工时间:2023-03-02
- 设计机构:道合空间设计机构
-
项目定位:这是创业以来的第三个办公室了,我们希望创造一个舒适、高效、富有创意的工作环境。通过合理的布局和精心的装饰,我们致力于把空间的利用运用到极致,并把提升工作效率和舒适度考虑其中,办公室采用开放式布局的同时,融入了模块化的设计理念,各个空间可分可合,根据不同的使用情况通过设置的移门,偏轴门等,调整出不同的空间使用模式。
-
空间意境:空间的主色调以米色、白色和温暖的木色为主,中间在穿插黑色的木材、钢板,营造出了一个简洁、自然、舒适的工作环境。同时我们还使用了一些色彩鲜艳的艺术品,为空间增添活力和创意。
-
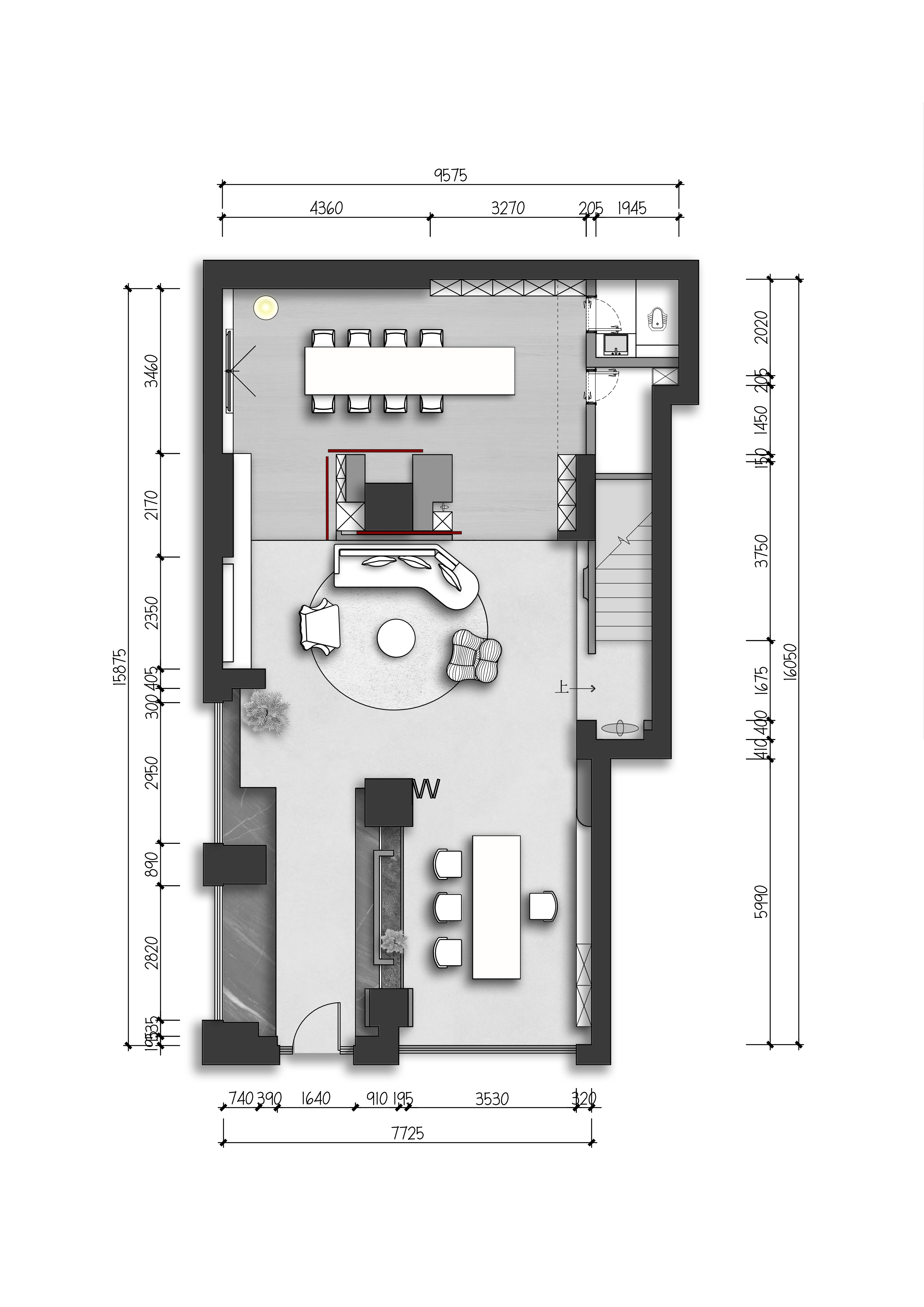
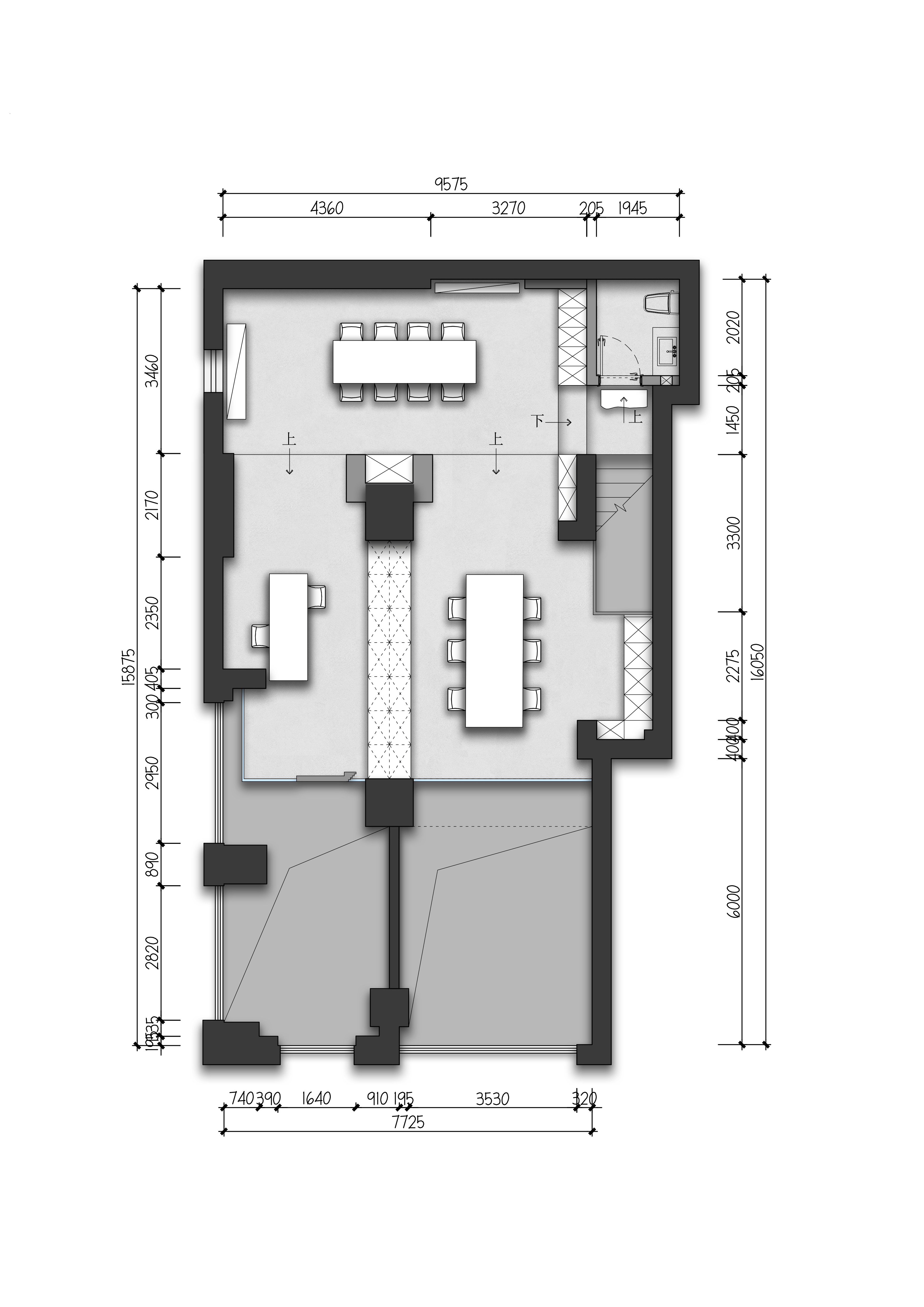
空间布局:办公室原建筑是一个举架5.5米高的住宅底商,因此它的梁柱结构极其的大(截面1米*1米),为了拓展出一个舒适好用的二层空间真是下了番功夫的,根据结构特点选定的楼梯位置二楼开口处如果按正常操作,梁下高度仅有1.6米,为此我们通过调整楼梯踏步和平台的关系,得到了一个2.3米的开口;同时楼板也是做的错层,这样一二楼相应的空间都有一个很舒适的高度!
办公室一层为公共区域,二层为内部办公,一二层又通过挑空链接起来;一楼主要以外接待、物料展示、会议室/方案汇报区等功能为主,设计中结合使用情况和采光通风客观因素,将玄关、会客区、茶室放在外侧,汇报区放到内侧;整体设计借鉴传统的造园的“虽由人作,宛自天开”的理念。
一层各利用造景、借景、对景等手法营造丰富画面层次,引人不断探索;各空间利用各种不同形式的门实现开合间的自由转换,午后阳光透过树荫在墙面勾勒出不同的图画,空间的松弛、惬意感直接拉满。
二层办公区利用结构分为两个办公区和一个会议区,整体简洁实用,特意在顶面保留了混凝土状态,简洁和自然一直是我们所坚持的设计源点。 -
设计选材:本次设计中我们成功利用了一些项目剩下的物料,DIY了很多家具,像我们的主茶台和茶几就是之前做项目剩下的半颗树,按照我们的设想手作出来的;楼梯踏板是北方常见的松木板,一般工地做跳板用的,我们通过设计让它呈现出高级的质感;我们的书架是利用之前剩下来的40*40木方搭配红色阳光板做的,很有设计感;我们还利用一些老物件置于空间中,像入口处的装置,二楼的百年门墩结合石板的踏步等等。
材料本身是没有好坏的,通过设计合理、创新利用材料,不仅体现了设计感、高级感更加节约造价,材料的循环使用,老物件的二次新生,这些都践行了创新、低碳的可持续发展的设计观! -
用户体验:我们一直认为,办公空间,在满足功能的同时,也要追求精神方面的东西,一个放松愉悦的心态才能进入到更好的工作状态。如今的城市生活充满了喧嚣与忙碌,您是否忽略或遗忘了您对精神方面的的追求呢?欢迎来到我们精神空间,让我们的精神世界,可以高于城市一点点……

