《暖 居》


作品说明
- 项目类型:住宅公寓
- 项目地点:桂林市
- 建筑面积:145.0000㎡
- 项目造价:30.0000万元
- 主案设计师: 陈诗密
- 竣工时间:2023-06-06
-
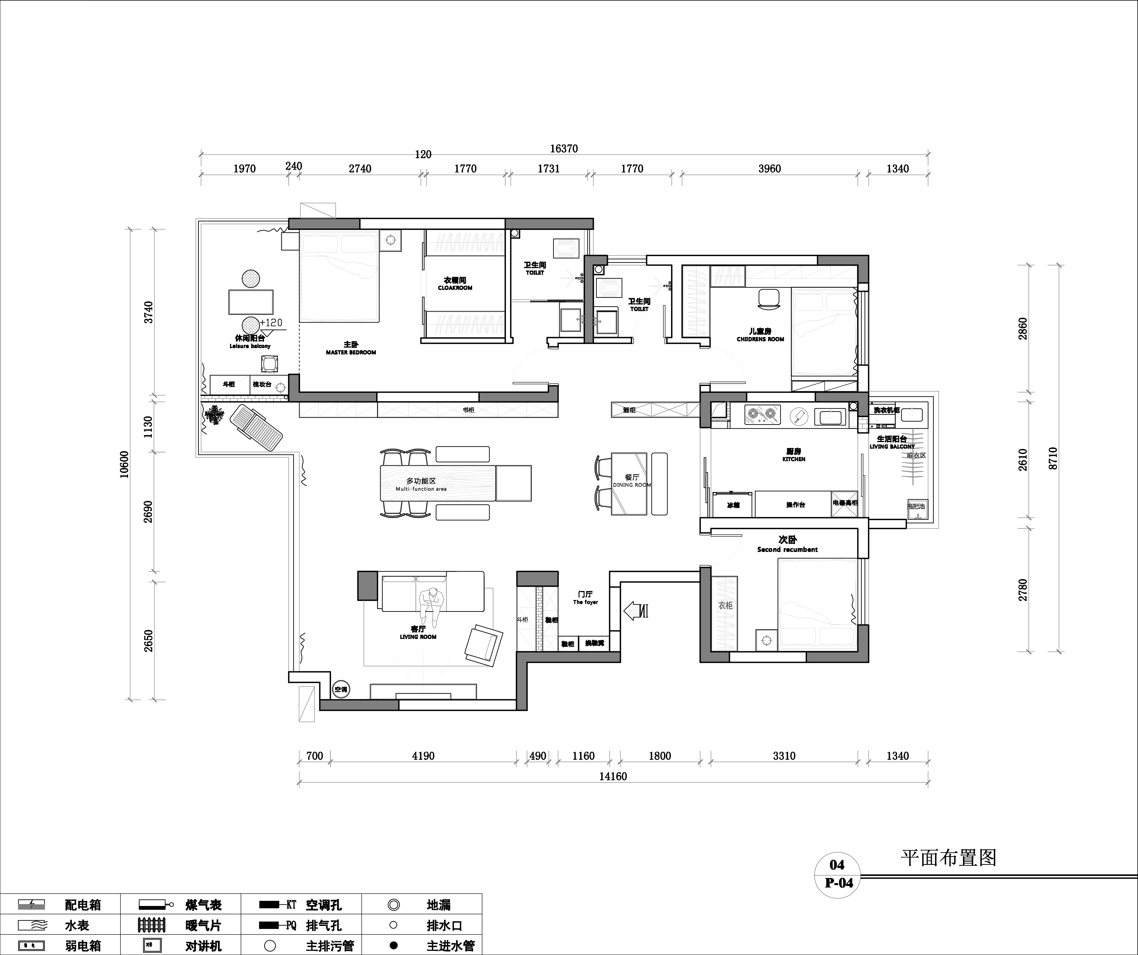
项目定位:满足一家三口居住,营造一个有学习氛围感,且满足日常会客需求的温馨舒适的家。
-
空间意境:缩小客厅区域,客厅顶面与承重柱形成一个梁与柱,柱与斜顶的关系,压低客厅区域层高,打造一个包裹感极强的观影空间。
-
空间布局:摒弃了传统夸张的背景墙,选择以功能实用为主。打造一个温暖舒适的空间,让业主在忙碌的生活中感受到一丝放松。专注于功能与舒适度,将业主对生活的热爱和品质的追求融入到空间的每一处,
干净的墙面,木质的温润,温馨的灯光,是忙碌一天的慰藉。
145平四房改三房,扩大公共区域,满足业主会客、开放式的书房、茶室的融合。整面书柜营造一个好的学习氛围。缩小客厅区域,客厅顶面与承重柱形成一个梁与柱,柱与斜顶的关系,压低客厅区域层高,打造一个包裹感极强的观影空间。
原始公共卫生间正对着餐厅区域,中间设置一整面餐边柜,餐边柜右边留空,增加过道的采光以及餐厅和儿童房之间的互动性,给闭塞的过道增添一丝活力。 -
设计选材:材料选用可循环使用的木材为主,木制家具使用寿命长,减少了资源的浪费和环境的负担。
-
用户体验:整个空间非常的温馨舒适,给人一种放松感,改变了生活习惯,不再是一回来只有窝在沙发上,现在可以坐在茶室看看书,做做手工,一起看一部电影,家庭氛围变得更好了。
客厅和茶室阳台之间形成一个洄游动线
岛台实用性非常强
入户鞋柜以浅色为主,让狭小的门厅显“大”
客厅顶面与承重柱形成一个梁与柱,柱与斜顶的关系,压低客厅区域层高,打造一个包裹感极强的观影空间。
客厅顶面与承重柱形成一个梁与柱,柱与斜顶的关系,压低客厅区域层高,打造一个包裹感极强的观影空间。
85寸超大电视,可满足在客厅、茶室同时观影。
阳台一角
整面既是书柜又是储物柜的结合,兼顾美观与使用性。
厨房洗、切、炒、出餐整个动线流畅,靠近烟道和下水管的地方,一起砌了壁龛,减少了尖锐的阳角,增加了使用空间。
生活阳台满足日常的洗、烘、晾晒需求。
公卫以浅色系为主
原始公共卫生间正对着餐厅区域,中间设置一整面餐边柜,餐边柜右边留空,增加过道的采光以及餐厅和儿童房之间的互动性,给闭塞的过道增添一丝活力。
儿童房集衣柜、书桌、床为一体,榻榻米增加了储物空间。
主卧阳台打通,给属于业主夫妻的一专属空间。
衣帽间储物功能强大
梳妆台靠近窗户,采光好,利于自然光下化妆。
原始公共卫生间正对着餐厅区域,中间设置一整面餐边柜,餐边柜右边留空,增加过道的采光以及餐厅和儿童房之间的互动性,给闭塞的过道增添一丝活力。
大板桌满足了茶桌、书桌、餐桌的功能。
餐厅靠近厨房
主卫结合业主的生活习惯,同样设计了蹲便。
茶室书桌
次卧预留老人房
午后窗边一角
145平四房改三房,扩大公共区域,满足业主会客、开放式的书房、茶室的融合。功能分区主要为:门厅、餐厅、客厅、茶室、主卧、衣帽间、儿童房、主卫、次卫、厨房、生活阳台。

