鞍钢博物馆
446
作品说明
- 项目类型:展示
- 项目地点:鞍山市
- 建筑面积:67000.0000㎡
- 项目造价:40200.0000万元
- 参与设计师:赵力,魏柯,万方
- 竣工时间:2021-12-01
- 设计机构:中建装饰集团所属深圳海外装饰工程有限公司
-
项目定位:鞍钢博物馆位于中国辽宁省鞍山市铁西区,占地面积67000平方米,其中博物馆主体建筑面积为12800平方米。鞍钢作为新中国第一家大型钢企,共和国钢铁长子,素有“一部鞍钢史,半部中国工业史”的说法。设计师在前往博物馆的选址——一座近70年历史的老烧结厂房考察时,能够非常清晰的感觉到,在往日工业生产情境下那些历史的回荡的声音:这座年近花甲的老厂房,被四排整体贯穿一层到三层的巨大烧结机器所布满。而这些具有浓厚工业感和历史意味的元素,构成了一个非常具有冲击力的视觉景观。从上世纪五十年代到八十年代至今,它们记录下了那段火红的工业化岁月。
-
空间意境:为了把这些代表和记录着中国工业发展史的遗存作为核心展品,带到普通观众的面前,设计师提出了这样的设计理念——“打造绿色生态 演绎工业景观”,希望把这个项目搭建成一个绿色生态的工业展示景观。
-
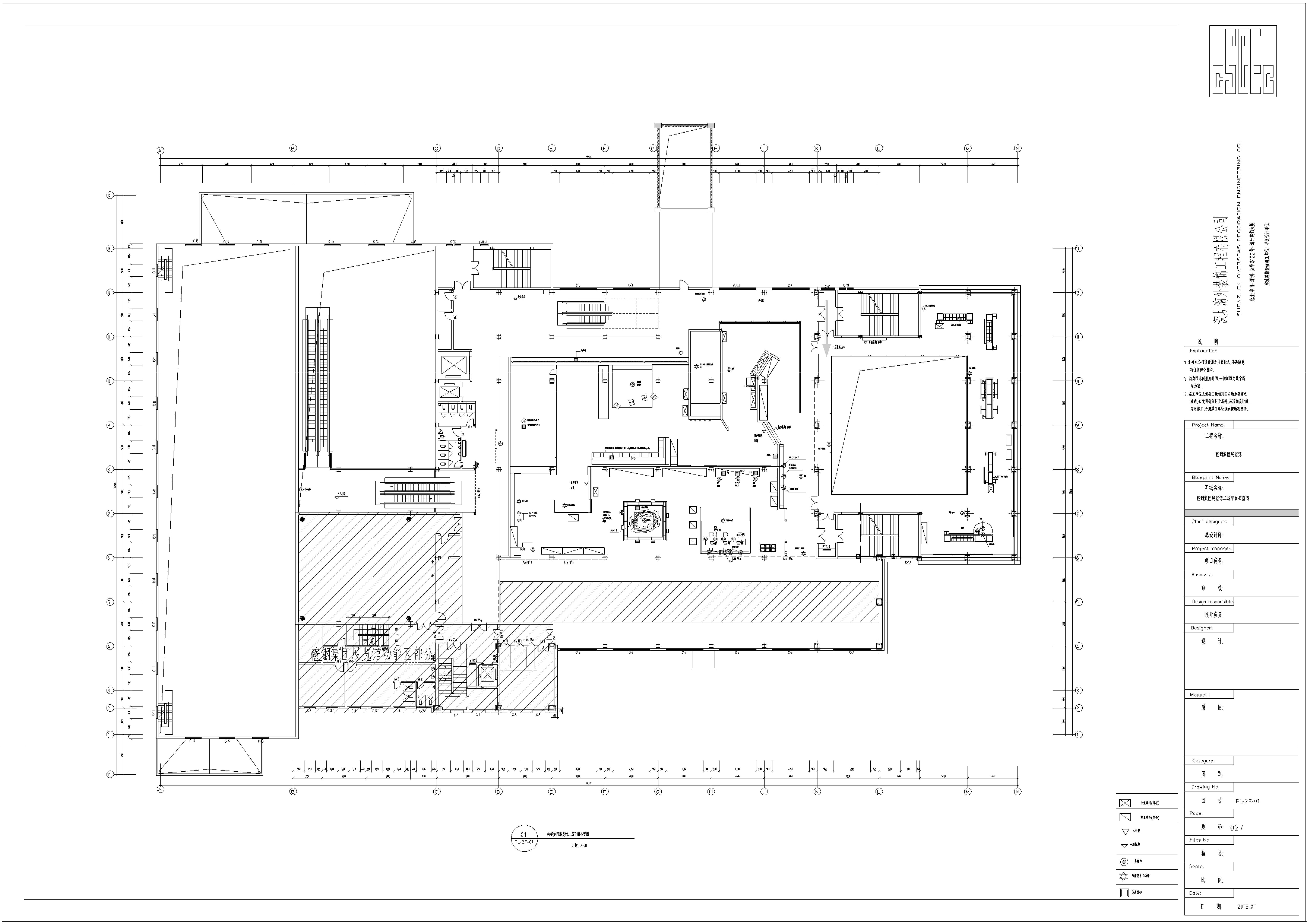
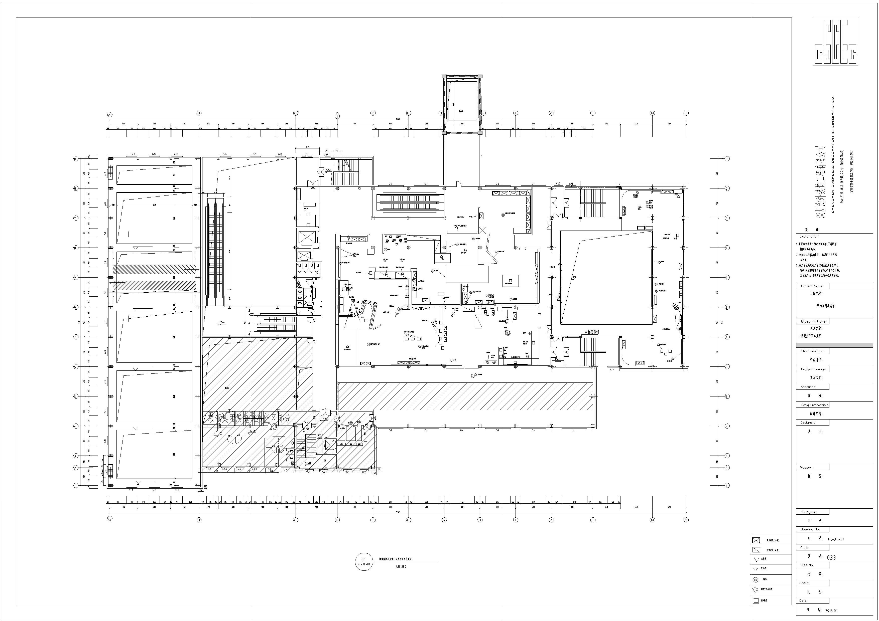
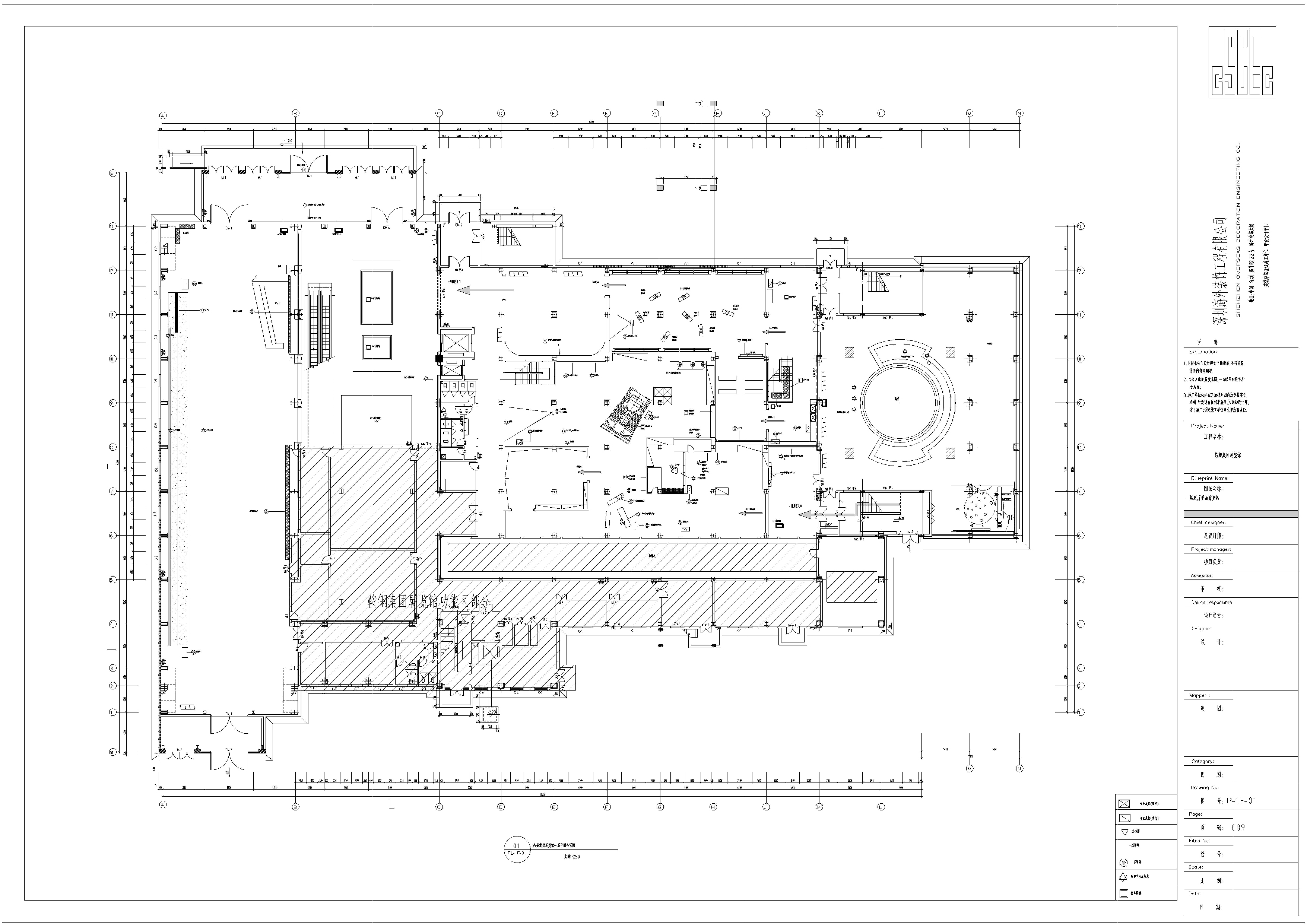
空间布局:设计过程中遇到的第一个重大问题是建筑的尺寸测量。二烧厂房经过了几十年的不断修缮,建造后实际上是没有一个完整的图纸,设计师们当时四处去寻找这个原始的图纸,最后在鞍钢厂区北门的一个小仓库里,翻到了苏联人在1953年绘制的厂房图纸。第二个重大问题是鞍钢多年来的各类工业遗存保留的非常完好,但同时也散布在了24平方公里厂区的各处。这片旧工业区域在本质上是一个尺度较大、开发强度高的复杂生态系统。为了把它们收拢起来集中展示,后来的解决方式是建设一个综合的钢铁主题公园。在最大限度保留原有工业元素这一前提下,海外装饰的设计师们成功做到了让原工业厂区焕发出符合其原本气质的“第二次生命”,让建筑本身成为最重要的展品之一。通过工业文化、公共艺术、绿色理念的完美结合,记录了鞍山发展的独特城市记忆,记录了鞍钢工业发展不同阶段的重要信息,见证了国家和工业发展的历史进程,把工业遗产所包含的文化价值,与当下的科技、环保、艺术、文化等诸多因子紧密结合,实现工业文明的动态传承和可持续发展。
-
设计选材:余米高的百年老高炉整体拆分,移至此处重新组装,这样既保护了文物高炉,也让高炉与厂房、与老工业设备共同重构成博物馆最为震撼的工业遗产景观。同样是秉承这样“修旧如旧,建新如故”的原则下,原厂房内十几米长的烧结机生产线、大型货运电梯、航吊等老工业设备都得以保留,不仅本身让工业景观在工业展览的措施下涅槃重生,也体现了绿色、环保、再生的设计理念。
-
用户体验:鞍钢博物馆建成后,它成为了当地一个重要的文化名片,也成为鞍钢集团去接待他的客户、合作伙伴以及政府领导的重要阵地。截至2022年8月,鞍钢博物馆共接待国内外参观者80余万次,受到了中央电视台、新华社、辽宁省电视台、鞍山广播电视台等多家媒体的报道,举办了包括中央企业工业文化遗产(钢铁行业)名录发布仪式在内的各项重大活动,还先后被评为国家二级博物馆、国家4A级旅游景区,并获得中国首批中小学生研学实践教育基地、辽宁省爱国主义教育基地等荣誉,得到了社会各界人士的一致认可。
1
1

认证 · 让您身份增值