宁波钓渔台怀旧经典美式


- 项目类型:住宅公寓
- 项目地点:宁波市
- 建筑面积:260.0000㎡
- 项目造价:160.0000万元
- 主案设计师: 仇鲁燕
- 参与设计师:仇鲁燕
- 竣工时间:2022-05-14
- 设计机构:宁波谷筑空间设计有限公司
-
项目定位:美式风格的韵味一直没有散去,在本案中,对经典美式做了简化,留简去繁,把精髓运到到极致。
-
空间意境:顶面的榆木装饰让美式的特点更突出。吧台区美式的水槽和龙头,淋漓尽致的表达了美式风格的特色。
-
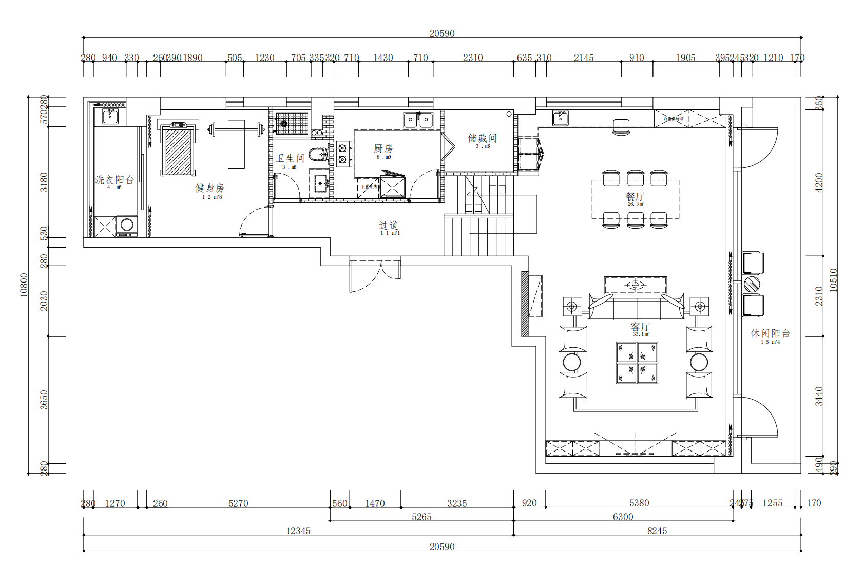
空间布局:原始结构的错层,大大提升了空间的纵深。包括客厅的高度,空间大气沉稳。
-
设计选材:大理石和木饰面的选择,经典米黄大理石,有重返当年的美好感。
-
用户体验:客户说:本来以为美式风格已经不流行了,谈设计的时候很忐忑,他们是否会把这个感觉给我做到位,施工期间很担心的多次去工地视察,设计师安抚我不要担心,相信我们就行了。在木工阶段,他们给了我一份后期色彩和软装的配置表,对后期的配色、选款,他们一一做了清楚的分析,这一下子就打消了我的疑虑。最终我就把后期的软装也交给了他们,让他们给我整体落地。
客厅4米高挑高,气势上就让空间感与众不同。客厅使用大量的石材和木饰面装饰;美式除了经典,还有对生活品质的追求。这不仅反映在软装摆件上对仿古艺术品的喜爱,同时也反映在装修上对大理石、护墙板的偏爱。
美式风格一直都颇受成功人士的青睐和追求,从整体到细节的每一个部分,都展示了其尊贵的姿容,足以给人留下深刻的印象。虽然在美式新古典风格中,摒弃了过于复杂的装饰手法,只采取简洁的装饰线条,但是依然可以从中感受到传统的历史痕迹与浑厚的文化底蕴。
尊贵而舒适是美式新古典风格的代名词。从整体效果上来说,美式新古典风格家居都较为宽大,或许这是因为美国人的体型较大的原因,但是这种宽大的设计让家居看上去显得气度非凡。美式新古典风格的整体色调都遵循了古朴、深沉的色彩,其效果显得深沉而含蓄。
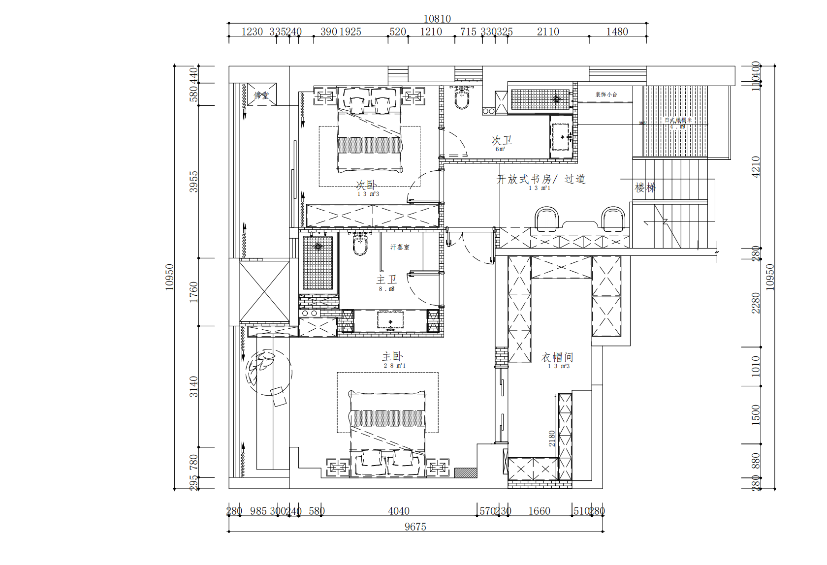
在一楼厨房的上方做了一个敞开的榻榻米区,供孩子们阅读,在榻榻米的方向纵览客厅全景,也能眺望窗外的景色。特别是晚上,哪怕错过了落日余晖,还可以静待漫天繁星。
从各个角度都能找到最舒适的视觉感。美是360°无死角的既视感。喜欢阳光斜斜的慵懒的洒在身上的包裹感。
美式乡村的咖啡吧设计,采用金色复古龙头以及半嵌入式水槽,散发着浓郁的美式气息。古典,以浓郁的人文为底蕴,格调磅礴深沉,内蕴百川归海之势。泡一壶花茶,备一份甜品,与闺蜜的一下午...
卧室区域采用花色墙布与纯色护墙板的结合,不追求过分的繁复线条,丰富了整个空间层次感,营造出活力又有灵气的空间氛围感,有窗幔的古典窗帘落落大方,精致经典。
读书是件有趣的事,有趣的灵魂百里挑一。
错层本来就使空间有延伸感,木色的淳朴配上茶色玻璃门,空间色彩浑然天成,既是过道又是敞开书房,功能兼具却又能把色调统一。说是过道不如理解为一个半敞开式独立小空间更为恰当。
经典的陶瓷饰品,象征吉祥和和谐。安静且稳重的一角,不浮夸,不骄躁。也有那么一丝丝浪漫情怀。如果阳光正好可以慵懒的照射进来,那么我正好配得上这惬意的一角。
客餐厅的大空间是整套房子的亮点。在整个房子中有承上启下的作用。
二楼以卧室和书房为主。主卧和客卧分别做了一个套房,提升了生活品质。

