室之岁华,其曰可读
197 - 项目类型:别墅
- 项目地点:杭州市
- 建筑面积:500.0000㎡
- 项目造价:250.0000万元
- 主案设计师: 赵艺哲
- 参与设计师:赵艺哲
- 竣工时间:2021-05-01
- 设计机构:浙江一则空间设计有限公司
-
项目定位:| 客厅 THE LIVING ROOM |
客厅以典雅的现代灰为主基调,将亮橙色作为不经意间的点缀,增添视觉上的动感
脚下的大理石泛着一层淡淡的光芒,倒影中有横与竖的交点,也有点与线的相融。无垠天地,以星海为被,以白石为床。
| 餐厅 THE DINING ROOM|
餐厅设计重视整个空间的整体构图。餐桌与吧台形成两个平面,与橱柜互相垂直,秩序井然。纵深的空间与厨房相连,视野开阔,透光良好。
| 厨房 THE KITCHEN |
黑色橱柜充满了现代家居中高级感,硬朗的线条掩映其中,自然的石面花纹蛰伏 | 卫生间 THE BATHROOM |
卫生间只简单勾勒几笔,看似不经意地描画,却透着细腻,只为映衬镜中的你。
| 卧室 THE MASTER BEDROOM |
房间整体灰白映衬,素雅简洁。白色天花板做了木色描边,突出空间的层次感;米色的床品搭配大格编织的床头,不失活泼
| 衣帽间 THE CLOAKROOM|
衣帽间最大程度地利用了空间本身的特点和优势,增加储物空间的同时,不忘忽视整体的协调性,并兼顾了空间的私密性。
| 地下室 THE BASEMENT |
地下室设计运用艺术笔法,化繁为简。光滑的大理石墙面与地面能够充分反射光线,让地下室更加通透明亮。静谧的冷光开辟了安静的一隅,在此可逃开外在的喧嚣,静置时间。 -
空间意境:屋内色彩素锦、风格典雅,整体氛围舒适温馨。合理的空间位置安排,使得室内功能完善全面,满足生活要求。然的灯光,在方寸之地予人无限想象,明亮舒适的视觉享受,优雅浪漫的美式氛围。采用极简手法弱化空间体块、界面、色调和材质,去繁存简,留其空灵,让人于静简与清欢之间,品味纯粹
-
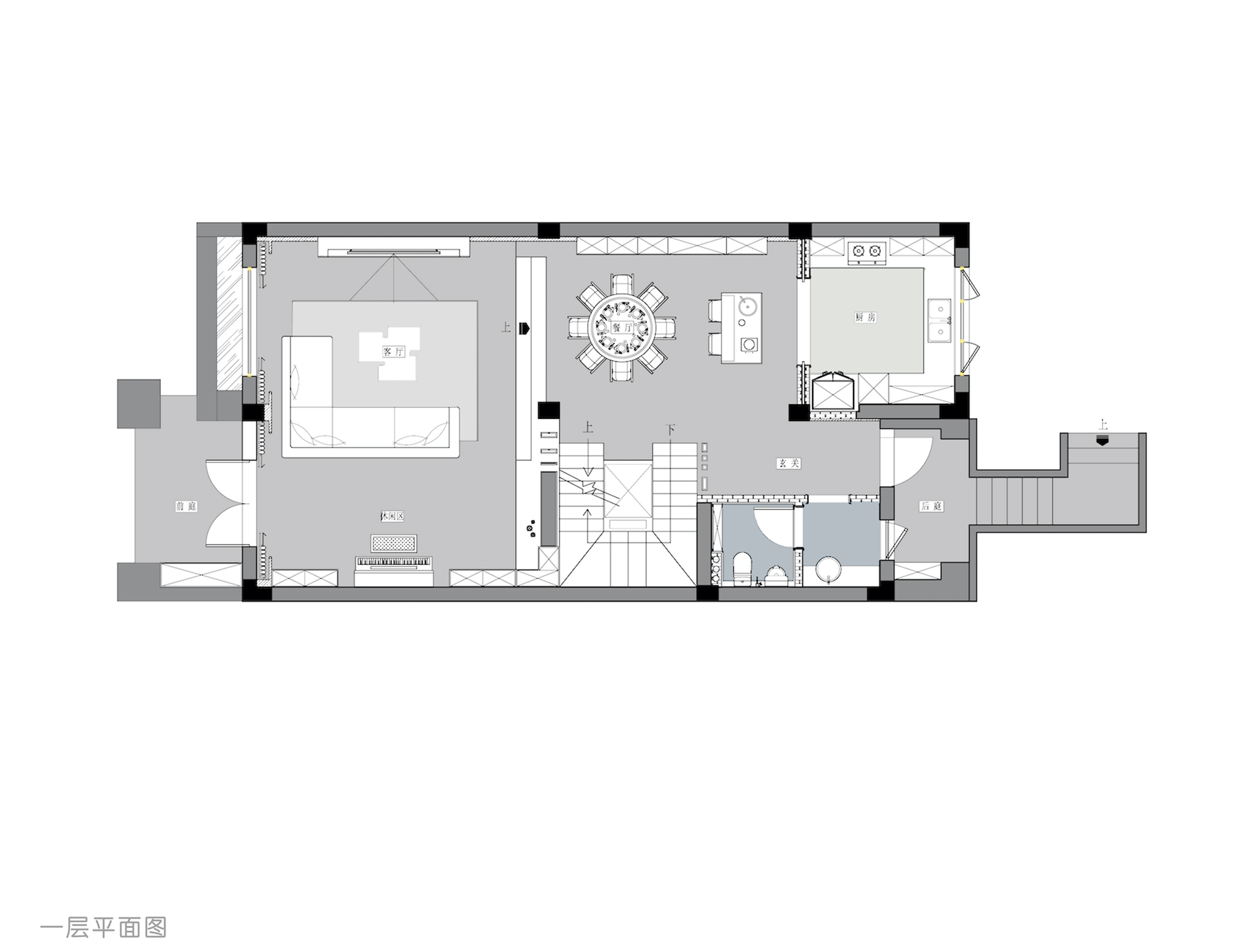
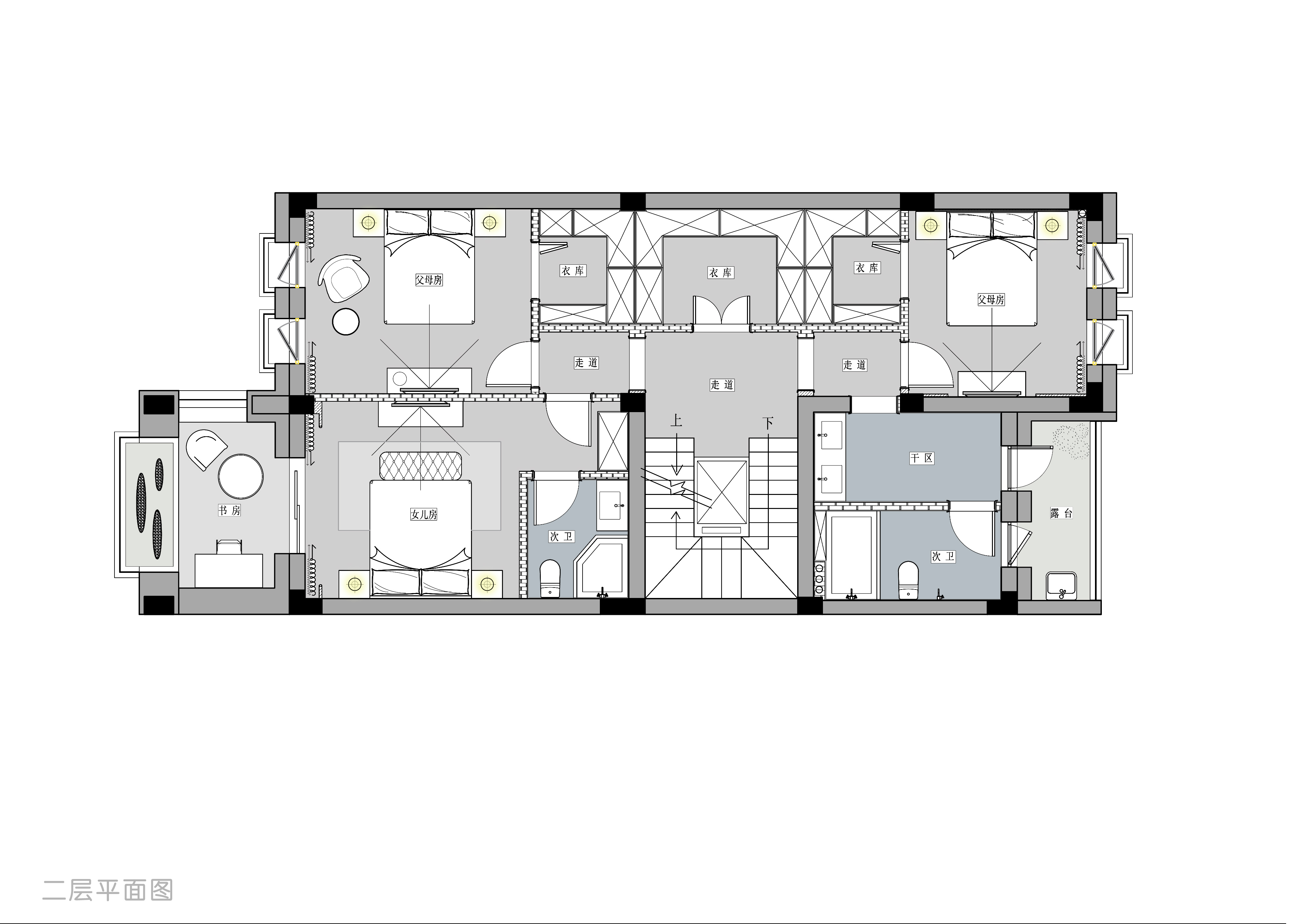
空间布局:根据别墅原始户型图,以及业主的需求,将整体空间做了以下的划分:
负一层为入室玄关、储物间、活动室;
一层为玄关、客厅、餐厅、中西厨;
二层为起居活动区、女儿房及两间客房;
三层为主人空间,该空间包含卧室,大采光起居室,衣帽间,卫生间。
-
设计选材:环保板型材
-
用户体验:温馨舒适,开阔宽敞。宜室宜居
——·触碰空间的张力·—— 不谋全局者 不足谋一域 | 客厅 THE LIVING ROOM |
客厅以典雅的现代灰为主基调,将亮橙色作为不经意间的点缀,增添视觉上的动感
多种线型在客厅中完美组合,形成包容共生的和谐视域。窗帘、橱柜、沙发的竖直线条在层层堆叠中奠定整个空间的秩序感。弧形灯饰仿佛悬浮于空中,似动非动,立体感十足。
头顶的六芒星闪烁着神秘的光彩,金属质感,包孕星辰的奥秘。脚下的大理石泛着一层淡淡的光芒,倒影中有横与竖的交点,也有点与线的相融。无垠天地,以星海为被,以白石为床。
设计的用心之处体现于每一个截面、每一个细节都能呈现出诗画般的风韵自然。
| 餐厅 THE DINING ROOM|
餐厅设计重视整个空间的整体构图。餐桌与吧台形成两个平面,与橱柜互相垂直,秩序井然。纵深的空间与厨房相连,视野开阔,透光良好。
绒面桌椅搭配光面桌台,一柔一刚,刚柔并济
悬浮的环形吊灯作为整个视域的中心,深具现代时尚感。金属质地可谓现代风格中永不过时的要素
| 厨房 THE KITCHEN |
黑色橱柜充满了现代家居中高级感,硬朗的线条掩映其中,自然的石面花纹蛰伏于暗处。一天在此沸腾,沉详而不烦。 | 卫生间 THE BATHROOM |
卫生间只简单勾勒几笔,看似不经意地描画,却透着细腻,只为映衬镜中的你。 ——·感悟生命的境意·—— 人闲桂花落 夜静春山空 | 主卧 THE MASTER BEDROOM |
主卧的设计融入了很多安眠的元素。背景墙纸选用了不规则的竖状条纹,深浅不一的灰色在视觉上富有一定的动感,但同一色调按住了过分的跃动。床品则选用了淡雅静穆的色调,安定心神,排遣烦闷。 | 衣帽间 THE CLOAKROOM|
衣帽间最大程度地利用了空间本身的特点和优势,增加储物空间的同时,不忘忽视整体的协调性,并兼顾了空间的私密性。
橱柜玻璃的纹理细密紧致,有如巴洛克风格的酒杯棱沿,朦胧中透着神秘。
黑色棱线错落有致,带来视觉上的舒适感,隐匿的格子间于整洁中透着大方。举手投足间的风雅将在衣帽间中一览无遗。 | 女儿卧 THE DAUGHTER'S BEDROOM |
古人言女子应有如玉之温润,如月之柔美。女孩房的设计着眼于女子之婉约娴静,房间整体灰白映衬,素雅简洁。白色天花板做了木色描边,突出空间的层次感;米色的床品搭配大格编织的床头,不失活泼 ——·探寻时间的秘密·—— 逝者如斯夫 不舍昼夜 | 地下室 THE BASEMENT |
地下室设计运用艺术笔法,化繁为简。光滑的大理石墙面与地面能够充分反射光线,让地下室更加通透明亮。搭配灰色与黑色家具,使空间不至于过分冰冷与单调。
静谧的冷光开辟了安静的一隅,在此可逃开外在的喧嚣,静置时间。
金属镶边磨砂玻璃制成的屏风,构成这一角的视域亮点。反转对称的设计,新颖独特,彰显艺术趣味与生活品味,透视空间的朦胧感引人无限遐想。
负一楼
一楼
二楼
三楼
四楼
0
1

认证 · 让您身份增值