熊·本熊


作品说明
- 项目类型:住宅公寓
- 项目地点:杭州市
- 建筑面积:90.0000㎡
- 项目造价:50.0000万元
- 主案设计师: 赵艺哲
- 参与设计师:赵艺哲
- 竣工时间:2019-08-01
- 设计机构:浙江一则空间设计有限公司
-
项目定位:方正通透的户型给予了设计师很大的发挥空间,住宅规划出三室,开放式的餐厅与客厅自成格局,灯带与无扶手悬空楼梯的结合是本案的一大亮点。使得较窄的户型变得通透,公卫隐形门与客厅书架的安排,既美观工整又大方得体。二楼增加书房选项,满足需求同时层次更加丰富,整个户型大方工整,动线合理,功能和美观兼备。
-
空间意境:灯带与无扶手悬空楼梯的结合是本案的一大亮点。使得较窄的户型变得通透,公卫隐形门与客厅书架的安排,既美观工整又大方得体。
-
空间布局:二楼增加书房选项,满足需求同时层次更加丰富,整个户型大方工整,动线合理,功能和美观兼备。
-
设计选材:环保型材
-
用户体验:通透敞亮,宜室宜居
推开房门,铺面而来的就是大面积灰色的空间,驼色皮沙发置于客厅的中央,进门右侧电视柜的空间设计,让业主快速的融入房间内,紧凑而又合理的利用了每一寸空间。电视柜右侧的高挑的鞋柜和左侧的隐形承重墙形成了对称的设计,超大收纳空间的鞋柜,让原本不大的房间多了一些立体收纳。 客厅
进门左手就是一个充满生气的客厅,黑熊的置物架使整个灰色空间多了一些自然灵动之感。一缕缕温暖的光线从镂空台阶的缝隙间穿梭进客厅中,让置身于繁忙的城市之中人儿,仿佛在这找到了一片自然的恬静。 楼梯
楼梯选用的是无栏杆悬挑楼梯踏步,虽然没有采用进口较薄的楼梯踏步,但是在综合考虑性价比的情况下,自制楼梯踏步现有厚度在可接受的范围内。 厨房
由于客户是单身男性,平时很少料理,所以厨房选用了开放性的空间设计,更加的年轻化、现代感。厨房的色调还是延续了客厅的基础色调,在沉稳中不失个性,在硬朗中又是不温馨。 主卧
主卧拥有大大的落地窗,在满足收纳的基础上,我们将嵌入柜子电视机和梳妆台结合。主卧背景选用了克莱因蓝,睡觉时仿佛置身于夜色星空之中。穹宇宙之宏大叹人之渺小。 主卫
由于卫生间本身的占地面积较小,也是因为这样的原因我们采用了灰色拼接式墙面设计,横向的拼接花纹可以延长空间的视觉效果。不同颜色的组合也增加了一些灵动性。盥洗台面的天然大理石,融入整个灰调空间。 客卫
隐形次卫处于客厅与餐厅之间,不仅满足了进门玄关功能还使整个空间更加完整神秘。 置物
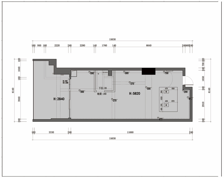
原始图
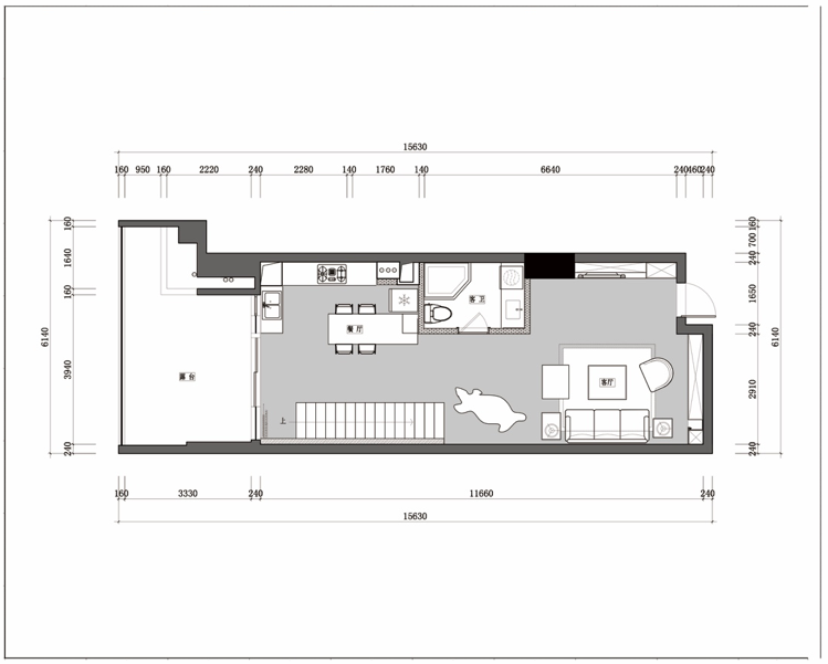
1楼
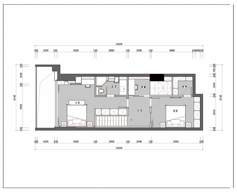
2楼

