《回·声》



作品说明
- 项目类型:住宅公寓
- 项目地点:成都市
- 建筑面积:200.0000㎡
- 项目造价:90.0000万元
- 主案设计师: 张霞
- 竣工时间:2019-07-10
- 设计机构:成都宏福樘装饰有限公司
-
项目定位:本案提倡简约,设计元素、色彩、材料非常简洁,但是含蓄中却透着雅致,很好地诠释了“少即是多”的道理,设计强调功能性,线条简约流畅。
-
空间意境:整体选择现代简约无主灯设计,让整个空间变得更加简洁;选用低明度灰色作为墙体颜色,安静简约,给人以明亮简洁之感;利用黑白灰三色家具突显空间的层次感;
-
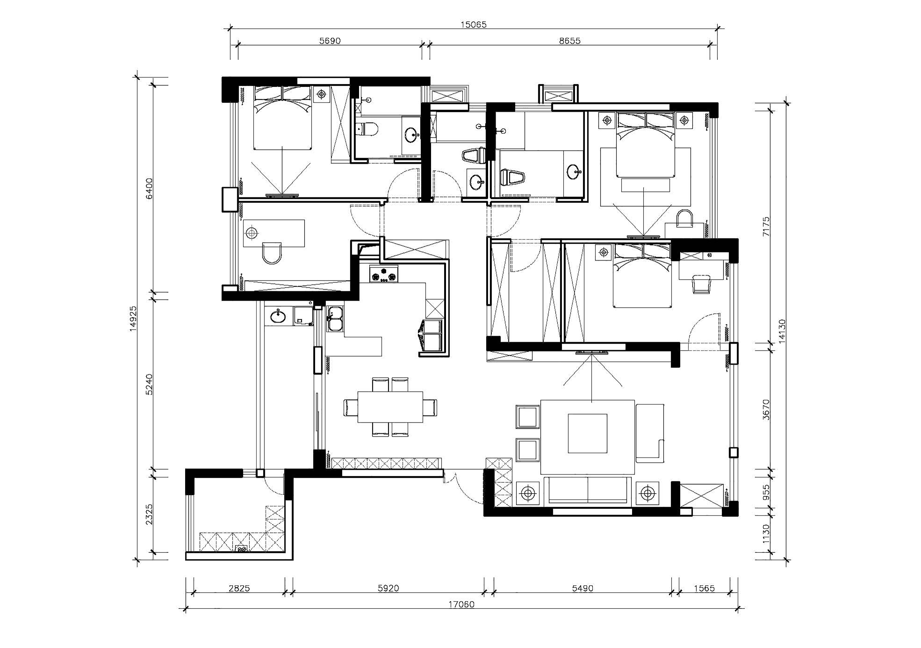
空间布局:❶ 拆除多余的视觉遮挡,部分观景阳台纳入客厅,补充客厅视觉,独立空间。
❷ 像主卧方向外扩20cm,四项卫浴功能同时满足。
❸ 扩大主卧衣帽间,同时改变儿童房入户位置, 原观景阳台部分纳入儿童房作为空间补充,改变空间尺度,提高儿童房舒适度。
❹ 改为开放式厨房,增加家人之间的情感互动,满足更多功能,提高生活品质。
❺ 拆除分割空间墙体,作为独立储物空间。 -
设计选材:本案提倡简约,设计元素、色彩、材料简洁,强调功能性设计,线条简约流畅,色彩对比强烈;
-
用户体验:业主说日常要处理的事情已经够多了,对于家我们希望简单一点。不用浓重的色彩,无需太多的雕琢,选择现代风格的原因,因为它提倡简约,设计元素、色彩、材料非常简洁,但是含蓄中却透着雅致,很好地诠释了“少即是多”的道理,设计强调功能性,线条简约流畅。在很大一部分上满足我对家装的要求。

