弥语



- 项目类型:住宅公寓
- 项目地点:成都市
- 建筑面积:180.0000㎡
- 项目造价:1000000.0000万元
- 主案设计师: 张霞
- 竣工时间:2020-11-20
- 设计机构:成都宏福樘设计
-
项目定位:男屋主Kanye从事设计行业,女屋主是海归,从事创意工作的他们不喜设限、敢于表现自我且真实。比起单一风格的倾向性,他们更钟情于法式、复古、时尚MIX。与大众同频的认知或许更容易引发共鸣,但他们并不希望自己成为随波逐流的一类人。
-
空间意境:室内场景的切换总少不了玄关与走廊的巧妙衔接,我们扩大了原入户玄关让其独立同时兼具更多功能性。
复古浮雕挂画尺幅合适、画面耐看与法式线条的精致典雅相得益彰。在这个短暂驻足的流动空间,仪式感由此引入,轻奢有度浪漫刚好。 -
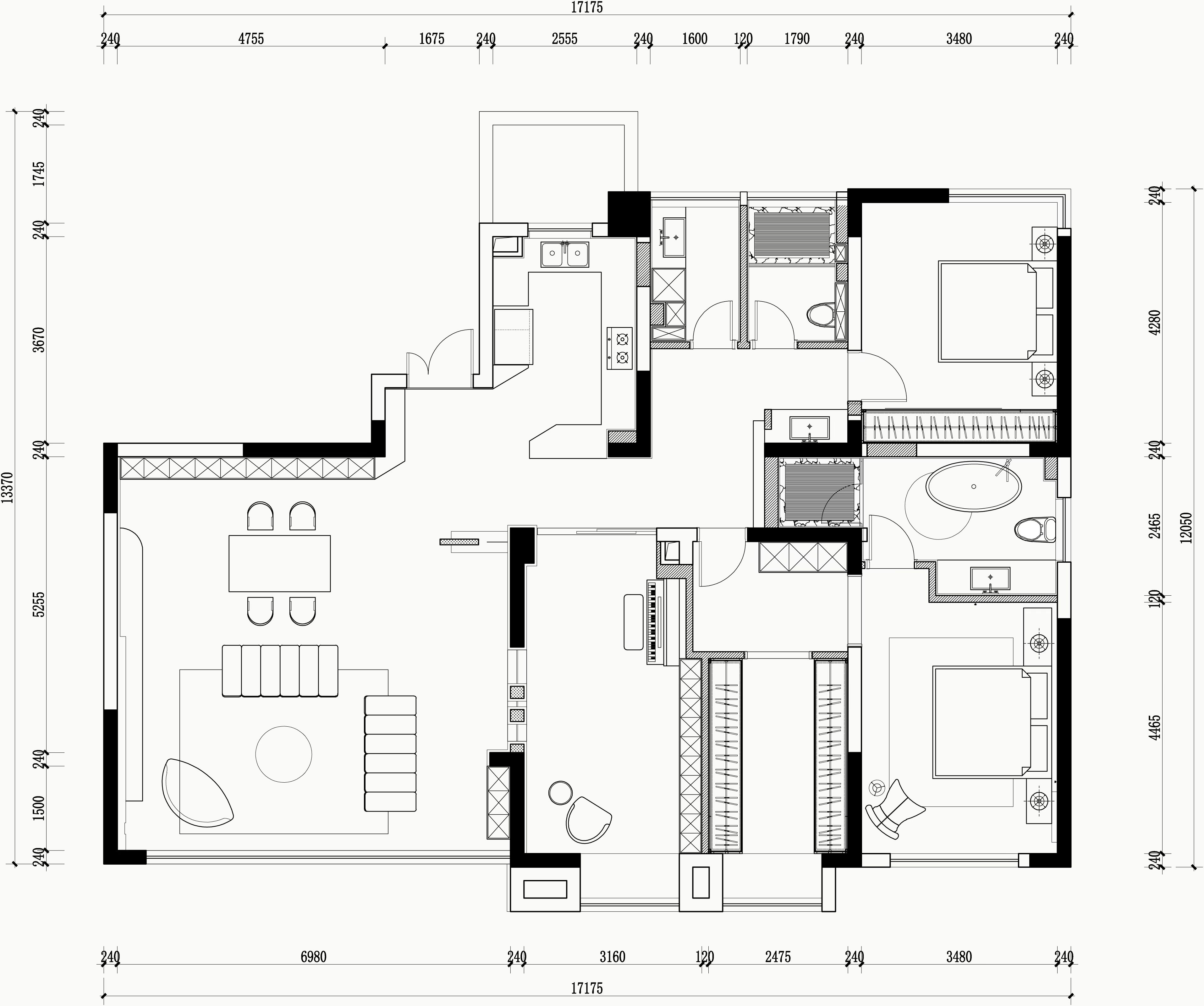
空间布局:移步至拱形玄关内,风景则别有洞天。移除厨房隔墙后,餐厅空间变得敞亮。引入的自然光线挑高了天花板的同时也让屋内色温更贴近屋外白日光。线条造型与空间氛围常常是交织相融,无法割裂。无论是顶部、立面亦或是空间交汇处,拱形线条的延伸感贯穿整个内建筑空间,层次丰富、精致优雅,构建出时尚现代又不失法式浪漫的氛围感。
-
设计选材:纳瓦霍黄古典奢雅,同时释放出温润的暖意,原木、黄铜、水晶材质的穿插则增加了空间明快感。雅致黑配优雅的线条,金色纯手工砖配精致的施华洛世奇拉手,灵动的向世人展示出优雅的法式贵族浪漫主义。正如奥黛丽·赫本所说“优雅是唯一不会褪色的美”。
-
用户体验:非常满意
男屋主Kanye从事设计行业,女屋主是海归,从事创意工作的他们不喜设限、敢于表现自我且真实。比起单一风格的倾向性,他们更钟情于法式、复古、时尚MIX。与大众同频的认知或许更容易引发共鸣,但他们并不希望自己成为随波逐流的一类人。
室内场景的切换总少不了玄关与走廊的巧妙衔接,我们扩大了原入户玄关让其独立同时兼具更多功能性。 复古浮雕挂画尺幅合适、画面耐看与法式线条的精致典雅相得益彰。在这个短暂驻足的流动空间,仪式感由此引入,轻奢有度浪漫刚好。
移步至拱形玄关内,风景则别有洞天。移除厨房隔墙后,餐厅空间变得敞亮。引入的自然光线挑高了天花板的同时也让屋内色温更贴近屋外白日光。
纳瓦霍黄古典奢雅,同时释放出温润的暖意,原木、黄铜、水晶材质的穿插则增加了空间明快感。
椭圆形餐桌恰如其分的体量感为生活中各种使用场景提供更多可能性。
原厨房与公共区合为一体空间被一分为二,形成中西厨两段式格局。原本的动线由正对餐厅区的“一字型”改为“L型”,中西分离满足更多的储物空间及备餐功能。多数时间Kanye一家用西厨的时间高于中厨,几步之遥的柜子里就装满了坚果、零食。
厨房被藏在黑色实木吊轨门后,透亮的玻璃材质引入更多自然光线、明亮通透。内部空间因生活阳台的并入呈L型排布整齐划一,色彩在这里被控制的很干净。
雅致黑配优雅的线条,金色纯手工砖配精致的施华洛世奇拉手,灵动的向世人展示出优雅的法式贵族浪漫主义。正如奥黛丽·赫本所说“优雅是唯一不会褪色的美”。
线条造型与空间氛围常常是交织相融,无法割裂。无论是顶部、立面亦或是空间交汇处,拱形线条的延伸感贯穿整个内建筑空间,层次丰富、精致优雅,构建出时尚现代又不失法式浪漫的氛围感。
雾化玻璃艺术屏风前后分区,让狭长的横向客厅空间隔而不分。勾勒出主次分明的边界感的同时又维持着透光不透影的暧昧氛围,让空间与空间始终保持开阔连通的视野。这与Kanye一家对于公共空间的期待相吻合。
石材壁炉、雕花线条、法式廊柱等上世纪中叶的法式元素以轴线对称的方式呈现,结合现代设计手法营造出简单时尚又不失素雅精致的法式浪漫轻奢质感。
充满“杂志感”和“展厅感”的半开放衣帽间被安置在雾化艺术屏风后,这里既是衣帽间也是小朋友的玩耍区,这种私密与聚合并存关系我们为Kanye一家创造的一种新的空间使用方法。
奶白色实木烤漆陈列柜配窄边线条,精致的奥地利进口水晶把手更是点睛之笔,营造出与场域契合的法式时髦感。
双开门后是通往阳台的必经之路。我们从古建筑中汲取灵感融合旧上海十里洋场的黑色窗格、长虹玻璃及拱形元素,简化线条以消弭传统带来的厚重感,营造出简洁优雅的现代法式气韵。让居住者及到访者领略工艺美学赋予曼妙奥义的同时享受更美妙的步入感。
Kanye跟随着自己的兴趣涉猎时尚、艺术、设计等多领域,从全球各地搜集了包括潮流球鞋模玩在内的全品类藏品。他说自己一直从市场出发,非常理性的收藏。并坦言,收藏对他来说确是一种爱好,也毫不避讳谈到的确为他带来了更多升值空间。对他来说这既是成长与生活的累积,也是个人情趣的顺理成章。
每天零距离和藏品互动,对他来说不仅是一种审美享受,更是一种提醒,让他能不断思考变化着的世界。而持续收藏的动力源自他对艺术这种表达形式的热爱以及背后所折射和蕴含的很多观念。
书房灵感源自宫崎骏的吉卜力工作室,高饱和度的深海蓝拥有着神秘的古典静谧气质,在房间所处位置的独特光照下,使屋内弥漫着一种经过过滤的光影,像是从动画中走出来一样。 块状撞色墙、实木百叶帘、钻石绒窗帘、黄铜手工吊灯、流线型圆桌营造出极具张力的艺术氛围,又意外地给人一种丰盈有趣却不显杂乱的秩序感。
一个好的居住空间,不仅仅依赖于对当下生活的精细考虑,还来自于成长性的预判。女儿现在才3岁,但我们依旧为她准备了“小套房”。原卫生间面积被缩小仅保留洗涮区及马桶仅她一人使用的独立洗涮间或许能更早的帮助启蒙她人格独立。 热带丛林的花卉图纹墙、孔雀蓝混合水绿色波纹砖、雅致黑实木浴柜、黄铜纯手工拉手、窄边线条等多种元素重叠交错,既有着法式的时髦精致,又略带南美的神秘热情。而顶部的筒灯和镜面壁灯的融合为光带来了更多层次。
房间整体以珊瑚红和静谧蓝为主,空气中散发出俏皮与童真。窄边黑色细线成为点睛之笔,让空间不至于过分呆板。
楼梯被设置在原有位置保持原本动线朝向,底部延展呈向上牵引扇状面。虽不算全新概念,但窄且陡的梯步踏面加宽所带来的脚感舒适度却是无可取代的。 石材踏步、实木扶手、铁艺栏杆、比利时进口肌理壁纸等材质的运用使得它更好的融入整个法式氛围中,不仅成为客餐厅的视觉连接点,更是一个从任何角度都能驻足欣赏的绝佳展示空间。
相对私密的个人空间在二楼,拾级而上即是主卧套房。Kanye一家有着极佳的审美和发现力,一种长久稳定的美感与轻松闲适的状态对他们来说尤其重要。
在寻找与之气质相符同时契合生活氛围的单品挑选上我们下足了功夫,让各式家具在三维空间得到完美归位,成为他们在忙碌之余补足理想生活的最佳栖息处。
跃层原始结构采光受限,足够通透的玻璃窗格代替实体墙,将更多的自然光线引入室内同时形成框景效果。
低饱和度的奶茶色调让人仿佛置身于华丽的巴洛克时代,静谧雅致的韵律在空间中自由游弋。奶棕色窗帘、卡其色实木布艺宫殿床、金属与复古蓝的点缀,为犹如剧场的空间融入一份浪漫与细腻。
卫生间氛围的营造源自Kanye一家热衷于全世界各地环游的喜爱,围绕着顶级酒店套房舒适体验我们将卫生间一分为三,浴缸置于空间端头,双盆台面置于宽敞通透的中间位置,马桶与淋浴房独立分开置于空间末端。
傍晚时分拉上帘子,伴随着日落余光从侧面贯入空间,悠步至浴缸就能享受片刻放空。
异形马赛克拼接严丝合缝几乎无可挑剔,细看下才能察觉到隐藏在末微处的工匠精神。在这里自然光引入的位置和角度都被提前预设,围绕着“未来他们在其中生活的真实场景、氛围”考量设计细节、从而落实。
次卫被安排在楼梯底部旁,洗衣房兼淋浴间的功能规划妥帖的解决了家务区功能。区别于传统手法,格栅玻璃隔断、不同形材的瓷砖混搭,小众的设计元素创造出不同层次的色块、线条、肌理感。

