多变的艺术空间 -东莞百司汇SOHO共享中心
701 - 项目类型:样板间/售楼处
- 项目地点:东莞市
- 建筑面积:500㎡
- 项目造价:4000万元
- 参与设计师:潘建伟、蔡沛杰、林梓生
- 竣工时间:2020-05-01
- 设计机构:马一平设计事务所(香港)有限公司
-
项目定位:东莞,一个一直在尝试并改变的城市,充满着无数的可能,并飞速地发展着。百司汇SOHO坐落于东莞凯达科技设计中心项目区域,与整个项目一并承载着改善城市的产业结构,为周边地区优势产业的二次创业提供集群、高度自主创新设计研发平台的使命。故此,百司汇SOHO项目,我们期待最终落地的是一个年轻、开放,带有激情的综合场所,没有过多的属性限制,却能给到过往者思考蜕化的指引。
随着市场日益发展,各种共享经济业态陆续出现,除了大家日常接触的共享单车、共享汽车、共享小型KTV、共享充电宝等外,“共享空间”作为一种新的市场 -
空间意境:将年轻的理念与设计美学融合是此次设计的核心理念,个性、潮流、年轻化是空间的基调。精挑细选的每一件家具,与各种艺术装置呈现在空间不同的区域,流露出浓烈的艺术氛围与空间多变思维,我们期待这个空间可以成为如艺术家、设计师、电影制作人乃至诗人群体寻求灵感及创意迸发的趣味聚集地。
-
空间布局:这是一个被赋予乐趣的项目,设计师从一开始就想着让空间呈现更多新奇,给它一些属于这个项目独有的空间气息以及效果展示。故此,从一开始便在探寻,不管是空间布局,材料、家具选型,甚至灯光,近乎执着。
共享中心针对SOHO寓所的业主开放,兼具娱乐休闲、艺术文化、商务会谈、路演展示等功能属性,旨在为业主提供一个多元化的空间场所,多维度满足业主的生活所需,同时也鼓励业主打破原有孤立、封闭的生活模式,融入社区去收获社交的乐趣。 -
设计选材:空间的选材倾向于经济与美观并存的款式,项目或多或少会受到造价的约束,而在造价范围里提供最合适的设计材料样板是设计极为重要的部分之一,在这个项目中,设计师用了大量的透明材质弱化了实际的尺寸感,营造轻盈、细腻的空间氛围,中间的装饰柜由两色亚克力拼接而成,色彩拼接似无章法,细看又不失美感,精心挑选的透明亚克力凳有序叠放于空间一角,是空间的装饰点缀,也是功能凳。不管是空间的多样性,期间的家具或者软装饰品,也可以根据空间属性的变化而发生各种新的可能。
-
用户体验:在驻扎的城市,若没有足够的空间与资本,那便以平和的心态,选择一处刚好的空间,恰好的生活方式,以及积极的定向圈层,足以支撑目前的梦想,便也足够。
生活从选择的那一刻开始,带着寄望,就与以往不同。
这是一个被赋予乐趣的项目,设计师从一开始就想着让空间呈现更多新奇,给它一些属于这个项目独有的空间气息以及效果展示。故此,从一开始便在探寻,不管是空间布局,材料、家具选型,甚至灯光,近乎执着。
Sharing Center | 多元化共享空间 共享中心针对SOHO寓所的业主开放,兼具娱乐休闲、艺术文化、商务会谈、路演展示等功能属性,旨在为业主提供一个多元化的空间场所,多维度满足业主的生活所需,同时也鼓励业主打破原有孤立、封闭的生活模式,融入社区去收获社交的乐趣。
Sharing Center | 洽谈区域
Sharing Center | 洽谈区域细节
Sharing Center | 洽谈区域细节 迎合年轻群体崇尚自由、追求个性、富有创意的特性,我们打造了一个灵活多变的活动区域,整个空间不再局限于某种单一的功能属性,它可以适应不同场合需求而任意调动,如party、会议,路演及展示等。
Sharing Center | 洽谈区域装饰柜 设计师用了大量的透明材质弱化了实际的尺寸感,营造轻盈、细腻的空间氛围,中间的装饰柜由两色亚克力拼接而成,色彩拼接似无章法,细看又不失美感,精心挑选的透明亚克力凳有序叠放于空间一角,是空间的装饰点缀,也是功能凳。
Sharing Center | 洽谈区域细节 通过最大程度地弱化各区域的界限,使空间更具开放性和包容性,在此可以获得更多的交流,带来融洽的人际关系和社区氛围。
Sharing Center | 洽谈区域细节 快节奏的生活下,也需要能有一处安谧能使焦躁的心平静下来,书吧便是最好的心灵驿站,一本书籍,一杯茶饮,忘掉一切繁杂,尽享慢生活的乐趣,找回最初的本心。它还可以是举办文化沙龙、读书会的场地,业主在此能分享阅读与交流创作,建立更深层次的联系。
Sharing Center | 社交与健康概念 共享中心设立的初衷,也在于倡导一种健康的生活方式,业主不单只是走出自己的小空间,也要勇于融入社区,发现社交的乐趣,而健身区,也不仅只用于锻炼身体,同时也是社交和传播健康生活的媒介。设计师利用玻璃、灰镜材质的穿透性,消除空间的封闭和压迫感,业主在这里可以释放生活与工作的各种压力,激发更多的力量和激情。
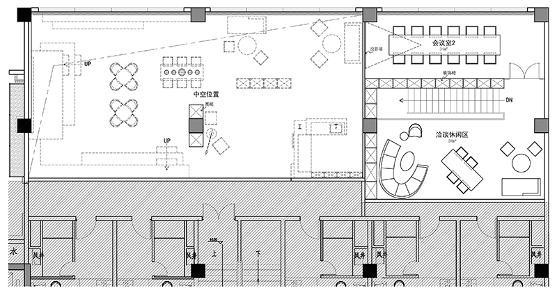
Sharing Center | 二楼夹层商务共享空间
Sharing Center | 二楼夹层商务共享空间细节 沿着楼梯而上至夹层空间,该处为私密的交谈和会议而设,考虑到不同场合的需求差异,我们以楼梯为界,通过不同的色彩、桌椅、装饰品等划分两个不同功能的空间,右侧区域的长桌供庄重正式的商务洽谈的使用,左侧设计上偏休闲,可供业主招待尊贵的客人,进行更惬意的交流。
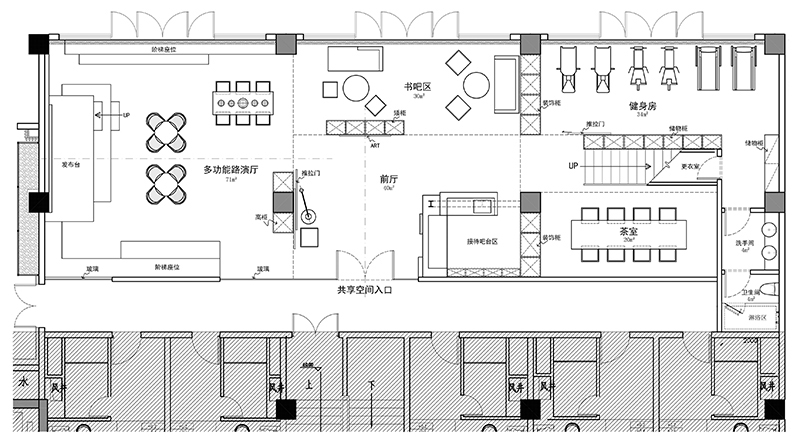
一层平面图
夹层平面图
0
0

认证 · 让您身份增值