积木-惠州中洲理想仓销售中心
646 - 项目类型:商业
- 项目地点:惠州市
- 建筑面积:500㎡
- 项目造价:5000万元
- 参与设计师:马一平
- 竣工时间:2018-05-31
- 设计机构:马一平设计事务所(香港)有限公司
-
项目定位:为项目取名“积木”,颇有些童年的玩味,既是描述,也是定义。惠州中洲理想仓主推青年公寓,作为销售中心,在满足功能需求同时,也做了形式上的表达,同时亦希望是一个CLUB,取简去繁。
理想仓,顾名思义,面向精英人群,开发商以及设计师极力在呵护这个群体对未来居住空间的美好想象及希望,使居所设计成为更高理想的动力和源泉之一。 -
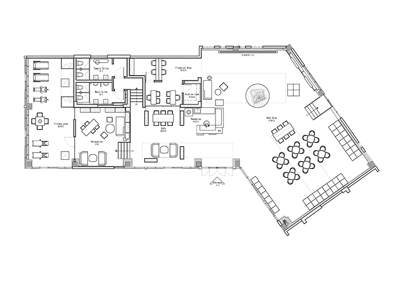
空间意境:项目为现代简约风格,面对年轻的精英客户群体,在整体的布局上我们期待有更多的精致与活力。空间的面积不大,我们将其处理成灵活而丰富地空间,兼并了多种功能,还意向了多个空间属性,如吧台,咖啡厅,书吧,路演厅等,可灵活用于销售功能使用、或是会所功能沿用,或者日常活动支持。
-
空间布局:前台的构成形式、书架的细节处理和做法、洽谈区的活动木质坐椅……相继、连续而又独立存在。就像孩童的积木一样。功能上既满足接待咨询,也能有吧台的出品表现。
工业感是这个空间重要的组成部分,而在形式是自由的,丰富多样,由各类方形几何形体组成,材料相对,质感对比明显。
沙盘台是功能所在,在形式上,处理成浮在空中的一块岩石。
咖啡吧,书吧,健身房等概念的提出与实现,不单只是功能上的需求,更多是在倡导一种更为健康、富有层次的生活方式。
洽谈区布置上特意不做固化,它可以是多样化的,随机性的。它可以是售楼会谈的区 -
设计选材:理想仓售楼处采用了兰亭雅韵大理石、白色乳胶漆、拉丝不锈钢、灰绿墙砖、镀膜玻璃、编制皮革等主要材料,在这套作品中,通过设计及材料的结合,特意多处留白,留出更多的想像和克制。而空间中的灵魂,在于其中的艺术品,可以是画,也可以是雕塑。我们希望表达的精神层面地东西与这些材料一样,可以经久地留在人们的心中。
-
用户体验:当我们尝试将空间拆解,每个人地爱好和志趣、甚至当下的某些情绪都能得到关照,于此,真正实现新时代年轻人群生活方式下的空间赋能。在这里,安放得了漂泊的心,容得下正经的灵魂,也允许天马行空的存在,而深藏心底的梦想,也将得到响应与绽放。空间的静谧呢喃,也期待能将更多美妙的想法走进更多来往者的心理。
为项目取名“积木”,颇有些童年的玩味,既是描述,也是定义。惠州中洲理想仓主推青年公寓,作为销售中心,在满足功能需求同时,也做了形式上的表达,同时亦希望是一个CLUB,取简去繁。
IDEAL WAREHOUSE SALES CENTER | 前台兼吧台 前台的构成形式、书架的细节处理和做法、洽谈区的活动木质坐椅……相继、连续而又独立存在。就像孩童的积木一样。功能上既满足接待咨询,也能有吧台的出品表现。
IDEAL WAREHOUSE SALES CENTER | 前台兼吧台 工业感是这个空间重要的组成部分,而在形式是自由的,丰富多样,由各类方形几何形体组成,材料相对,质感对比明显。
IDEAL WAREHOUSE SALES CENTER | 沙盘区至洽谈区 沙盘台是功能所在,在形式上,处理成浮在空中的一块岩石。
IDEAL WAREHOUSE SALES CENTER | 洽谈区 在这套作品中,多处留白,留出更多的想像和克制。
IDEAL WAREHOUSE SALES CENTER | 洽谈区细节呈现 空间中的灵魂,在于其中的艺术品,可以是画,也可以是雕塑。
IDEAL WAREHOUSE SALES CENTER | 咖啡吧
IDEAL WAREHOUSE SALES CENTER | 咖啡吧细节呈现 亚克力书架与硬朗的金属相得益彰、柔软的皮质细节与肌理细腻的漆面交相呼应……
IDEAL WAREHOUSE SALES CENTER | 书吧 咖啡吧,书吧,健身房等概念的提出与实现,不单只是功能上的需求,更多是在倡导一种更为健康、富有层次的生活方式。
IDEAL WAREHOUSE SALES CENTER | 接待区细节呈现 当我们尝试将空间拆解,每个人爱好和志趣、甚至当下的某些情绪都能得到关照,于此,真正实现新时代年轻人群生活方式下的空间赋能。
IDEAL WAREHOUSE SALES CENTER | 洽谈区 洽谈区布置上特意不做固化,它可以是多样化的,随机性的。它可以是售楼会谈的区域,可以是发布会现场,也可以是年轻人嗨皮的俱乐部,甚至可以变成一个mini电影院。
IDEAL WAREHOUSE SALES CENTER | 洽谈区细节呈现 洽谈区的活动木质坐椅,由积木意象而来。任何时候我们都能如孩童般,尽情想象、自由组合自己当下所需的个性空间。 希望通过积木的概念,营造一种轻松、自由,甚至允许散漫,却也保留规整的空间氛围。
IDEAL WAREHOUSE SALES CENTER | 洗手间 在这里,安放得了漂泊的心,容得下正经的灵魂,也允许天马行空的存在,而深藏心底的梦想,也将得到响应与绽放。
平面图
0
0

认证 · 让您身份增值