肆月河豚文化主题餐厅
3693
作品说明
- 项目类型:餐饮
- 项目地点:北京市
- 建筑面积:390.0000㎡
- 项目造价:190.0000万元
- 参与设计师:郭明、王鹏
- 竣工时间:2020-06-01
- 设计机构:山隐悦界(北京)空间设计有限公司
-
项目定位:肆月河豚文化主题餐厅融合空间情绪、生活文化以及环境气质等因素,设计师用设计与艺术融合的方式描绘空间,将宋代文化脉络融入其中,以东方人文的演变与糅合传达当下的设计美学,同时赋予餐厅独有的文化气韵。
-
空间意境:空间开合有序,线性绿色钢板是设计师赋予空间的艺术感知,利落切割的线条,半围合的式样,自然过渡空间,结合备餐柜,有力的打造出结构感,而选取青绿色,既是四月草长莺飞的代表色,也意在呈现“曲径通幽”道路两旁的绿树环绕,而依地而立的造型灯则来源于古代园林路径边照明用的 “石灯笼”,是设计师对空间立体层次感的演绎,在光线的辅助下,整个空间灵动通透。
-
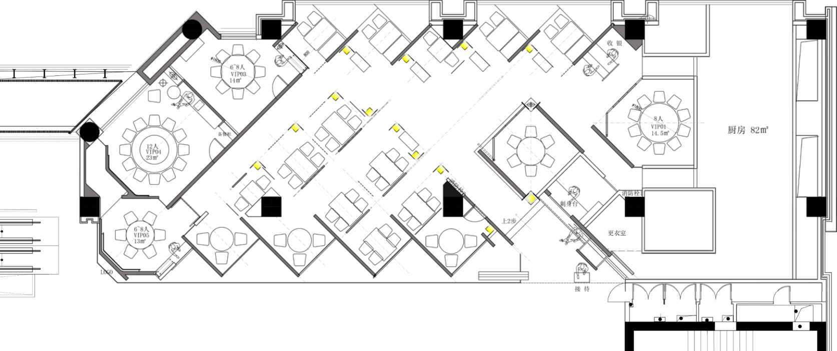
空间布局:国画讲究“之山折水”,造境讲究“未山先麓”,室内空间的设计之初,设计师利用现场原始斜面结构,引入“屏风”的形式划分体验动线,“屏风”依据有序的阵列散布在场景中,不仅拉长了空间路线,而且满足了遮挡的功能需要,建立空间层次的同时给到店顾客 “曲径通幽”的心里过度。
-
设计选材:形成一个室内氛围,需要调动“色、声、香、味、触”五感来共同参与,独立的小空间就餐区,搭建在山水景观之中,空间的序列以人为核心,将宋代山水画、“屏风”纱幔、青绿色隔栅分布四周,大面积落地玻璃的运用,将光与景的变化纳入设计思考,玻璃透出餐厅清浅的配色,雅致而柔和,室外的水滴造境也婉转呼应餐厅的清雅气韵。
-
用户体验:开业短短四个月获好评无数,以环境评分4.85分荣登北京餐厅环境榜第10名
0
1

认证 · 让您身份增值