光与影-嘉兴中洲花溪地售楼处设计
553 - 项目类型:样板间/售楼处
- 项目地点:嘉兴市
- 建筑面积:1000㎡
- 项目造价:5000万元
- 参与设计师:马一平
- 竣工时间:2017-08-31
- 设计机构:马一平设计事务所(香港)有限公司
-
项目定位:嘉兴中洲花溪地位于嘉兴市中心南湖区,项目地理位置优势明显。嘉兴东起上海松江,北接苏州市,南接海宁市,西连桐乡市。五市交汇处,在长三角最核心的版块。地处江浙一带的嘉兴,承载着江南的悠远文化,基于这样的地理背景,MYP的最初设计构想,是想遵循它的历史文脉,结合当代审美,融合生活深层的需求,通过设计去传达一种生活的态度。而造一个符合当代审美且不失中式意境的简奢空间,是这个项目的设计诉求。
-
空间意境:设计师在江南的文化背景下,对本项目的初衷是设计一个符合当代审美且不失中式意境的简奢空间。
入门处做了一处烟雨长廊,缓缓走过红毯,仪式感满满的同时,也是江南文化浓浓的序幕。走进大门,迎面而来的是用玻璃砖堆砌而出带有山水画意境的整片品牌墙,诗意的“中洲花溪地“项目名,䇄立于山水之间,玻璃砖墙在光线的影射下熠熠流动,便有了一番流动的江南地域气息。
项目选用了中国画里特有的蓝作为主色调,门迎千万客,一扇扇精致又不失传统的实木门,气势磅薄,仪式感十足,加之选用了宫廷常规使用的地面设计,各种元素的不断糅合 -
空间布局:平⾯布置上,设计师采⽤了回游的⽅式,通过故意隔开空间的⽅式,让这种古典对称式结构,在主要空间中得以体现。整合过程时注重中轴线的垂直动线,将前厅、沙盘区、洽谈区合理分布,意图调出空间之间的连接性,连续且延伸。
楼梯作为交通主流线,起到承上启下的作用。走过休闲区域,我们可以通过楼梯走向二层空间,也可通过二层空间返回到一楼休闲去处。夹丝玻璃及不锈钢条是楼梯拦河的主要组成材料,而上方特意筑造了一面自然粗犷的砖墙,这也是为了延续空间的户外sytel,更具连贯性。二楼有两套异地样板房,看客可通过交通流线选择走动 -
设计选材:项目主要材料有玻璃砖、木饰面、古铜、紫金钻大理石、烤漆板等,都是环保耐用,而又具备美观性的材料。环境可以主导⼼境,也可以调动情绪,这⾥的很多材料都有⼀种⽣命⼒,空间中的物件,是⼀种⽂化累积和雅致所在。⽽在设计中特意的的留拙,不过是让设计免于精致,留待空间中的看客,涂抹出不同的风情来。
-
用户体验:室内设计很好的做了分布,不管从销售的角度,还是购房者体验的角度,都是非常有趣而丰富的。尤其是二楼特意设置的“花房”、“家具展厅”、“吧台”概念等区域,都给到客户很好的关于生活的多种美妙体验,这些间接都在促进客户的归属感,促进其购买这些对应的“有想法的生活场所”。
入门处做了一处烟雨长廊,缓缓走过红毯,仪式感满满的同时,也是江南文化浓浓的序幕。走进大门,迎面而来的是用玻璃砖堆砌而出带有山水画意境的整片品牌墙,诗意的“中洲花溪地“项目名,䇄立于山水之间,玻璃砖墙在光线的影射下熠熠流动,便有了一番流动的江南地域气息。
HUAXIDI SALES CENTER 入口接待处 室内整体设计采用了框架式的构造,侧边不锈钢条立地而起,又互相交合而成,汇聚一个围合气息的空间。天花采取非传统的做法,选用了宣纸作为铺陈,灯光一起,古色古香,层次分明。 前台接待处在设计上特意定制了两个中式案几满足功能与气质上的需求,而后错落有序又夹带“刺绣”元素的落地屏风画,与户外斜射进来的光线相抵,结合营造了一番中式特有的韵感与雅致。 | 继承传统,而不囿于传统
HUAXIDI SALES CENTER 模型区-1 项目选用了中国画里特有的蓝作为主色调,门迎千万客,一扇扇精致又不失传统的实木门,气势磅薄,仪式感十足,加之选用了宫廷常规使用的地面设计,各种元素的不断糅合去糙,于无形中体现了一种贵族特有的生活方式。
HUAXIDI SALES CENTER 模型区-2 在建筑⽅案时,我们便参与了进来,将处于空间轴线中央的沙盘区,做了挑空,底下沙盘平整⼲净,其上颇有⼏分海上升明⽉的味道,空间的⾃然观感则被带了出来。
HUAXIDI SALES CENTER 洽谈区-1 天花上我们改变了过往传统的做法,⽽是将江南最常见的灯笼形式,做成了天花。光源本是空间不可或缺的⼀部分,放眼望去,温柔的天光洒落下来,不刺眼,却⾃然,随处可歇。 灵动的空间,自然的光线,一定程度上也带来了情感上的互动与信任,间接促使销售的达成。
HUAXIDI SALES CENTER 洽谈区-2
HUAXIDI SALES CENTER 洽谈区-3
HUAXIDI SALES CENTER 洽谈区-4
HUAXIDI SALES CENTER 洽谈区-5
HUAXIDI SALES CENTER 洽谈区-6
HUAXIDI SALES CENTER 洽谈区-7 无水不江南,大面积的玻璃帷幕通透如玉,户外景观倒映水中,互为借景。略去幕墙,内外景观无缝相接,带给躁动的城市心一份闲趣,一处芳歇。 灯笼垂挂,光影斑驳,一杯闲饮,一处落脚。夜幕降临,倒有几分“疏影横斜水清浅,暗香浮动月黄昏”的空间意境。 | 质朴与创新非矛盾体,设计将两者融合,更凸显主题。
HUAXIDI SALES CENTER 交通节点 楼梯作为交通主流线,起到承上启下的作用。走过休闲区域,我们可以通过楼梯走向二层空间,也可通过二层空间返回到一楼休闲去处。夹丝玻璃及不锈钢条是楼梯拦河的主要组成材料,而上方特意筑造了一面自然粗犷的砖墙,这也是为了延续空间的户外sytel,更具连贯性。二楼有两套异地样板房,看客可通过交通流线选择走动欣赏,自由替换空间角色,尝试不重样的生活方式。
HUAXIDI SALES CENTER 二楼公共空间 将户外搬到室内也非费劲之事,生活最深处更需要姹紫嫣红、枝繁叶茂,疲累的心灵也有一方娴静栖息去处。绿荫之下,一张桌凳,一本书籍,一泡清茶,一种生活,几种方式。回归自然,平凡而简单,也是生活的境界升华。
HUAXIDI SALES CENTER 二楼公共空间 ⼆层是两套异地样板间,以户外空间的⽅式布置,周围的廊道曲得合韵,整个空间的⽓质很柔和,细腻温软。整⾯墙的灰砖,地上的青苔覆盖等,这些原⽣的材料会随着时间慢慢变化,使得空间中有了⼀种沉淀感,也算是呼应整个空间的主题。⽽中间挑空的位置,则像庭院的中间,⼤⼤⼩⼩的⽉球跌落在其中,像⼀幅固化的装置画。 | 功能与艺术共存,结合空间走线,呼应设计主题
HUAXIDI SALES CENTER 儿童游乐区 买房是一家人的喜悦事,自然少不了孩子的参与。儿童娱乐区以黄绿粉色为主色调,搭配其他各种糖果色,组成彩虹般的孩童世界。确认过眼神,是孩子喜欢的。天花上的设计特意迎合空间走线的布置,流畅且具意义,一步一个脚印,脚踏实地,也是无数父母对孩子的一种期盼。 | 设计将材料、物件不断搬弄,在光与影中寻找契合点,细节所到之处彰显空间生命力
环境可以主导⼼境,也可以调动情绪,这⾥的很多材料都有⼀种⽣命⼒,空间中的物件,是⼀种⽂化累积和雅致所在。⽽在设计中特意的的留拙,不过是让设计免于精致,留待空间中的看客,涂抹出不同的风情来。
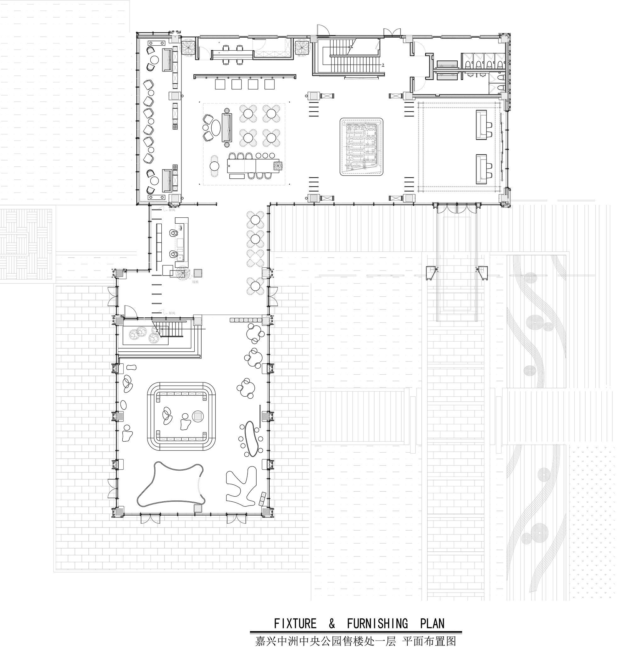
一层平面图
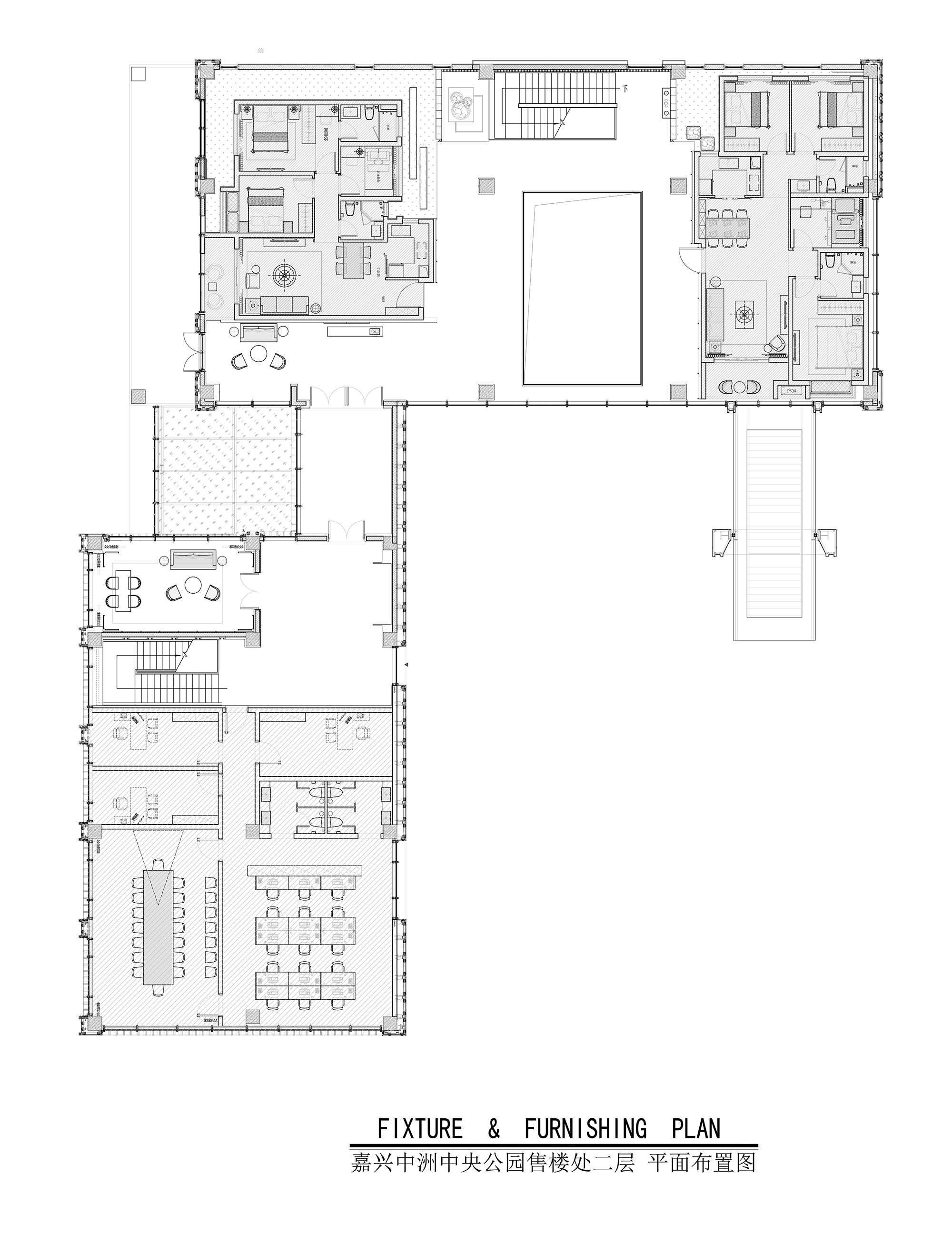
二层平面图
0
0

认证 · 让您身份增值