高端、成熟、舒适
Upscale,mature,comfortable
伴随工作节奏越来越快,办公环境亦逐步迭代升级,与自然和谐共融,已成为现代都市商务精英们的办公梦想。
深思设计通过以人为本的哲学理念,打造出低奢园林办公标杆,同时营造出温暖舒适、亲切热情的空间布局。传递一种全新的办公理念,成就现代生态办公典范。
Upscale,mature,comfortable
伴随工作节奏越来越快,办公环境亦逐步迭代升级,与自然和谐共融,已成为现代都市商务精英们的办公梦想。
深思设计通过以人为本的哲学理念,打造出低奢园林办公标杆,同时营造出温暖舒适、亲切热情的空间布局。传递一种全新的办公理念,成就现代生态办公典范。
67
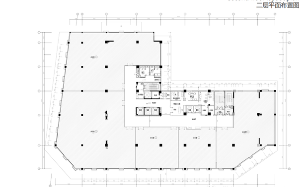
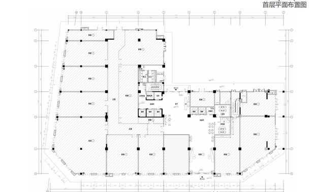
项目名称:牛犇创汇1号
项目性质:办公空间
地址:东莞大朗镇松山湖
面积:总建筑面积22500平方米,公区面积6300平方米
装修造价:约1800万元
主材:灰色大理石、雅士白岩板、大理石砖、黑色拉丝不锈钢、免漆板、金属板等
项目性质:办公空间
地址:东莞大朗镇松山湖
面积:总建筑面积22500平方米,公区面积6300平方米
装修造价:约1800万元
主材:灰色大理石、雅士白岩板、大理石砖、黑色拉丝不锈钢、免漆板、金属板等
22
PROJECT INFORMATION
HUIZHOU CHINGKAI SPRING HOTEL
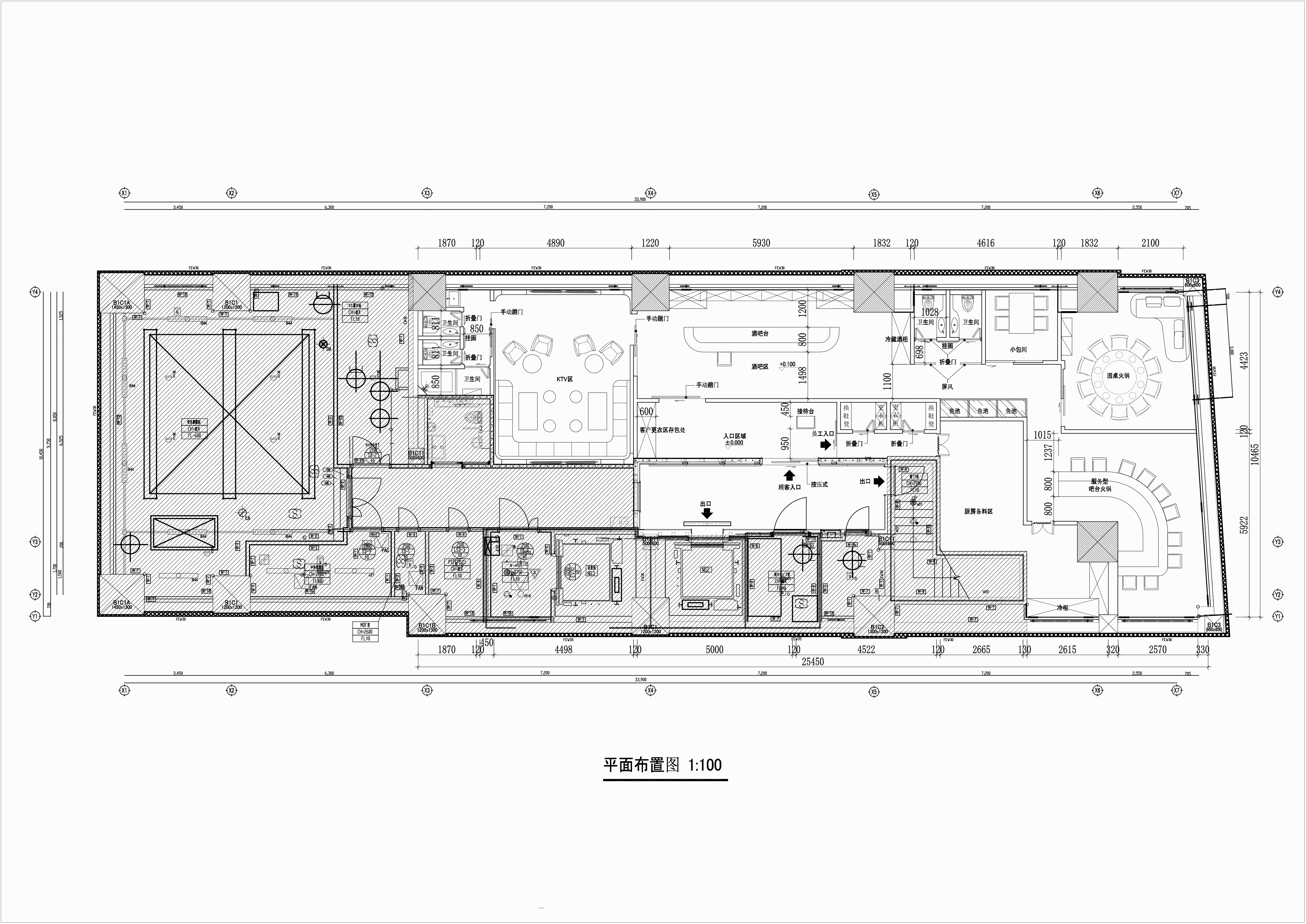
项目名称|惠州晴溪温泉酒店
设计内容|建筑室内软装园林施工
设计总监|陈广标
深化设计|付彬罗钊扬
软装设计|陈娜
项目地点|广东惠州龙门地派
设计面积|5761m2
设计时间|2019年8月
竣工时间|2022年8月
空间摄影|陈文家
HUIZHOU CHINGKAI SPRING HOTEL
项目名称|惠州晴溪温泉酒店
设计内容|建筑室内软装园林施工
设计总监|陈广标
深化设计|付彬罗钊扬
软装设计|陈娜
项目地点|广东惠州龙门地派
设计面积|5761m2
设计时间|2019年8月
竣工时间|2022年8月
空间摄影|陈文家
30

认证 · 让您身份增值