深思设计 | 欣凯科创园世纪骏汇国际办公楼设计方案
95项目名称:世纪骏汇国际办公楼
项目性质:办公空间
地址:白云区欣凯科创园1号楼
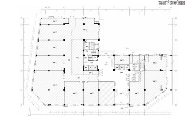
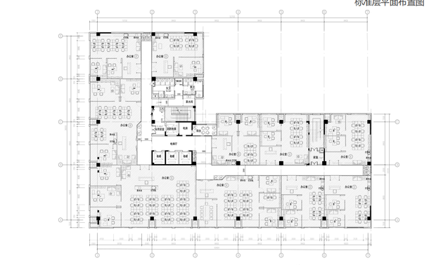
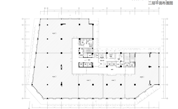
面积:总建筑面积19500平方米,公区面积5000平方米
装修造价:约1200万元
主材:灰色大理石、雅士白岩板、大理石砖、古铜拉丝不锈钢、免漆板、金属铝板、铝方通、工艺玻璃等
欣凯科创园世纪骏汇国际办公楼位于白云区欣凯科创园1号楼,周边有众多工业园、批发市场,商业氛围浓厚。
建筑空间设计的核心是在独特时间、独特环境用特定艺术表现的创造和集成。建筑设计发展到今天,设计中的情感化已经成为使用者和管理者对生活品质追求的重要部分。
01
大堂整体风格低调且细腻,线条流畅且充满造型感,与恰到好处的留白相得益彰,使空间独显魅力。
灯光和照明设计是优化空间和创造艺术氛围的重要方法。我们在设计时选用了富有质感的选材搭配灯光,增加了空间层次,渲染了环境气氛,起到画龙点睛的作用。
02
现代都市年轻人在享受时代所带来的品质的同时,也体现着对生活的热爱和对艺术人文的憧憬。
建筑空间环境设计和表现,依靠其最鲜明的特征和最具代表性的色彩、形体等设计要素的集结,从而形成综合表现力的结果。
03
我们将绿植穿插在墙面瓷砖中,如同游走于摩登都市与青山绿水间,将清新舒然的极简主义与悠然自若的优雅和沉着完美融合。
04
室内装修整体以咖色为主,整体通铺大理石瓷砖,颜色十分百搭,在色彩感觉上又不会感觉很飘,且不会影响采光。
办公桌椅以现代风格家具为主,整体灯槽吊顶增加层次进深感。在深与浅的色彩对比下,让空间多了份宁静与优雅。
现在很流行的“氛围感”一词,室内设计同样适用。强调氛围感的设计,往往带着“三分颜色,七分韵致”的装饰特点,“形简而意浓”则构成此类型风格的元素标签。
也许每个人的初衷都有一份简约的追求,我们在属于自己的那座城里筑梦,轻松舒适的办公环境,让人感到温暖的地方,就是温暖的极简主义。
-
广州市
工作地点
-
联系方式
13066386222

认证 · 让您身份增值