-
项目定位:本案以“镜之幻像“作为设计原点,在有序的空间中,运用镜面的反射,灯光的交错,来达到空间的时尚感,魔幻感。
基于镜面对于光线的反射,镜前的物体在镜后形成正立的虚像。人在空间行走间,不断变幻的影像。来创造人与人,人与空间的戏剧化感知。盒状镜面长方体的穿插,灯光的穿插,又让空间与空间产生了对话。为人们带来新的视觉体验。
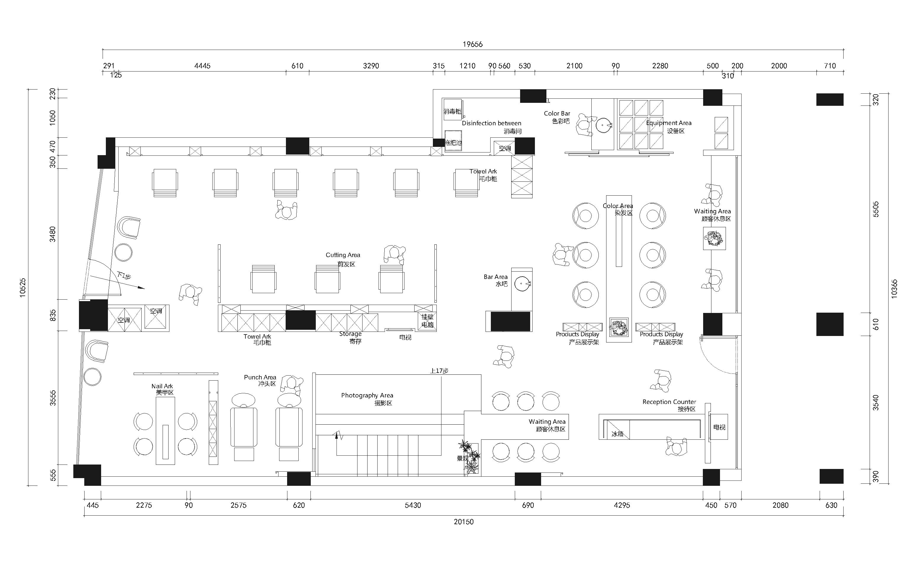
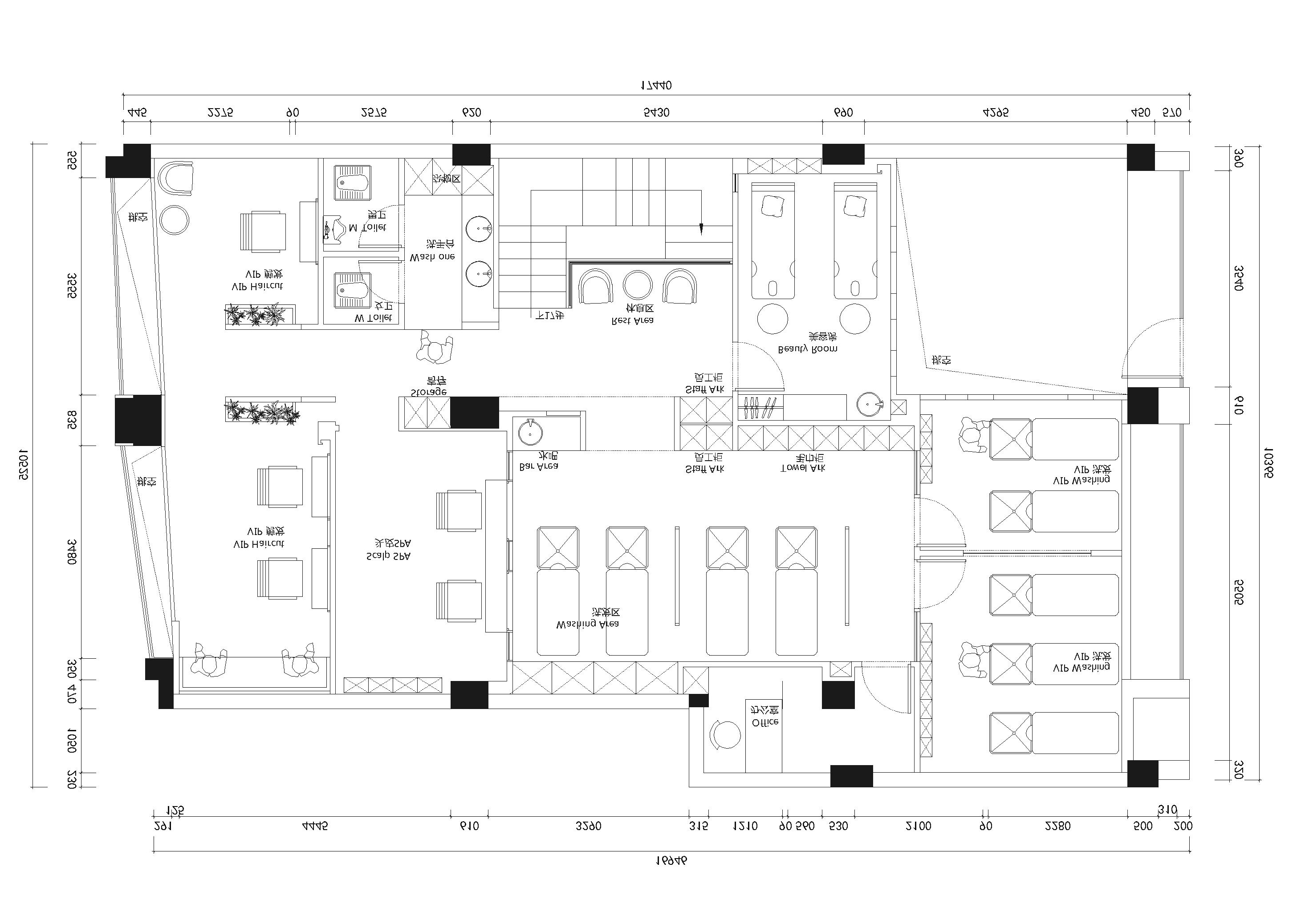
于空间之中,再生空间。由于客户所需的功能性与原空间体量有一定的冲突。因此为了更好的服务于商业性。设计师将各个功能区精确计算,有意识的做了明显的分割,同时运用柜体,隔断等来 -
空间意境:基于镜面对于光线的反射,镜前的物体在镜后形成正立的虚像。人在空间行走间,不断变幻的影像。来创造人与人,人与空间的戏剧化感知。盒状镜面长方体的穿插,灯光的穿插,又让空间与空间产生了对话。为人们带来新的视觉体验。
-
空间布局:基于镜面对于光线的反射,镜前的物体在镜后形成正立的虚像。人在空间行走间,不断变幻的影像。来创造人与人,人与空间的戏剧化感知。盒状镜面长方体的穿插,灯光的穿插,又让空间与空间产生了对话。为人们带来新的视觉体验。
-
设计选材:镜面不锈钢 乳胶漆 水磨石
-
用户体验:在有限的成本上,做到相对大的改变。同时让空间有了自己的一个记忆点

