S&M SALO美业


作品说明
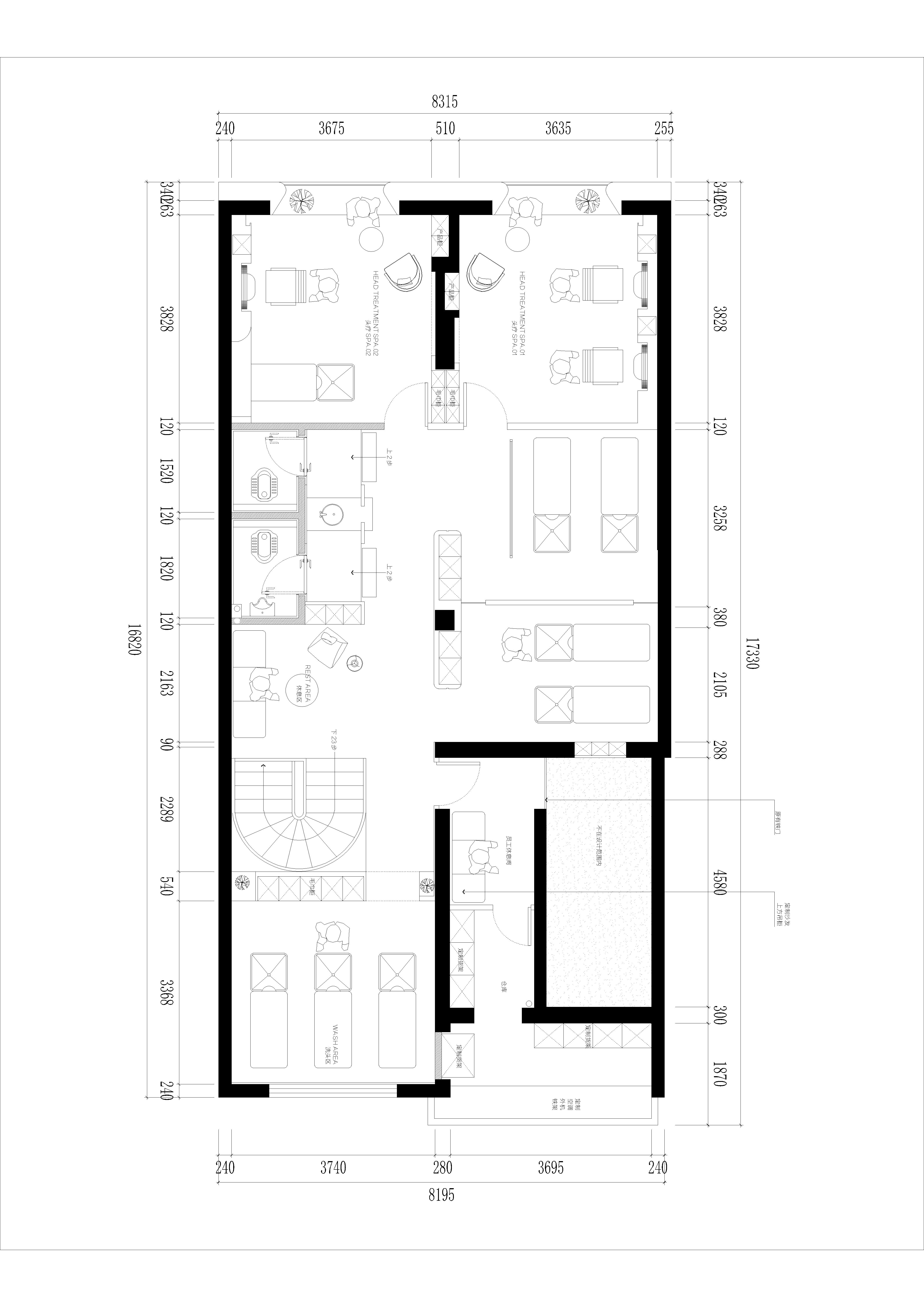
- 项目类型:休闲娱乐
- 项目地点:泉州市
- 建筑面积:260.0000㎡
- 项目造价:60.0000万元
- 主案设计师: 黄汉良
- 参与设计师:陆明 李佩琪
- 竣工时间:2023年8月
-
项目定位:被称为“非常规时代的非常规红色”,介于红色与紫色之间,是充满活力热情、勇敢无畏且激励人心的洋红色彩,能带动设计创造出更正向的未来。
-
空间意境:本次空间分为四个象限采取分而不离的设计,完成场景的串联带来艺廊式的沉浸体验。通过镜面元素突破空间界限的限制,实现自我观照抵达更深层次的认知与探寻曲线路径设计寓意,用柔软对抗平庸一步一律徊带来「柳暗花明」式的惊喜体验。
-
空间布局:进入空间前我们创造一个过渡的灰空间,利用半墙与画框形式将入口处的盒子体块与对面沿窗等候区相连,既有围合感又有仪式感。同时界定了室内外的边界,丰富了空间的层次,让人在室内与室外的空间保持了一定距离感和安全感。结合产品的展示功能,设计师通过将产品柜旋转15°,既保证了空间使用的便利,又提升了设计感。
-
设计选材:微水泥灰奠定整个空间中静的基调,搭配洋红色汽车漆形成鲜明的对比,材质粗糙与光滑的碰撞。不同材质相融合辅以寂的基调,每个角落都给予客户放松之感。大面积镜面的运用,创造出明亮开阔的感受,像魔法一样扩展空间,让空间瞬间变得宽敞明亮,让每一寸空间都充满无限可能。
-
用户体验:空间中运用的弧形造型,增强了视觉冲击力和延伸感,打破了传统的方形,让人感受到了更多的动态感,同时空间也更具有美感和艺术性。天花圆顶呼应整体视觉氛围,漫反的灯光衬托,一切都从此处漫下。

