拾光 逸云


作品说明
- 项目类型:住宅公寓
- 项目地点:武汉市
- 建筑面积:260.0000㎡
- 项目造价:150.0000万元
- 竣工时间:2019-03-09
- 设计机构:道成设计
-
项目定位:通过与业主大大们沟通的过程中,我们发现屋主所诉求的不仅仅是关注家的实用性和美貌度,满足于几代人的共处空间,更多的关注与空间所呈现给人的情绪感受,以及有质感的生活底蕴。古典的贝多芬狂想曲萦绕在会客就餐之间,赋予生活以典雅的气息。
-
空间意境:艺术高于生活,却立足于生活。以带有古典气息的石材作为二维墙面的边界,巧妙引用金属嵌线,大胆的配合深灰色饰面材质,使整体于古朴气息基调下而不失于轻奢的碰撞。“轻奢于形,典雅于里”正如男主人与女主人对生活的认知——认真挑选和对待每一个物件,它们不应被笼统地归纳到某一种风格,应是「我」的情感符号的组成,从而形成了生活。开放式书房,古典的音符回荡于会客与就餐两大空间之中,让生活充满古典的趣味性。光源设计,让光源呈现出多样化的效果,整体泛光照明,局部重点照明,搭配氛围灯光的使用,丰富了空间的层次感。
-
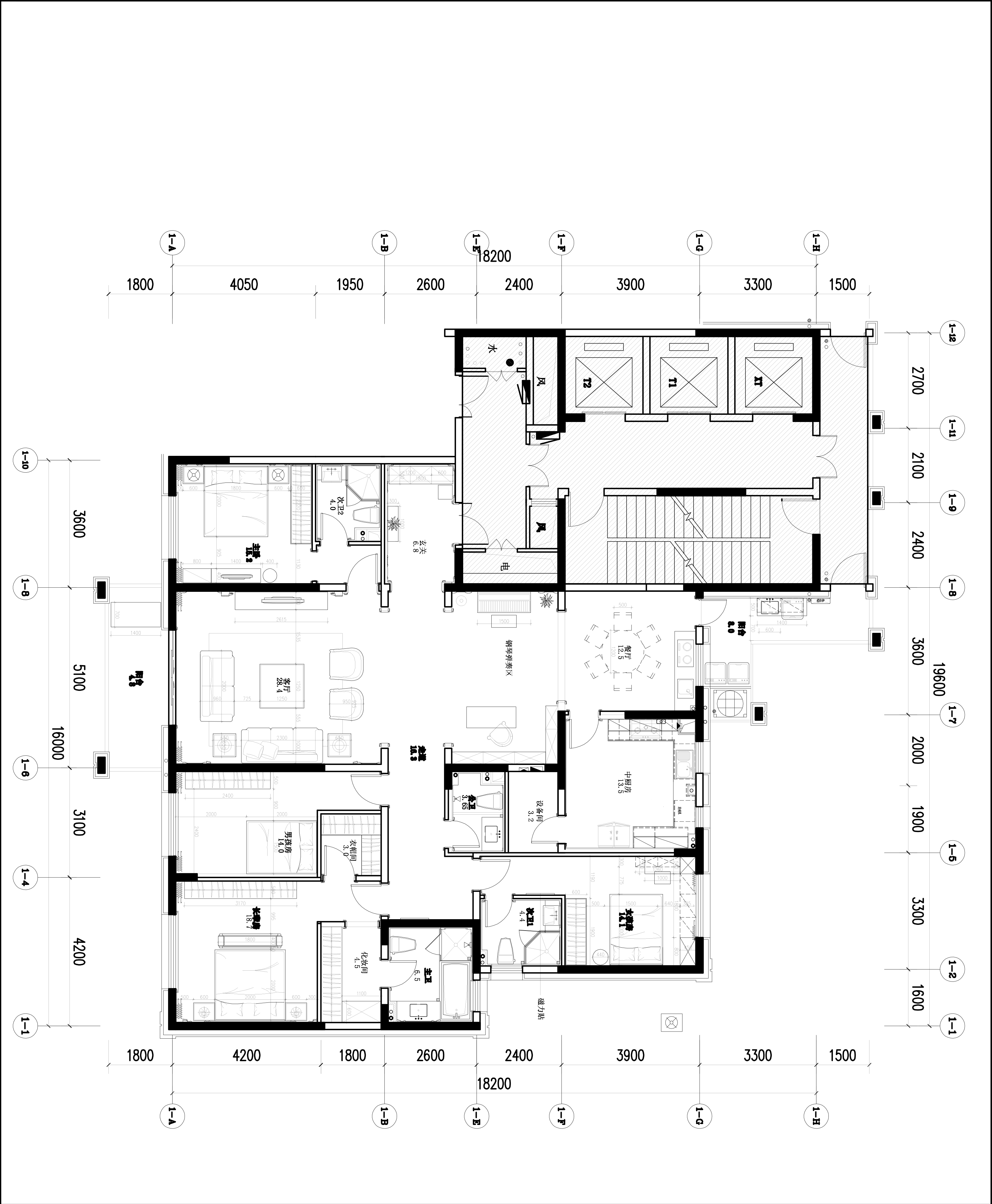
空间布局:大平层动静分离,户型方正,接手与毛坯状态下,充斥着建造中的水泥气息。
-
设计选材:咖啡色石材 深灰色护墙板/酒红色护墙板 金属嵌线 墙板 墙纸/墙布
设计不拘于某一风格,立足于生活,古朴色系石材的稳重配合金属嵌线的灵巧线条感,巧妙得中和了厚重而轻巧的两种极致,充斥着对生活品味的独特理解;
石材与护墙板的配合,力作与对不同空间的功能性把控,让空间充盈着对生活需求的挖掘,两种材质的巧妙碰撞,不仅有效的打破了空间的沉闷感,也充分传达了设计师对材质利用上的精准把控度,赋予材质以生活的温度。
-
用户体验:不同材质间的衔接处理,制造工序的严格把控;
大理石和墙布的衔接接触手法;
大理石与铜镜的衔接接触处理;
墙板和墙布的衔接接触处理;
e3148661832042a757c8844ce398c6f
8784bd94b8189b83149f01b3b1a23a6
bdb5421760c7c9f89026dc1c469a216
d6561decf97ec397fd7459995f07da3
839132672d84515c513ade307bc0676
f3e05346bbdb2cf989f3b14081c9490
821a9d716893fac5f82ea6203850135
656ec36e66c384c610ecff601120ef3
dc724aa5f0ed16c0b2d29c43af51883
f39eaf427b8bb7b42149a5bf9a43d7d
a6d8e5faa77d40817afedad1bcf7d4d
5d4452a5c246d308f08dbb7f0e7d9f8
2aa1d0db6efbe164e290c5752c699db
02ec9c2a50e20aeb64293d66d03266c
6468592e326204c63f8751e4b8c57e4
fffde00b4281334ecbaa499804aa3cc
6fdcfed38d4111f0680e36af29e8c71
73e3b86c1785aeb20d6af7f779a142c
43129179570164f46153a9cef72cd75
6034921bc4be6d3032deedc1f3e3354

