-
项目定位:“裂隙”为媒介重构光与物质的关系,在功能与象征层面重新定义“残缺之美”采用解构主义几何碎片在重组,“破碎镜面”,光线从裂隙中渗出,形成雕塑感光影。象征“破碎中的光之重生”让一道光都重缝隙中流露出来,我们在整体灯光的布局中采购主题漫反射的系统来照明,隐藏式设计巧妙的布置灯光的位置,我们也尽量减少灯具的数量,采购重点照明和环境照明的穿插叠成完成整个空间的光的意境,我们定义为裂隙之光!
-
空间意境:“裂隙”为媒介重构光与物质的关系,在功能与象征层面重新定义“残缺之美”采用解构主义几何碎片在重组,“破碎镜面”,光线从裂隙中渗出,形成雕塑感光影。象征“破碎中的光之重生”让一道光都重缝隙中流露出来,我们在整体灯光的布局中采购主题漫反射的系统来照明,隐藏式设计巧妙的布置灯光的位置,我们也尽量减少灯具的数量,采购重点照明和环境照明的穿插叠成完成整个空间的光的意境,我们定义为裂隙之光!
-
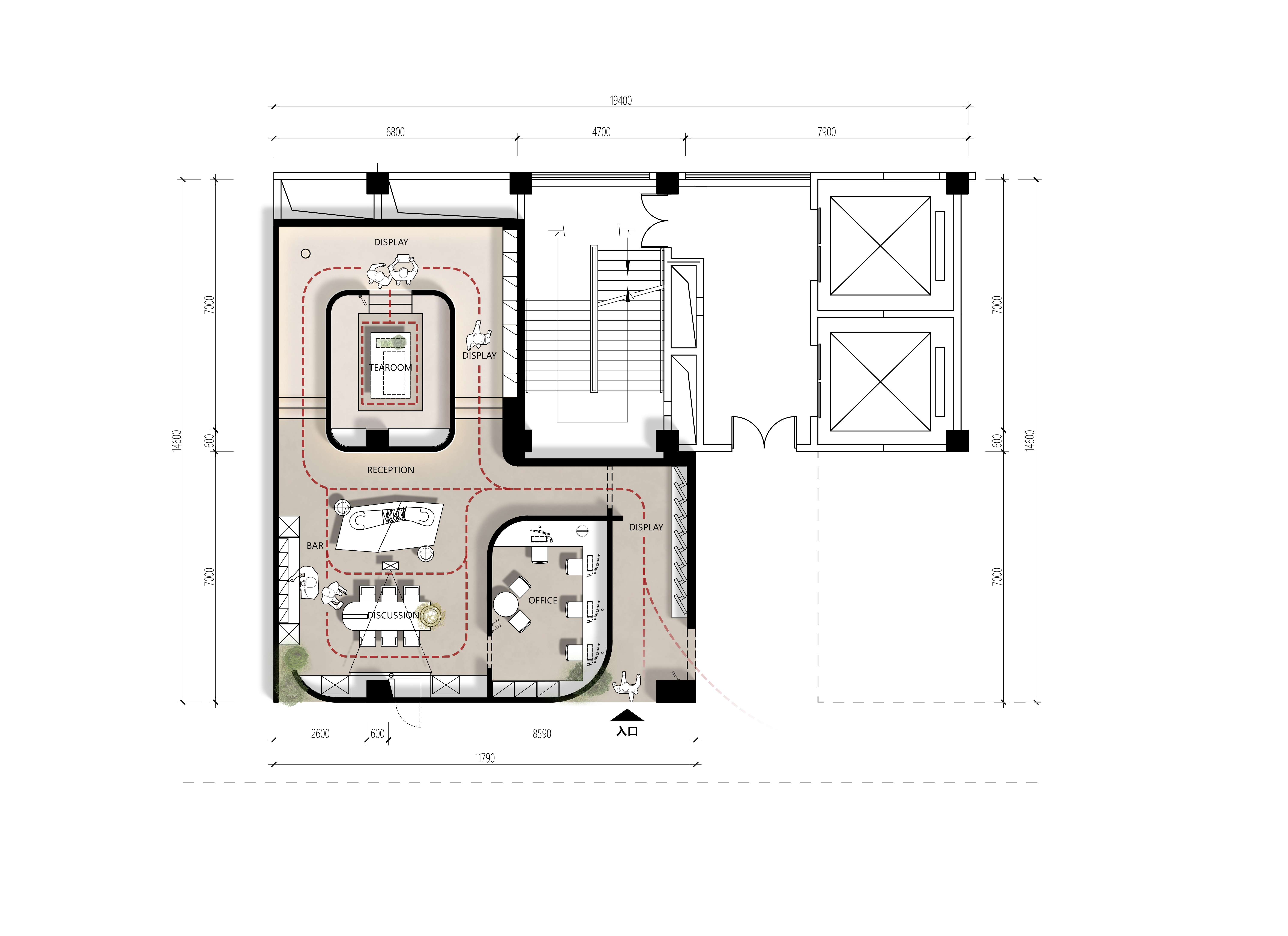
空间布局:在曲面几何的诗学中引入灯光,如同为静默的雕塑注入呼吸与灵魂。它通过对光之艺术的精妙运用,极大地增强了空间的艺术感染力、情感表达力和体验沉浸感。
在设计初期,会采用光线分析软件进行模拟,预测光线在特定曲面上的行为(如反射方向、明暗分布、光斑形态),以便优化曲面形状、光源位置和数量。光度补偿技术则通过调整灯具和光源的位置与方向,使照度分布更加均匀。
希望这些信息能帮助你更好地构思和探索曲面几何与灯光结合的奇妙世界。 -
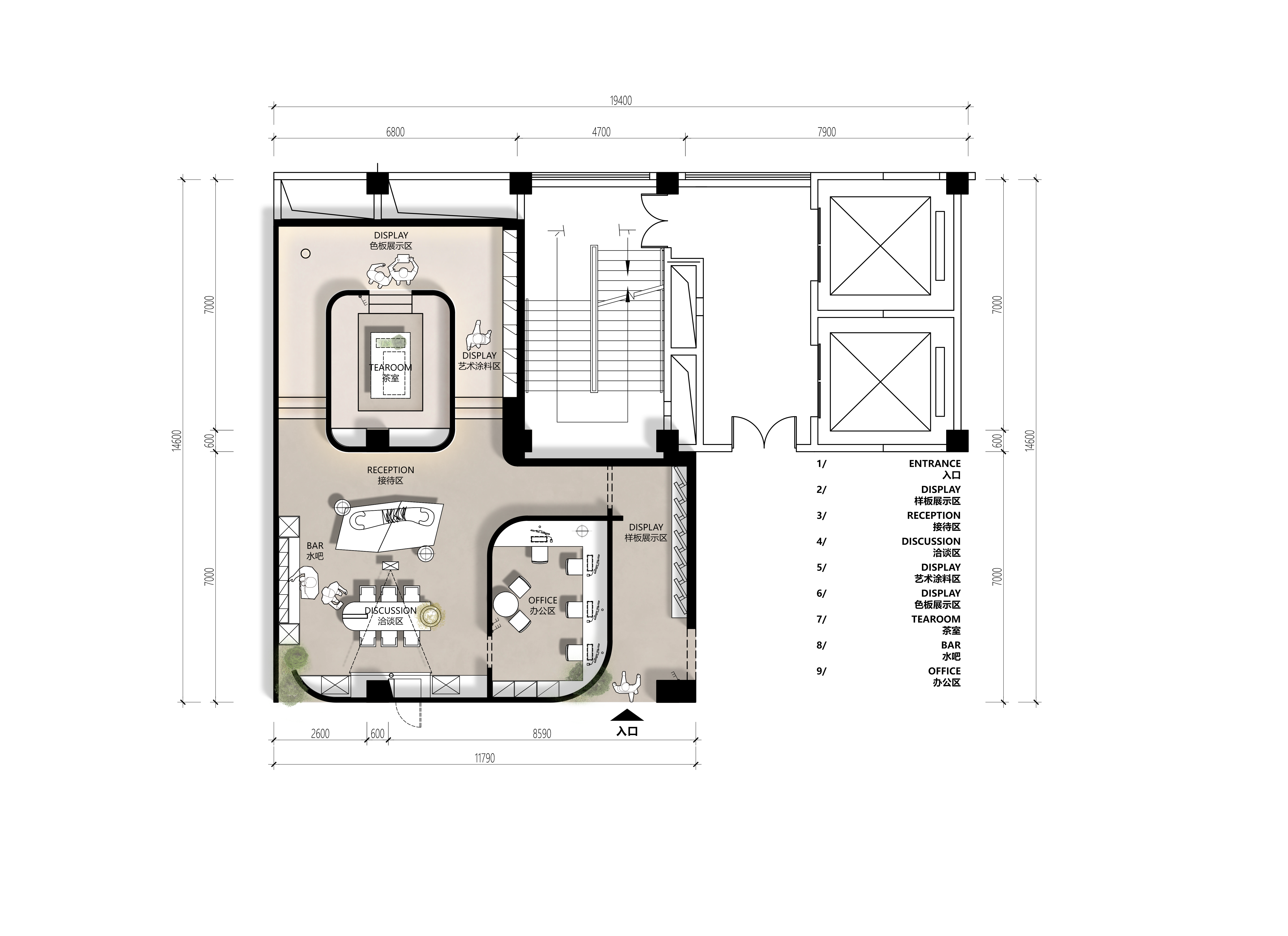
设计选材:展厅采用微水泥、微晶水泥、米兰丝绒等艺术涂料装点,纵横穿插的墙面和圆形天花以流动姿态展现时间与空间。展厅大堂的圆形彩色亚克力灯片宛如星辰点缀,灯光穿越彩色灯片轻轻抚摸墙面和地面,把空间幻化成梦幻的彩色宇宙。曲面墙体如艺术家的笔触在空中挥洒绚丽多彩的轨迹,每个空间都展示了不同的艺术涂料纹理,呈现出产品的多样性质感。
-
用户体验:一个由纯粹艺术涂料与智慧灯光打造的“少即是多”的低碳空间,其赋予客户的极致体验,是一场融合了感官疗愈、心灵共鸣与健康安心的全方位沉浸。它让客户感受到的不仅是空间的美,更是一种被深刻理解、被温柔包裹、并激发内在宁静的生活哲学。这正如在厦门那栋别墅中所呈现的:“高级感不再是冰冷的标签,而是触手可及的商业体验
0
0

认证 · 让您身份增值
294