-
项目定位:一种生态办公模式,即山水城市下的生态学哲理,这是一种探索空间与环境的共生关系,给人以情感寄托和归宿体验。
-
空间意境:行云流水,山水交融,设计师 “源其宗,承其脈,取其形,立其意”,把“生态、科技、人文”演绎地淋漓尽致。
-
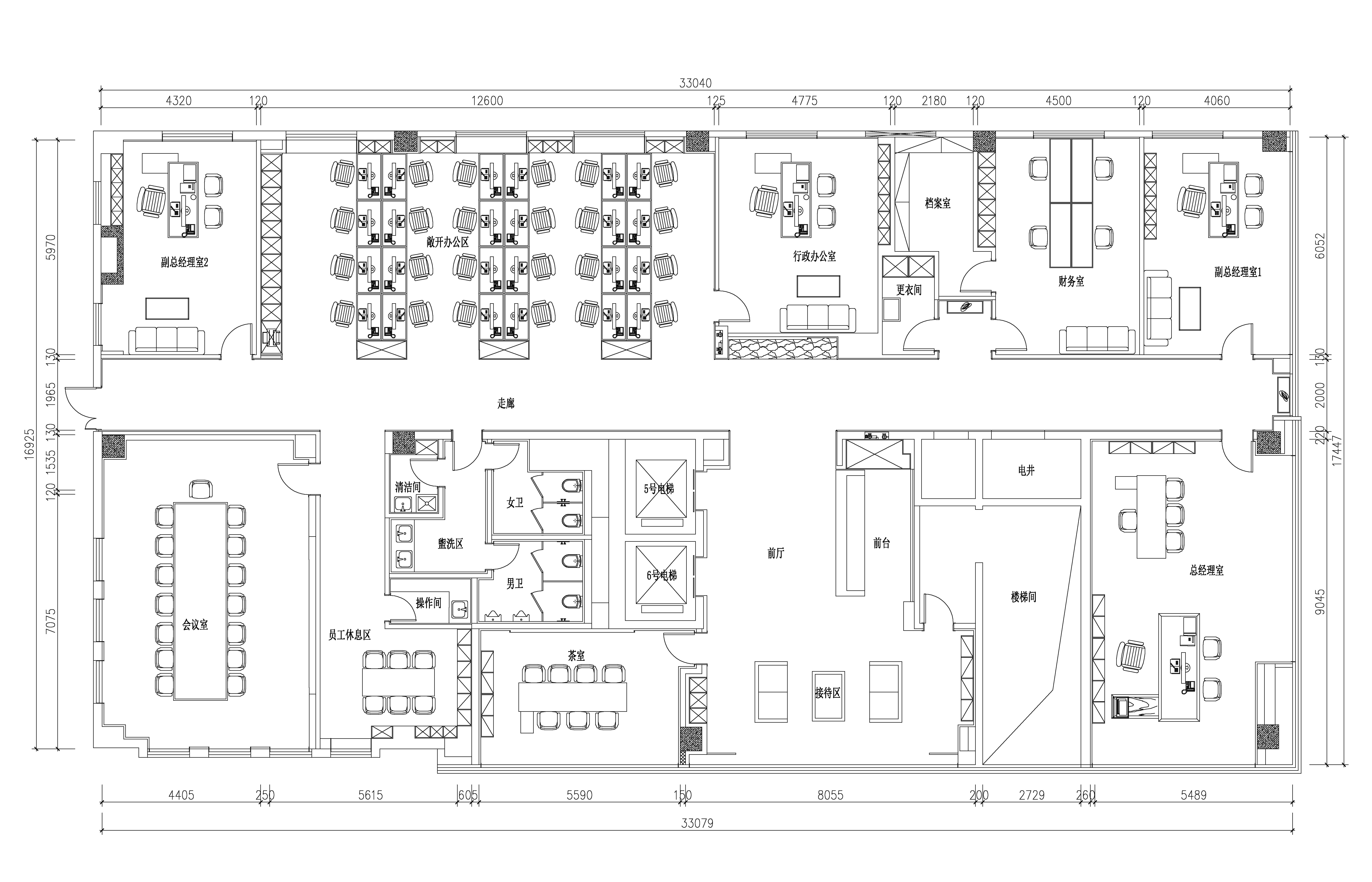
空间布局:办公区的设计贯彻“简约舒适,活泼实用”的设计理念,通体采用黑白灰色调设计。整个空间线条简约,整体风格时尚舒适,优雅实用。
-
设计选材:使用了较为纯粹的材质,凸出材质本身的纯朴本色与质感。
-
用户体验:整体空间布局合理
0
0

认证 · 让您身份增值
1160