-
项目定位:其实空间色彩没有好坏之分,「简单如黑白,复杂即黑白」,最终呈现出的效果,还是要看整体的色调构图分布,尤其是这种纯粹的空间,在没有多余的色彩时,更在意的是结构的表达,及质感的描述。
、 -
空间意境:若说这个世界上最经典的配色,莫过于黑白灰三色,但如何运用这三种基础色使空间能拥有生命力?使它们拥有温度、激情、沉着等,明暗深浅变化就显得非常重要,它能将空间的情感勾勒得十分清晰。
-
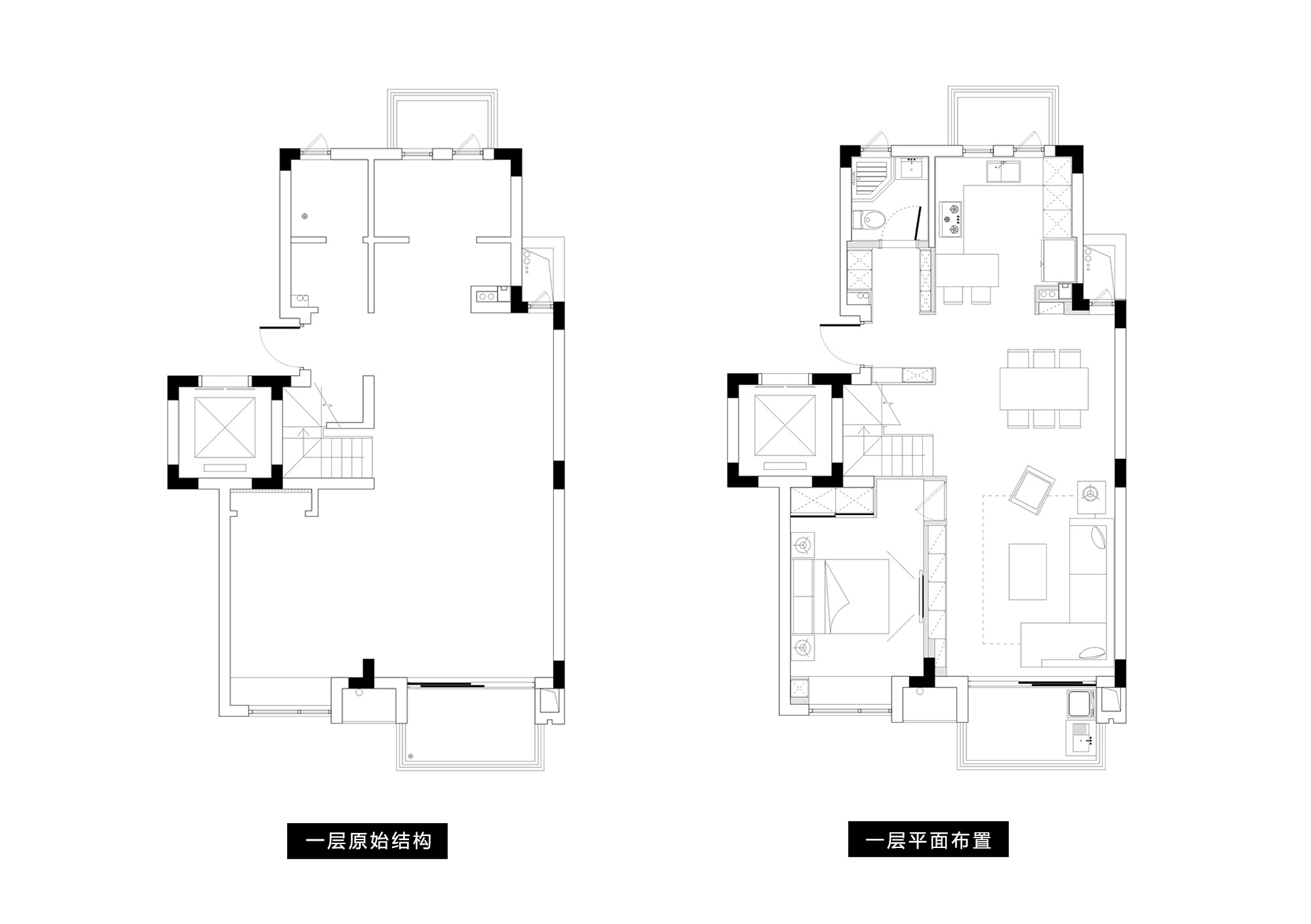
空间布局:我们一直在思考空间与人的情感之间的关系,简单的说,希望通过设计增加生活的趣味性和便捷性。特别是现代都市人,面临方方面面的压力,在忙碌与静谧中不断轮回,家是一个温馨的容器,在这个里可以享受轻松、陪伴、柔情等氛围。我们将能拓展的公共区域全部打开,以一种开放性的方式聚拢,避免明确边界所造成的隔阂,同时拿捏隐私性与开放度之间的关系,使屋主在不同功能区域里可以肆意切换,增强互动性、互通性。
-
设计选材:乳胶漆、成品木饰面、成品家具
-
用户体验:非常满意
我们一直在思考空间与人的情感之间的关系,简单的说,希望通过设计增加生活的趣味性和便捷性。特别是现代都市人,面临方方面面的压力,在忙碌与静谧中不断轮回,家是一个温馨的容器,在这个里可以享受轻松、陪伴、柔情等氛围。我们将能拓展的公共区域全部打开,以一种开放性的方式聚拢,避免明确边界所造成的隔阂,同时拿捏隐私性与开放度之间的关系,使屋主在不同功能区域里可以肆意切换,增强互动性、互通性。
简约派的设计,令人不由自主的想要探索这里的每一处细节和每一个角落。
如果没有看电视的习惯,那么完全可以将电视背景墙设计成装饰兼收纳柜。这样的设计,更加具有围合性,不用刻意的摆放家具,席地而坐。
黑色背景,不仅没有忧郁,恰恰相反,通过明暗关系的变化,达到空间色彩的平衡感。白色能呈现出最自然纯粹的本质,黑色展现艺术与前卫的气质,而灰色则能体现出内敛与沉稳的关系。
开放式厨房,台面延伸至吧台,通过合并空间拉长视觉象限。柜内结构合理设计,提供所需的收纳机能,而内嵌式厨具省去多余摆放空间,让环境更加整洁。
木质楼梯将一楼和二楼关联起来,楼层之间的关系以这种独特的方式相互交汇,一楼是“动”区,而二楼则是“静”区,采用透明的玻璃扶手,干净透光,使楼梯看起来宽敞通透。
主卧以套房的形式布局,将书房跟卧室功能串联起来,理性的空间里注入人文情怀,返璞归真得到真正的放松。加上材料的质感和色彩比例分割,使整个公寓似乎变成了连续的静物画,在纯真的氛围下享生活乐趣。
通常木质柜体,考虑到承重性,板子厚度要在1.5-2cm,而为了在视觉上能呈现更简洁的效果,我们选用了3mm厚的钢板。
白色、原木色等简洁色调,再加上部分彩色点缀,这些颜色搭配在一起,给孩子的生活空间构建一种自然般地温暖美。
卫生间延续黑白灰色调,同时考虑到屋主要求的“好打理”,功能布局上必须张弛有度,各功能区合理划分,避免繁杂物品堆放。同时选用粗犷纹理砖搭配亮面烤漆柜门,在材质上产生一粗一细强烈对比。
1楼
2楼

