侠 · 湾



- 项目类型:住宅公寓
- 项目地点:杭州市
- 建筑面积:330.0000㎡
- 项目造价:280.0000万元
- 竣工时间:2019-02-01
- 设计机构:辰佑设计
-
项目定位:设计师将东方建筑元素融入法式风格
-
空间意境:中西结合
-
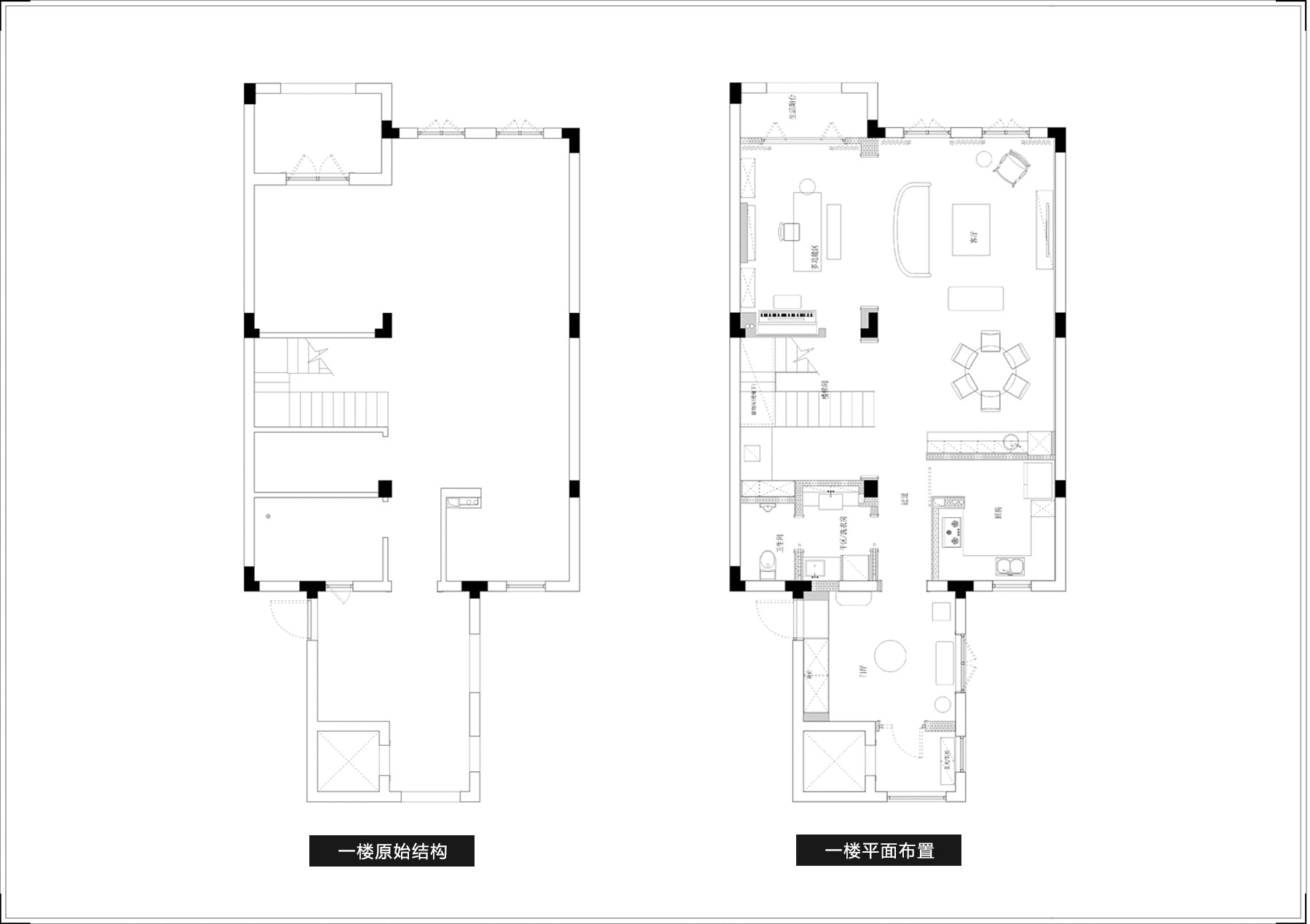
空间布局:打破原本的空间局限,将客餐厅融为一体,整体格局更为舒适宽敞,采用明快的色彩,简洁的墙面线条做轮廓勾勒,搭配淡雅的色系,利用空间的色彩、纹理、家具、配饰、光线等表达空间的情绪,表达乐观,开朗,悠闲,体会温馨和快乐,营造富有生命力的家居生活氛围。全屋使用定制家具,从材质和尺寸做到设计的整体吻合。
-
设计选材:虽说是欧式+中式混搭,但硬装上的结构设计还是做了很多简化,借用软装来达到整体的设计效果
-
用户体验:非常满意
客厅,作为公共区域的中心位置,它与其他各个空间都是互通的,通过形体、摆放及材质的选择,形成一个非常温暖且随性的交流互动区。 纯净的白色空间里,温润拼花木地板,给空间基础色带来柔和的氛围,顶部选用轨道灯,黑色线条清爽细腻。太阳打下来斑驳的光影,明暗对比,使得空间色彩更加饱满,布艺沙发充满棉麻材质的温暖感与慵懒感,搭配柔软的毛绒地毯,平衡了空间的设计温度。
主沙发抱枕跟单椅,选用橡皮粉,它的点缀,丰富了空间色彩,高级灰色的窗帘,起到很好的中和作用,两色搭配纯粹又不失浪漫,为空间带来摩登的既视感。
这个空间里的每件家具都是我们定制,每件单品都很特别。 主沙发是非常规的弧度造型,不仅颜值高,而且舒适性强,我们选用了复古且经典的绒布去搭配,它能给空间带来稳重和怀旧的艺术美感,双人凳像似古书籍的造型,电视柜有着东方文化的传统韵味,延续中式金锁形状,并融入轻奢金属元素,纯黑色的柜体与白色雕花乳胶漆墙面形成强烈反差,极具视觉张力,白色圆形落地灯,夜幕降临如同一轮明月,皎洁的光洒满每个角落。
餐厅与客厅相通,用餐时亦能享受阳光照进客厅的那份温暖。
如果将冰箱放进厨房的话,基本上只能做L型台面,这样对于一套排屋的配置来说,空间偏小了,我们将厨房外扩,同时在与餐厅之间的墙面,设计了一个西厨吧台,这样,厨房空间自然而然的向外延伸。中西厨的设计,满足了屋主在功能使用上的便捷。
如果将冰箱放进厨房的话,基本上只能做L型台面,这样对于一套排屋的配置来说,空间偏小了,我们将厨房外扩,同时在与餐厅之间的墙面,设计了一个西厨吧台,这样,厨房空间自然而然的向外延伸。中西厨的设计,满足了屋主在功能使用上的便捷。
原来的大门是靠近厨房的位置,整个进户的感觉缺少了仪式感,我们借用了二楼露台的地面,将空间內扩,通过软、硬装的设计,营造出一个进门前厅的感觉,它能很好的过度室内与室外的关系。精致蓝色的小卫石膏像,在乳白色墙面的映衬下散发着独特的艺术魅力。
我们将公共区域的墙体去除,不做任何形式上的隔阂与区分,原本的客卧改成敞开式书房,扩大公共区域,让它成为家人聚集互动的重要空间,同时也将采光更多的引入室内的各个空间。开放式书房,中西方元素相融合,造型别致的弧形吊灯与东方的茶器,一场东西方文化的激烈碰撞。 我们利用楼梯墙体的位置,做了内嵌钢琴位,这样就形成了一个完整的亲子互动区,男主人可以一边喝茶,一边看书,小朋友也可以在旁边练习钢琴或者聊天。
黑色的沉稳和高贵,在任何空间中都稳稳地宣示了存在感,温暖的木色与黑色在光的催动下调和出优雅迷人的气息。
具有东方元素的座椅,西方的雕花壁炉,抽象的壁画,大卫像,不规则的几何体,既有着谦和温润的中国传统文化气质神韵,又有着浪漫纯粹的西方意境。远离繁华,回归自然,沏壶好茶,听听音乐,一天的疲惫悄然而逝,闲暇时光,以茶会友,从繁琐的工作中释放自我。
插锁做旧中式柜,给人一种宁静淡然的感觉,木材的质感、精巧的设计,细腻而富有柔情,将中式的精髓发挥的淋漓尽致,尺度合理的设计定制柜体满足了收纳以及储物的需求。
黑色的吊顶,地面和墙面用白色大理石铺面,纯白色的柜门和台面,显得空间清新舒适,当阳光拥入,幸福显得格外耀眼。清晨起床,DIY一份简单美味的早餐,开启元气满满的一天,一起尝试烹饪,一起享受幸福的味道。
原楼梯位置靠墙,但我们想营造出浮空楼梯的视觉效果,所以就把墙体拆除,让整个楼梯独立出来。
从下由上可见充满欧式风格的黄铜色吊灯,黑色与黄铜色的搭配与客厅相呼应,两者相互映衬,产生强烈的视觉冲击。
走在楼梯中,感受原木地板的自然柔和,都市休闲的情致弥漫其中。
主卧以黑白灰为主,营造了比较好的睡眠空间,舒适且惬意,酒红色和蓝色点缀尽显优雅高贵。
沿着楼梯上二楼,正面走廊背景是1:1定制的真丝壁画,纯手工绘制,将东方水墨同西方形式结合起来,溪流与山谷间的云雾相接,朦胧中又可以看到细致入微的笔墨变化,近看又如身临其境的感觉。
主卧以黑白灰为主,营造了比较好的睡眠空间,舒适且惬意,酒红色和蓝色点缀尽显优雅高贵。
卫生间选用了大理石铺设,如同中式中的水墨元素,透明球形吊灯给予空间梦幻般的感觉,镜子在视觉上增大了空间面积,隐形柜最大程度的保证了卫生间的储物功能,便于打理,保持卫生间的干净美观。
双脸盆洗手台提供两人同时梳洗的空间,简单的白色呈现舒适干净的宁静之美。
老人房,简约清爽,不同材质和谐共鸣,烘托出整体环境的高级质感和清新气息,灰色和黄铜色的点缀,优雅时尚,黄铜色台灯与床头柜相衬,恰到好处的精致。
白色的床头灯与柔软的床品相互呼应,表现出细腻的质感层次。
粉色床体与淡蓝色床品相互碰撞,使整个空间更加活泼生动,选用卡通挂画,满满的孩童气息。
卫生间造型简约,没有过多的装饰,粉色小瓷砖铺满墙面,瞬间给人清新的感觉。
原阁楼就像一个不规则的几何形体,没有采光,通风也比较差,一般都是将它(阁楼)作为储藏功能使用,但其实可以通过设计,利用它原本的一些特点,做出不一样的特色氛围。 细节处的软装搭配,愈加显得时尚年轻且充满活力,刻画出空间多层次美感,紫红色的床体、粉色床品和白色墙面的组合,散发着一种浪漫情怀,蓝色桌子亮眼,桌脚玻璃与黄铜的设计巧妙独特,极具现代感,舒适的光线,为孩子提供了休闲、办公学习的场所。
天窗的设计,白天阳光充足,空气清新,一缕阳光轻松斜射进室内,合上窗帘,远离尘世的喧嚣,白天看云卷云舒,夜晚仰望星空。
三楼靠近楼梯的这面墙改为玻璃墙面,使得楼梯的采光效果更好,多功能房平时可以作为客卧,还可以作为一家人的休闲娱乐区,让居住者的娱乐生活更加丰富多彩。
白色小帐篷给予了孩子一个专属有趣的私人空间,小小的空间里满满的童趣和美好,各种儿童玩具彰显了孩子的活泼童真。
露台以黑色为主,摇摇椅,花台,偶尔在一个午后,喝一杯香茗,闭目养神,听鸟啼,笑看花开,听听音乐,看看杂志,举办party,都显得生活是多么的美好,夜晚在繁星点点的星空下,俯瞰城市的烟火,极具浪漫情怀,在这一方小天地侍花弄草,让心归于宁静。
一楼
二楼
三楼

