-
项目定位:每个家庭都有着不同的人员组成跟需求,而我们需要做的是通过沟通交流,整合思考,并设计出不同的居家环境。
屋主介绍:年轻夫妇,他们育有一对活泼可爱的儿女。在前期与屋主沟通了解到,这套房子的功能性设计,希望以孩子们为主,能创造一些与孩子们玩耍互动的空间。 -
空间意境:在满足大量的储物空间的同时,集合美观考虑
-
空间布局:客厅里,我们舍去了笨重的茶几功能,只保留一个轻便易挪的边几,这样休息的时候,屋主就能跟孩子们尽情撒欢
生活环境对于培养孩子们的秩序性、自律性是非常重要的,这里没有零散的柜子、架子等,而是以统一的柜体设置,每个区域都有独立的储物功能,把不必要的生活用品收纳到柜体里,空间上也会更加整洁,也能从小养成孩子们的条理和良好性格
孩子们的成长阶梯性非常明显,所以除去必需品以外,其他家具都以灵活、多变的方式设置
考虑到实用性,尽可能的增加储物功能 -
设计选材:考虑到家里有两位小朋友,所以我们选择了乳胶漆为主,更加环保
-
用户体验:非常喜欢
公共区域是一个长方型的体块,在开放的空中里,我们需考虑如何处理客、餐厅之间的关系,使它们相辅相成,又各自独立。利用轴线关系,四面贯穿动线,强调通透性,互动性及功能性的完善,同时结合整体配色考虑,以黑、白、灰、原木等为主调,呈现出现代人简单生活的新理念,而这些设计处理,拉近空间距离的同时,也拉近了家庭氛围,让生活更贴近生活
抱枕的跳色点缀,在以一种“润物细无声”的方式,悄然的点亮了空间的活泼气息
餐厅设计,像似多功能区域,在这里不仅解决一家人的就餐问题,由于它与客厅互通性,屋主可以一边办公一边照顾孩子们的动态,同时,这里还可以举办家庭会议、做手工等,令人完全放松下来并享受充满浓烈的家庭氛围中
对于空间的语言表达上,我们选择了以纯粹的材质、纹理、颜色等,静静营造静谧、自由、轻松的空间,摒弃使用不必要的设计元素,让光影和材料在这个空间中找到他们最大的表现方式
在储物空间的设计上,利用房屋自身的空间结构与功能区块来进行设计,就近原则,每个区块都有独立的储物功能
在原本的布局构思中,是设有两个儿童房,根据不同的性别,打造两个不同主题的儿童房,但考虑到目前两位小主人年龄较小,方便大人照料的同时,也可以结伴成长,所以先取其中的一间作为两位小主人公用的房间,这里软配,像把饱和度降低的“彩虹”搬进家,童趣且温暖,活泼且柔和,床头柜选用了一咖一米两色,平衡了空间色彩比例,互补、映衬使风格更加统一
床头柜的弧形设计,圆滑流畅,儿童床的高度也是特定过,它们的高度在25cm左右,培养孩子们独立睡觉的同时,又防止坠床,保证小主人们的安全性
原本的男孩房,暂时考虑为儿童游玩区(多变空间),软装以活动家具为主,等待小主人慢慢长大之后,又可以直接改变成男孩房。浅浅的奶绿色背景,淡淡的灰蓝桌椅,这里的一切配色都像加入了一抹“灰”,这些失去了色彩的倾向,却形成和谐雅致的中间色调,它们温柔的为小主人打造出平静、稳重、活泼、统一的氛围,不强烈不刺眼,让小主人们可以注意力集中完成阅读、绘画等
主卧睡眠区的设计,依旧延续简约风,浅灰的墙面搭配着简洁的家具,材质选以木质、布艺搭配,冷暖平衡,让室内的每一处有着净透的极简风
考虑到需要两个人同时办公,对于台面的舒展尺寸大,我们将书桌沿墙制作。无论是色调还是功能规划上,都简而有序
原始结构
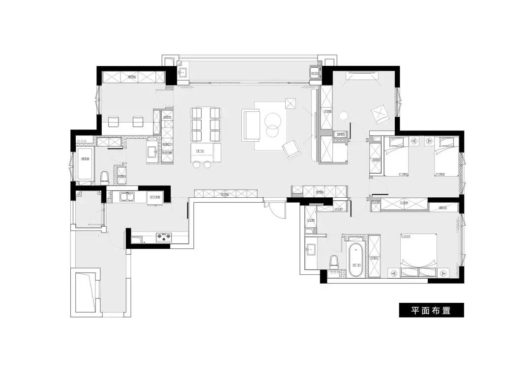
平面布置

