職人精神之所



作品说明
- 项目类型:办公
- 项目地点:台湾
- 建筑面积:373.0000㎡
- 项目造价:1103.0000万元
- 参与设计师:許盛鑫
- 竣工时间:2019-03-01
- 设计机构:夏利室內裝修設計有限公司
-
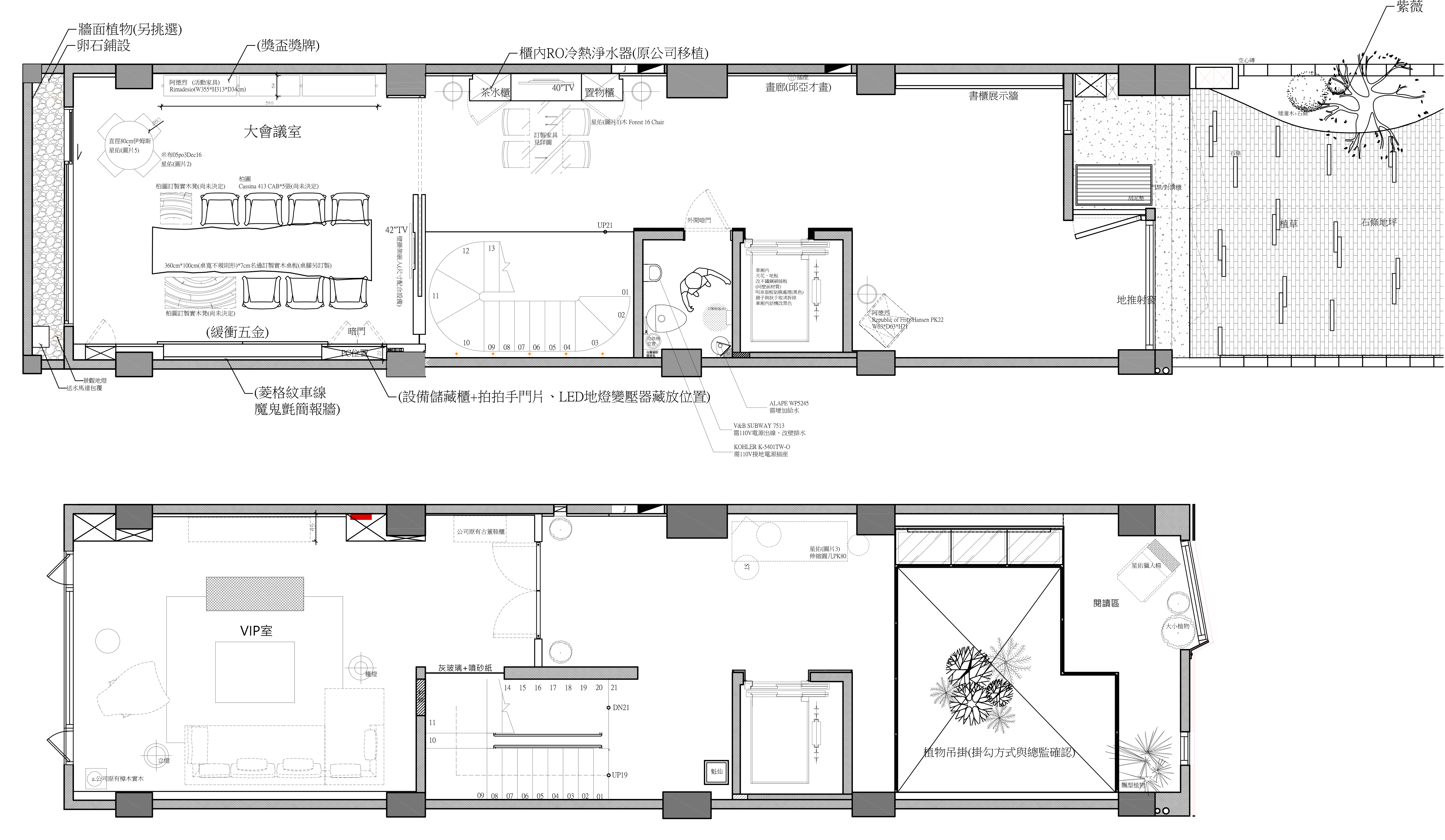
项目定位:此室內設計辦公室中,和自然環境共生共存是我們的最終目的,並與室內環境做出恰當適宜的整合,試著以最微量的元素做最精緻的設計。於入口植一株勁松,並以石塊取代人工花砵,以這樣的呈現方式提醒員工取之於天地用之於自然的道理,並展現我們盼望與自然共存的精神。
-
空间意境:響應現今的環保意識,室內一樓將原配置主燈的位置,以鹿角蕨作替代,以天然的素材取代人造,天花與壁面皆採用礦物土塗料刷砌,入口處兩側的書櫃由香柏木製成,香柏木的材質具備天然香氣,治癒人心撫慰心靈,其耐寒長青的特性更予人精神上的淨化,為空間增添浪漫舒適之感。
-
空间布局:將有機設計融進工業時代特色,以空間內的樓梯而論,汰換原先慣性的設計,採以金屬結構和玻璃面的細節,跳脫制式化的構築,更體現日本的職人精神,對細節的要求,追求完美與極致的呈現。
-
设计选材:辦公室內的桌椅以法國蕾絲木及台灣鹿港師傅的手工藤製品,完美結合了古今中外的設計美感,相較其他重視富麗與輝煌的作品,此次的設計重點在於回歸自然,並與藝術結合,讓置身於內的人彷彿倘佯山水之間,於悠然之所靜靜沈澱,讓身心靈得以喘息,釋放與收斂。
和自然共生的設計理念與其他奢華輝煌的作品形成鮮明的對比,唯有回歸於自然之道,才是最佳良藥,猶如顧炎武《廉恥》提到「松柏後凋餘歲寒,雞鳴不已於風雨」在亂世中不改其操守,在追求奢華的時代回歸於自然,必定能如松柏般長青。 -
用户体验:
與天地和諧共生的感動,綠意盎然,引進四季變化,與四季共感,靜謐雅緻的底蘊,讓人雋永。

