-
项目定位:星辰全案设计致力于高端住宅、别墅、商业空间、餐饮娱乐空间的设计。配套产品软装,为客户打造一站式服务。
-
空间意境:空间以简洁大气为主,色调沉稳,用材考究,工艺创新。真正为客户展现出轻奢独有的品味。
-
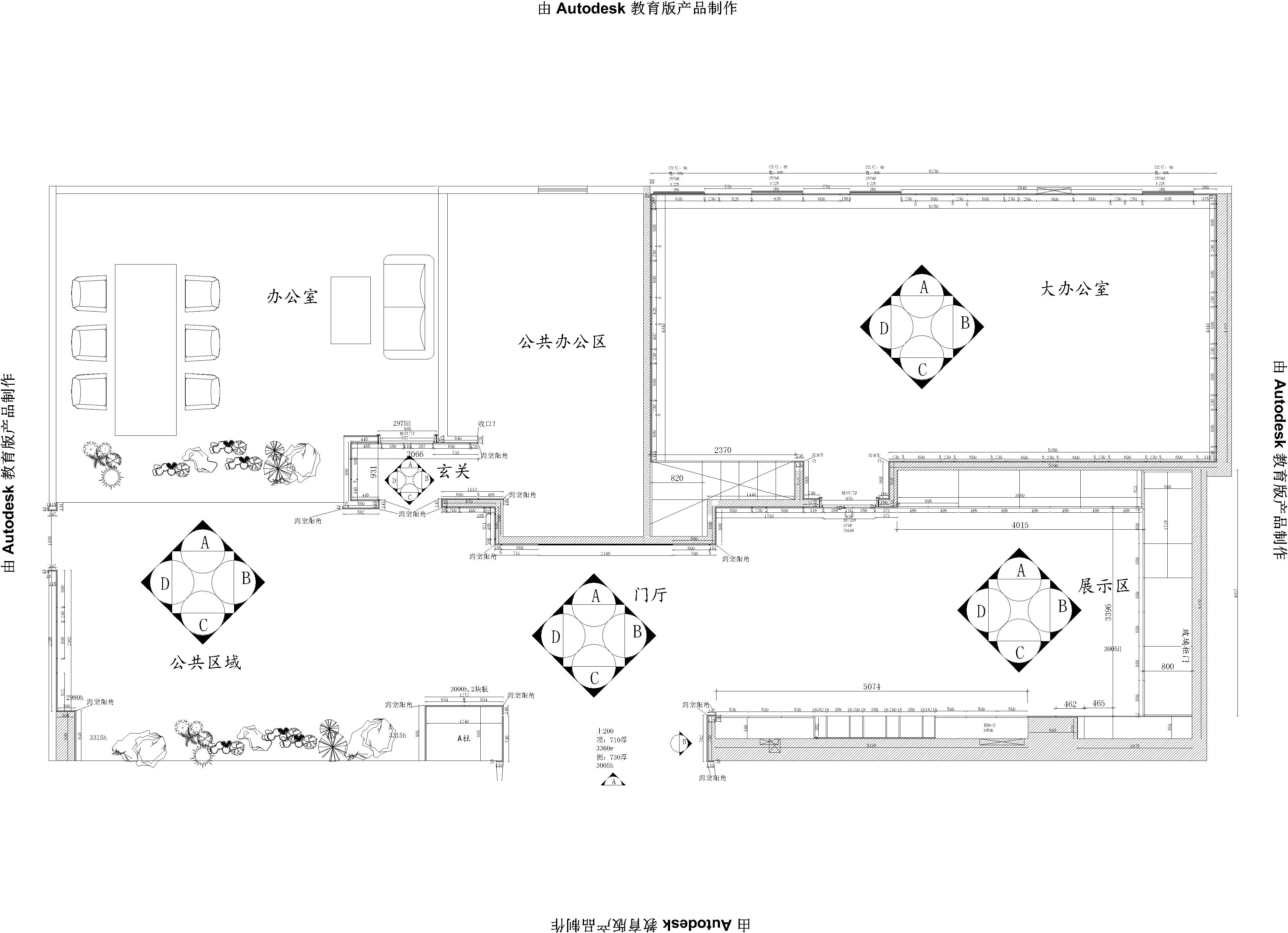
空间布局:布局上“一开二合”尽量保证大空间,没有过多分割。通长的前厅开间给人大空间的震撼,两个办公室的围合又营造出私密性。
-
设计选材:选材上首先保证环保,主要选用护墙板和岩板灯材料来体现空间感。
-
用户体验:环境雅致,工作安静无嘈杂。
0
0

认证 · 让您身份增值
744