茱丽亚悦迪幼儿园
933
作品说明
- 项目类型:公共
- 项目地点:天津市
- 建筑面积:2700.0000㎡
- 项目造价:675.0000万元
- 参与设计师:代爱芳 卫娟 黄作翔
- 竣工时间:2019-09-01
- 设计机构:天津五斗米软装设计有限公司
-
项目定位:天津茱丽亚悦迪幼儿园,位于天津市东丽区万科东丽湖,
倡导音乐与教育相结合,客群要求受过高等教育; 对海
外教育关注,对儿童教育有较高标准; 对孩子有音乐培
养需求。
-
空间意境:设计视觉要求:干净整洁、简约、原木色、深红色
听觉识别:莫扎特系
-
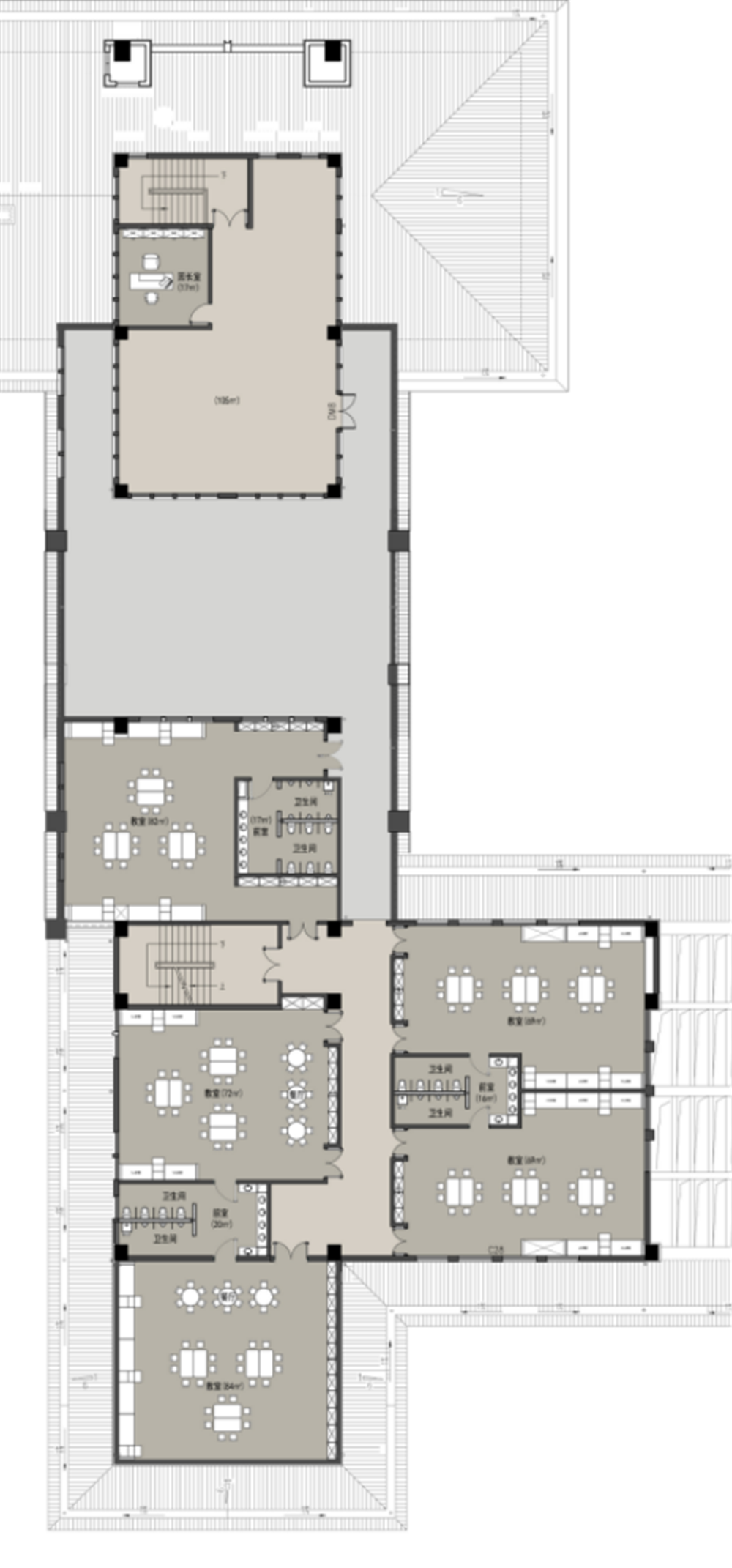
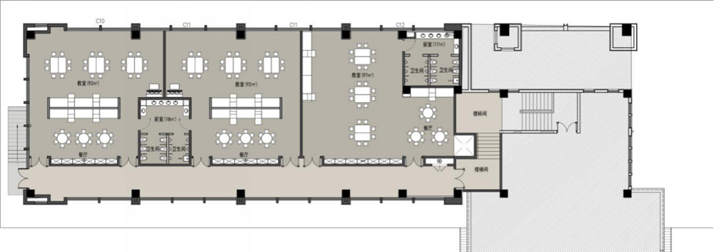
空间布局:项目现状分为A,B两个区域,A区原为会所建筑,B区为游泳馆,相对A区水平高度下沉1.2米。整个设计空间的难点是解决AB区域的高差问题。
-
设计选材:在选材上主要采用了地胶,防火板,绿格栅等环保材料。
-
用户体验:在这里,我们希望设计中能以一种独特的语言展现,传达不一样的思考。整体环境不仅迎合了教学环境的各种需求,还以一系列开放和灵活的空间规划营造出舒适的开放自由的成长空间,用无微不至的关怀、柔软舒适的细节以及充满趣味和无限幻想的室内设计,结合高品质多功能的空间,诠释了独特的设计理念。
我们用拱形元素组合结构跟红色点缀来作为空间视觉传达语言,在空间设计及材质的处理上我们做了很多减法,整体空间色彩以白色及木饰面为主,立体墙面点缀深红色,清爽整洁大气。
0
0

认证 · 让您身份增值