沐希洺
782 - 项目类型:休闲娱乐
- 项目地点:常州市
- 建筑面积:220.0000㎡
- 项目造价:80.0000万元
- 主案设计师: 林柯群
- 竣工时间:2019-08-08
- 设计机构:上海仓石设计有限公司
-
项目定位:光线赋予空间生命语言,它使建筑水泥与人的感性领悟彼此触摸。通过设计,让空间和自然的关系变得行云流水畅行无阻,丝毫不做作。它让人更懂得设计师营造这个空间的初衷,每一道光影,像是人和事路过时无意留下的足迹让人能够寻得它的去向。
——Feel Light
Light gives space to life language, which makes building cement and human perceptions touch each other. Through the hands of t -
空间意境:整个设计最大的亮点,可能是将窗外的光和自然景观与室内交互,通过光影随着时间的变化使空间产生丰富的变换,从而实现时空的艺术叠加,这也许就是白色极简最大的魅力。大面积的无框玻璃窗,不仅实现了空间的轻盈状态,更让整个室内与室外融为一体,呈现出现代极简最扣人心弦的环境美学,艺术在这一瞬间,则更贴近我们的生活与心灵,如此奇妙的设计,我们怎能不爱!
The biggest highlight of the whole design may be that the light outside the window a -
空间布局:叠加的阶梯,兼顾了成人儿童不同尺度,与KAWS公仔并肩而坐,享受空间的一隅乐趣。将光引入楼梯间的同时,增强了各空间的互动性,在纯净的空间中,我们可以和自然进行交流。
With limited space in the lounge area, the designer enriches the details and layers of the soft outfit from the castle's castle ash, the transparent acrylic coffee table, -
设计选材:休息区的有限空间,设计师从构件的古堡灰、透明的亚克力茶几,以及充满肌理感的地毯来丰富了软装的细节与层次,圆形的单人椅和配饰既与空间中的圆形镜面相呼应,又中和了方直硬朗的外形。
With limited space in the lounge area, the designer enriches the details and layers of the soft outfit from the castle's castle ash, the transparent acrylic coffee ta -
用户体验:因空间的留白手法,人则变成了空间的主体,同时也是空间流动的艺术品。
Due to the white space of space, people become the main body of space, and also a space-flowing art.
光线赋予空间生命语言,它使建筑水泥与人的感性领悟彼此触摸。通过设计,让空间和自然的关系变得行云流水畅行无阻,丝毫不做作。它让人更懂得设计师营造这个空间的初衷,每一道光影,像是人和事路过时无意留下的足迹让人能够寻得它的去向。 ——Feel Light Light gives space to life language, which makes building cement and human perceptions touch each other. Through the hands of the designer, the relationship between space and nature becomes smooth and unimpeded, and nothing is done. It makes people understand the original intention of the designer to create this space. Every light and shadow, like the footprint of people and things passing by, makes it possible to find its whereabouts. ——Feel Light
镂空的吧台设计、浅草黄的工作台面以及充满韵律的背景空间,在保持整体和谐的基调上,给空间注入活力,亦加强了人与人的交流。 The hollow bar design, the light yellow grass countertop and the rhythmic background space add vitality to the space while maintaining the overall harmony, and also strengthen the communication between people. rass countertop and the rhythmic background space add vitality to the space while maintaining the overall harmony, and also strengthen the communication between people.
休息区的有限空间,设计师从构件的古堡灰、透明的亚克力茶几,以及充满肌理感的地毯来丰富了软装的细节与层次,圆形的单人椅和配饰既与空间中的圆形镜面相呼应,又中和了方直硬朗的外形。 With limited space in the lounge area, the designer enriches the details and layers of the soft outfit from the castle's castle ash, the transparent acrylic coffee table, and the textured carpet. The round single chair and accessories are both round and round in space. The mirrors echoed and neutralized the straight and tough shape.
叠加的阶梯,兼顾了成人儿童不同尺度,与KAWS公仔并肩而坐,享受空间的一隅乐趣。 The superimposed ladder takes into account the different scales of adult children and sits side by side with the KAWS doll to enjoy the fun of the space.
将光引入楼梯间的同时,增强了各空间的互动性,在纯净的空间中,我们可以和自然进行交流。 The introduction of light into the stairwell enhances the interactivity of the spaces, and in a pure space we can communicate with nature.
极简对于设计师来说,极致的细节是体现设计水平最重要的元素,Lynn非常强调工艺的细微处理,比如不同材质之间的接缝、每个材质的收口等等。 Minimalist For the designer, the ultimate detail is the most important element of the design level. Lynn emphasizes the subtle treatment of the craft, such as the seam between different materials, the closing of each material and so on.
因空间的留白手法,人则变成了空间的主体,同时也是空间流动的艺术品。 Due to the white space of space, people become the main body of space, and also a space-flowing art.
整个设计最大的亮点,可能是将窗外的光和自然景观与室内交互,通过光影随着时间的变化使空间产生丰富的变换,从而实现时空的艺术叠加,这也许就是白色极简最大的魅力。 The biggest highlight of the whole design may be that the light outside the window and the natural landscape interact with the interior. Through the change of light and shadow, the space is richly transformed, and the artistic superposition of time and space is realized. This may be the greatest charm of white minimalism.
大面积的无框玻璃窗,不仅实现了空间的轻盈状态,更让整个室内与室外融为一体,呈现出现代极简最扣人心弦的环境美学,艺术在这一瞬间,则更贴近我们的生活与心灵,如此奇妙的设计,我们怎能不爱! The large-area frameless glass window not only realizes the lightness of the space, but also integrates the whole indoor and outdoor, presenting the most minimal and exciting aesthetic of the environment. At this moment, the art is closer to our life and Heart, such a wonderful design, how can we not love!
彩色亚克力相互交错,使单调的方形空格瞬间跳跃起来,并让这一空间充满了仪式感。 The coloured acrylics are intertwined, allowing monotonous square spaces to jump instantly and making this space full of ritual.
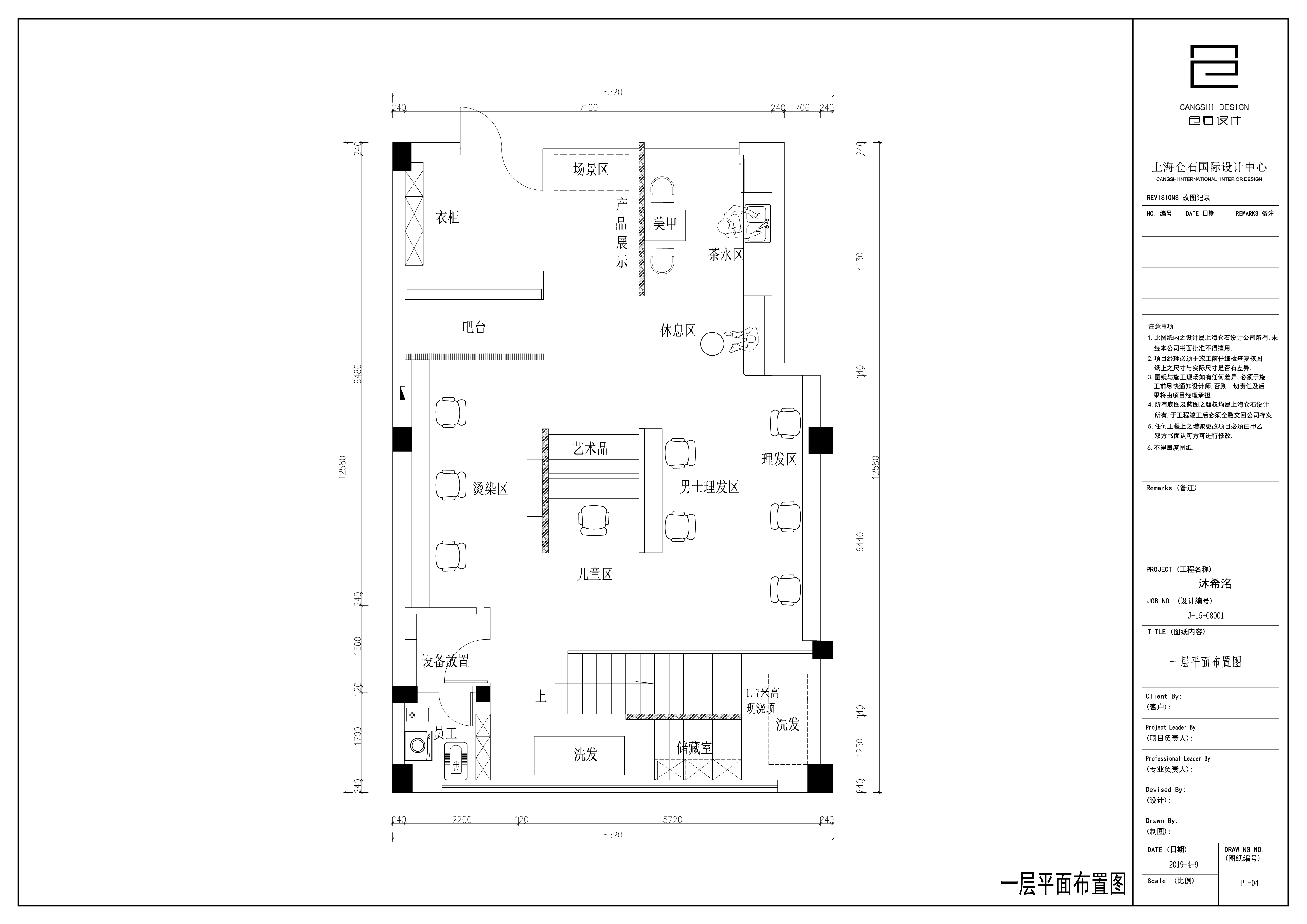
一层
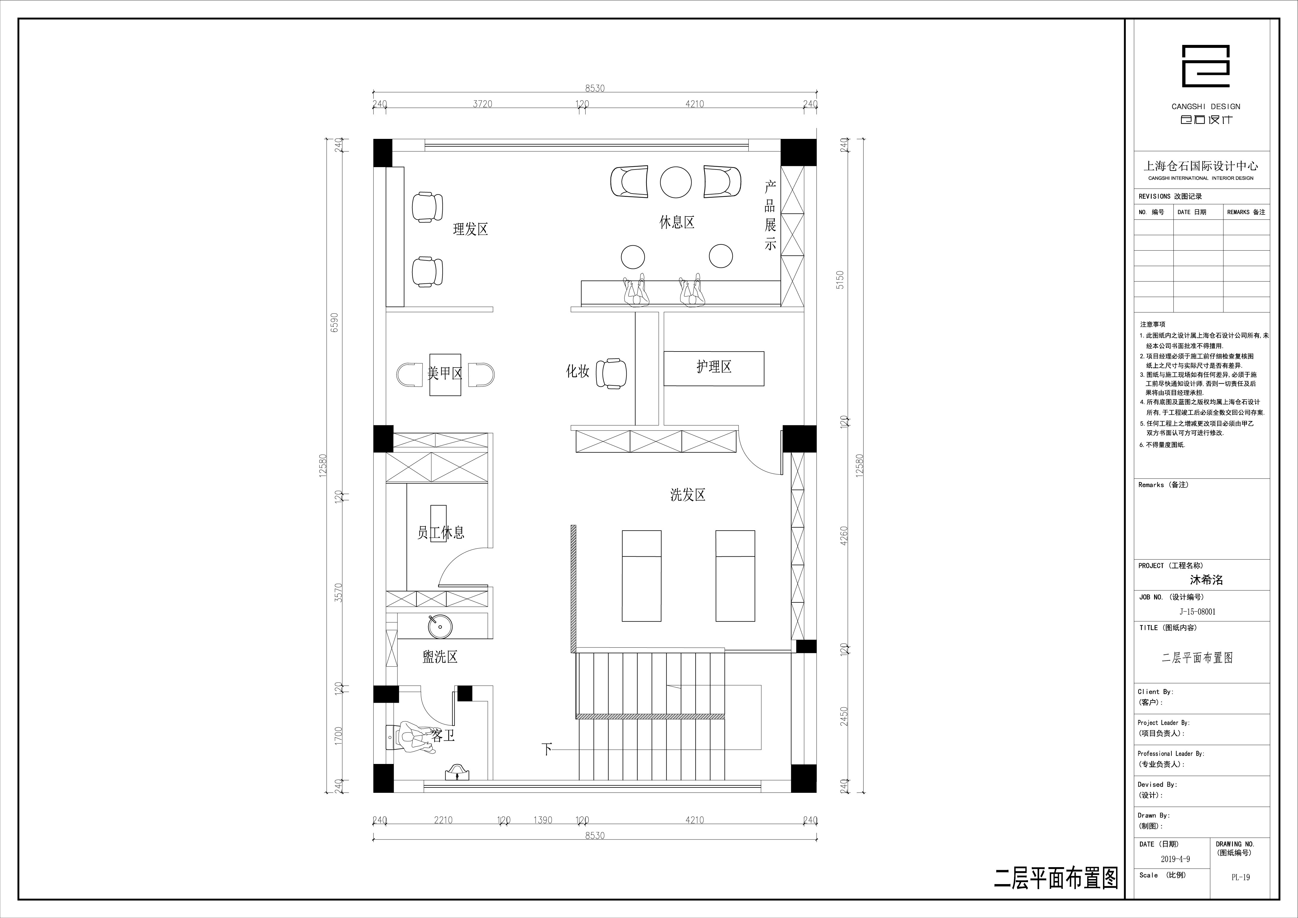
二层
0
0

认证 · 让您身份增值