生活艺术的图腾
3
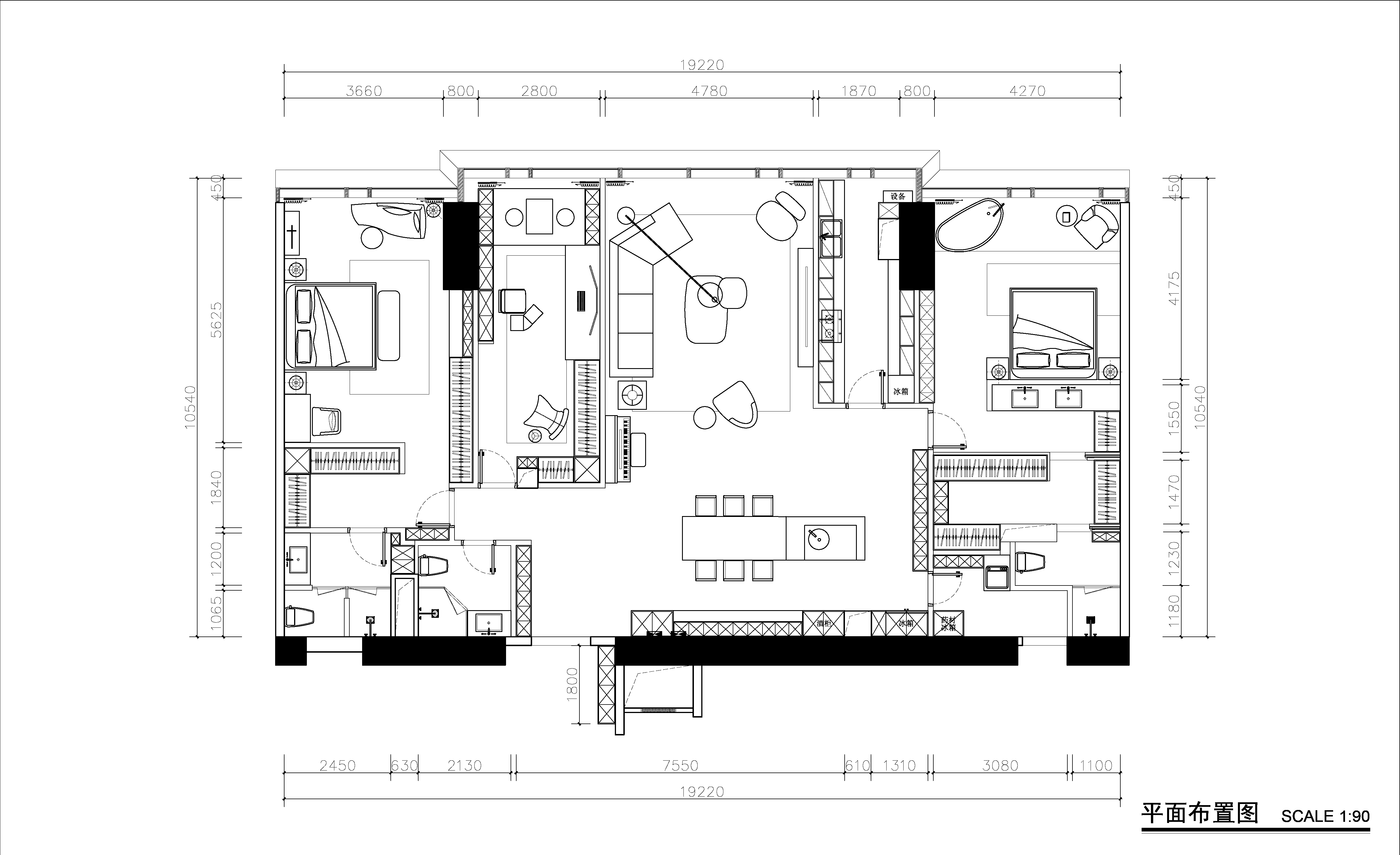
作品说明
- 项目类型:私宅
- 项目地点:深圳市
- 建筑面积:315㎡
- 项目造价:370万元
- 主案设计师: 朱俊翔
- 竣工时间:2025.01
-
项目定位:家的艺境:Art Deco 与生活的融合
-
空间意境:家,是生活的容器,也是艺术的栖息地。当Art Deco设计风格融入其中,便碰撞出别样的火花,让日常的每一刻都充满艺术的韵律。
-
空间布局:走进这样的家,最先映入眼帘的或许是客厅的背景墙。几何图案的壁纸与滑润装饰线条,勾勒出空间的层次感。搭配上简约的家具,如线条流畅的沙发和带有金属装饰的茶几,整个空间在简洁中展现出独特的艺术魅力。
餐厅的设计同样别具一格。一张造型简洁的餐桌,搭配几把带有复古造型的餐椅,再配上二盏造型独特的吊灯,光影交错间,营造出一种优雅而舒适的用餐氛围。在这里,每一顿饭都仿佛是一场艺术的盛宴。
卧室是休息的港湾,也是Art Deco风格的温柔角落。床头背景墙的几何图案,与柔和的灯光相呼应,营造出宁静而奢华的氛围。简洁的床品和几件精致的装饰品,让空间在艺术感中不失温馨。
Art Deco风格的魅力还在于对细节的雕琢。金色的门把手、几何图案的地毯、金属质感的装饰品……这些看似微不足道的元素,却在不经意间提升了整个家的质感,让艺术融入生活的每一个细节。 -
设计选材:材料说明|艺术漆、岩板、木饰面、不锈钢、布艺硬包
-
用户体验:家,是生活的舞台,也是艺术的画廊。它不需要过多的修饰,只需几笔简洁的线条和几件精致的装饰,就能让日常的点滴都充满艺术的气息。在这里,生活与艺术相互交融,每一天都成为一场美好的体验。
0
0

认证 · 让您身份增值