保利花园
80
作品说明
- 项目类型:住宅公寓
- 项目地点:成都市
- 建筑面积:230㎡
- 项目造价:180万元
- 主案设计师: 陈月亮
- 参与设计师:陈月亮
- 竣工时间:2025.05
- 设计机构:四川成都辰皓设计有限公司
-
项目定位:“收纳狂魔的家”这是我这次的主题。这个房子是业主已经居住了十年的家,怎么样去更好的优化他们的生活的方式?三代同堂的家庭,大大小小,零零散散,超级多的东西需要收纳。业主认可空间设计会改变生活状态的理念,希望在有限的空间内,围绕家来规划,把繁杂的东西隐藏起来,看得到看不到的空间都是整齐的,实用的,美观的。
-
空间意境:空间设计中,不拘泥于一种形式,风格当是随着生活的不同,自自然然形成的属于业主独有的特点,
随着时间的沉淀,历经生活的洗礼,其中藏着业主爱浪漫的气质,散发着业主的磁场,感受到业主的喜怒哀乐,看得出业主对生活的态度...... -
空间布局:本案户型是下叠空间。最大的改造,地台连接阳台的花台,原有的鸡肋空间,打造得出彩的同时为家里增加了储物空间,更好的是让空间尽可能开放消除空间中的边界感,折叠门打开,室外花园和室内空间融为一体,根据视线差,小区的绿植也融入空间,成了自己的私人花园。对生活的细节把握,对空间的美感构成,静观天地与人世慢慢地品味出它的和谐。
满墙电视柜的设计,对于三代同堂的家庭,在这个柜子里藏着孩子的童年,老人的关心,比高级更重要的是有趣,柜子打开的一刹那,生活皆在眼底。
餐厅兼容就餐,玄关,收纳柜的功能,线条优美的餐桌和椅子,升华空间的高级感。
客餐厅木制吊顶,丰富了空间层次,增加自然的感觉。
主卧室改变原始进门方向,避免大门对主卧门,同时卫生间的门做成镜面推拉门,放大空间的同时还增加了一面超大落地镜,主卫生间还增加浴缸空间,清晨阳光洒进来,卫生间明亮温馨,给人一整天的好心情。主卧空间把原始的窗改为推拉门,可以随意进出花园,休闲浪漫。
地下室就充分运用光线,让材质说话,在这里,孩子们学习,练琴,玩游戏,阅读,打造出温馨的亲子空间。 -
设计选材:公区吊顶采用木皮吊顶,天然柔和,大面积运用艺术漆,环保温馨。地面大面积采用柔光砖,好打理卫生的同时,给人舒适的感觉。特别是餐桌运用了不同木皮肌理的拼接,独属于业主的审美结合。不同材质间碰撞出个性与时尚美,为空间营造精致而温暖的感觉。舒适精简的场域,聚集家人间的互动,使日常的时光别具温情和记忆性。
-
用户体验:当我们回归“人,空间,行为”的第一性的原则,从居住者真实需求出发,业主对已经入住了十年的家又充满了新的希望。业主说“放心交给你,是她对家人最好的交代,下一个十年还会选择你“。
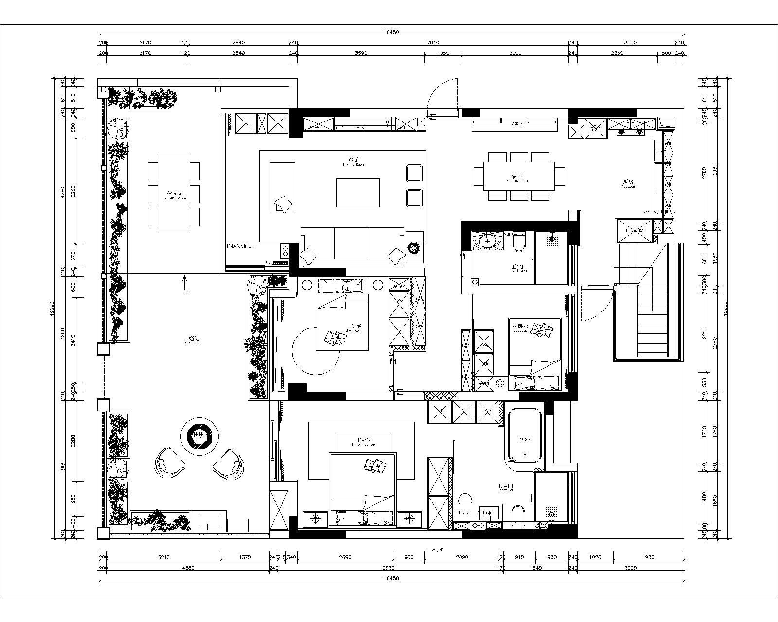
一楼原始平面
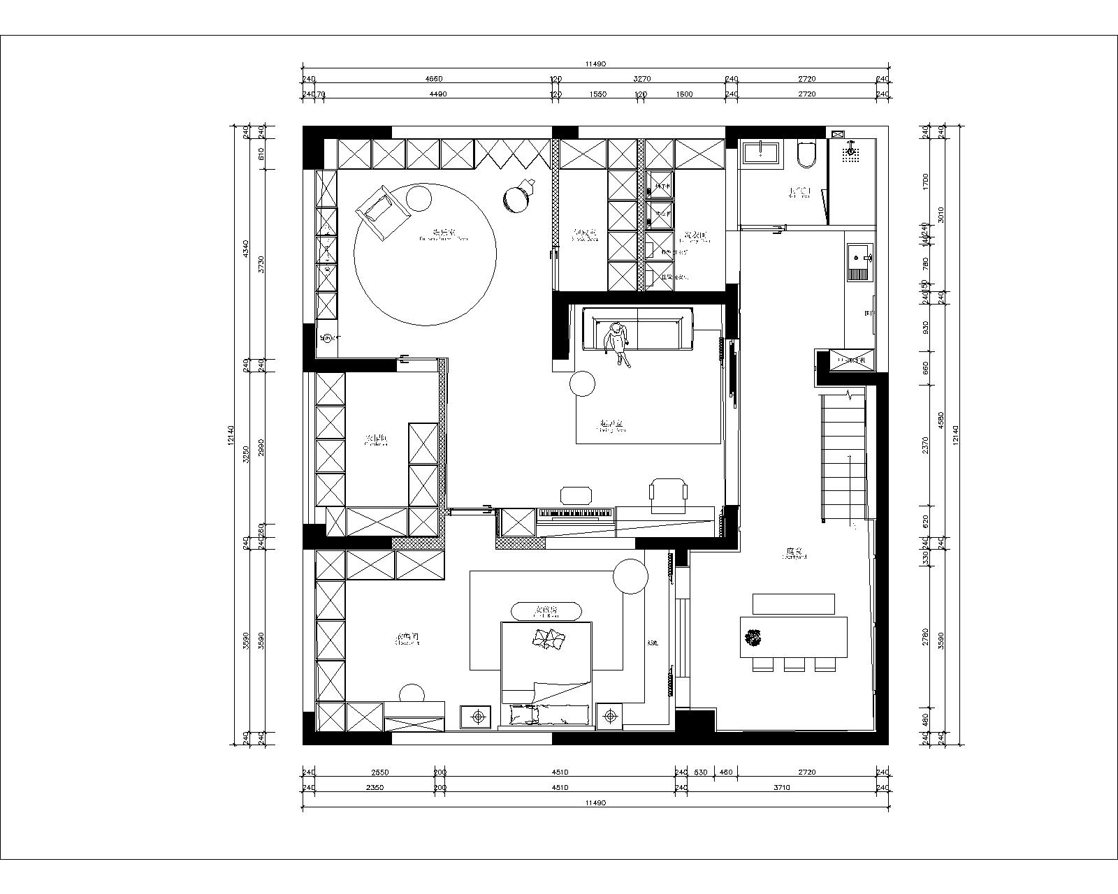
负一楼原始平面
一楼最大改造时花园和室内的关系,两个空间可开可合,室外可以聚会烧烤,把花园引进室内,打造自然的感觉。还把主卧室进门方向做了调整,解决了和大门对冲,同时卧室卫生间增加了浴缸的功能,整个卫生间阳光充足,让人身心愉悦。而且从卧室也能出入花园。充分利用绿植的光合作用。还有卧室外面的过道区域增加了双倍的储物空间,随时随地可以让业主的东西有地方去存放,达到了收纳的最大化。
地下室主要作为孩子们的卧室套房区域,给成长的她有足够的私人空间,同时还能和开放式茶室有互动。公区则是亲子区域,在这里看书,弹琴,玩游戏,一家人休闲的时光在这慢慢开展来。利用天井的采光,当阳光洒进来,整个地下室也是温馨明亮的。除此之外,地下室还考虑了两个储物间,达到了看得见的看不见的都是整齐的,美丽的。
0
0

认证 · 让您身份增值