润筑(保定 环冀青藤126)
306
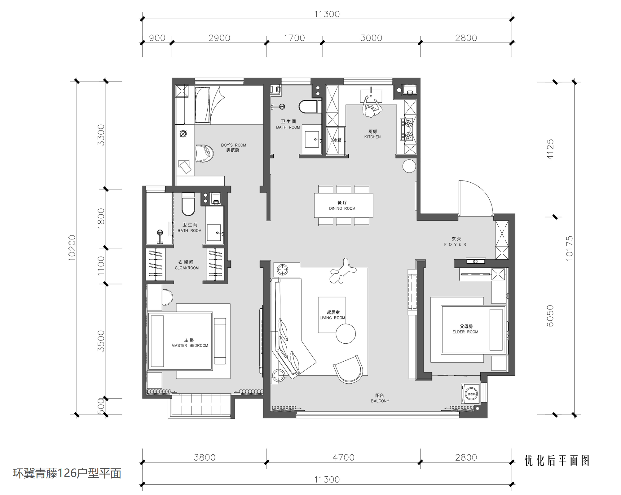
作品说明
- 项目类型:样板间/售楼处
- 项目地点:保定市
- 建筑面积:126㎡
- 项目造价:56万元
- 主案设计师: 刘雅正
- 竣工时间:2025年9月
-
项目定位:本项目以现代精致为核心,融合温馨舒适与实用功能性,打造全屋一体化生活空间。通过开放式布局与个性化设计,满足不同家庭成员的需求,创造高效、美观、低碳的居住环境。
-
空间意境:通过暖色调木质纹理墙面与浅色系搭配,营造温馨舒适的客厅与餐厅氛围。客厅绿植与圆形茶几增添生机,柔和灯光与简约布局,打造现代大气、宽敞明亮的居住环境。主卧过蓝色软包床与几何图案床上用品,营造活泼时尚的卧室氛围。艺术化装饰画与置物架增添个性,书桌区域与座椅搭配,打造兼具居住与休闲功能的创意空间。次卧以毛绒抱枕与暖色调设计,营造温馨私密的睡眠环境。衣物收纳柜与书桌区域结合,打造兼具居住、工作、收纳的多功能卧室,提升生活品质。
-
空间布局:采用开放式客厅与餐厅布局,通过合理动线设计,提升空间利用率。浅色沙发组合与圆形茶几搭配,营造宽敞明亮的氛围,同时兼顾实用性与美观性,提升空间通透感。
-
设计选材:浅色弧形沙发与圆形茶几选用环保材料,大理石地面选用天然石材,灯光设计采用节能灯具,整体装修注重低碳环保与经济性。
-
用户体验:整体空间温馨舒适,浅色调设计让人放松,开放式布局让家人互动更紧密。圆形茶几和绿植增添生机,灯光柔和;卧室设计活泼时尚,蓝色软包床舒适度很高,书桌区域适合阅读和工作。墙面装饰画和置物架增添个性,居住体验非常棒。
0
0

认证 · 让您身份增值