光之禅居
33 - 项目类型:住宅公寓
- 项目地点:西安市
- 建筑面积:280㎡
- 项目造价:185万元
- 主案设计师: 唐敏智
- 竣工时间:2025.03
- 设计机构:纳悦营造
-
项目定位:以现代生活方式的语言呈现出素雅并富有生机的东方美学。
-
空间意境:本项目位于陕西西安的曲江池畔,是一个旧房翻新项目。设计的初衷是在于探讨现代住宅文化中自然与人文的关系。
本案整体设计侧重对人与空间对自然的感知,并理性的融入禅。 -
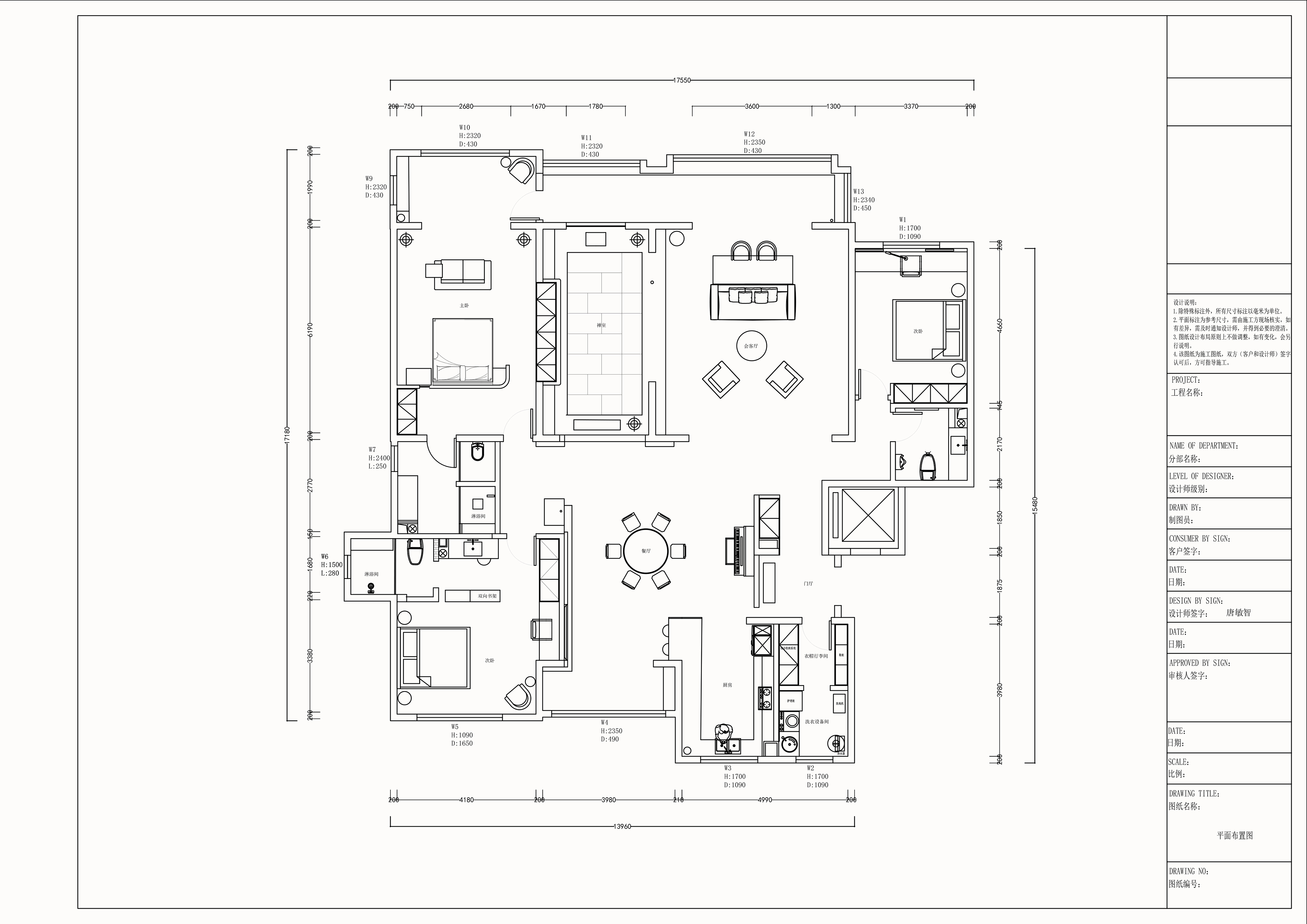
空间布局:本项目位于陕西西安的曲江池畔,是一个旧房翻新项目。设计的初衷是在于探讨现代住宅文化中自然与人文的关系。户型的原始空间划分较为琐碎,且位于一层,采光条件不佳,因此,我们在结构上进行了多处的拆改和优化,显著提升了空间的通透性和流动性。平面规划的重点在于不同功能区域在同一空间中的融合与独立,营造出一个即开放又具层次感的生活场域。
入口玄关区是作为整个空间的过渡区域,我们取消了原始结构中紧邻入口的客卫,将其改造为一个独特的通过体验区。归家过程仿佛从石洞中穿行,出洞口后豁然开朗。进入客厅,客厅以中轴线布局,备靠阳台的沙发休闲区成为空间的核心,将空间自然分解为自由环绕的流动格局。传统的电视墙被取消,取而代之的是一排实木书架,赋予空间更多的文化氛围与功能性。原始结构中的书房被改造成禅修室,为信佛的业主提供了一个在家修行的静谧空间。禅修室的南侧设计了取景框式的造型,将阳台外的竹景引入室内,营造出一种宁静而深远的氛围。
-
设计选材:
餐厅区域混凝土浇筑的洗手池与禅室空间可移动的和纸窗扇均在现场完成,厨房空间的部分实木橱柜与阳台区域的木地板均为关中地区的老榆木再加工完成,搭配扎染的布帘与木门上铜版也是为了重现那份温暖与熟悉。烹饪区前侧的铜版更是“时间的记录着”,每一次烹饪,蒸汽与油脂都会在铜版上留下痕迹,时间将会把它变得斑驳和富有质感。
-
用户体验:屋主一家人很享受我为他们设计的新家,孩子也更愿意和家人一起在厨房做饭。
本项目位于陕西西安的曲江池畔,是一个旧房翻新项目。设计的初衷是在于探讨现代住宅文化中自然与人文的关系。户型的原始空间划分较为琐碎,且位于一层,采光条件不佳,因此,我们在结构上进行了多处的拆改和优化,显著提升了空间的通透性和流动性。平面规划的重点在于不同功能区域在同一空间中的融合与独立,营造出一个即开放又具层次感的生活场域。 入口玄关区是作为整个空间的过渡区域,我们取消了原始结构中紧邻入口的客卫,将其改造为一个独特的通过体验区。归家过程仿佛从石洞中穿行,出洞口后豁然开朗。进入客厅,客厅以中轴线布局,备靠阳台的沙发休闲区成为空间的核心,将空间自然分解为自由环绕的流动格局。传统的电视墙被取消,取而代之的是一排实木书架,赋予空间更多的文化氛围与功能性。原始结构中的书房被改造成禅修室,为信佛的业主提供了一个在家修行的静谧空间。禅修室的南侧设计了取景框式的造型,将阳台外的竹景引入室内,营造出一种宁静而深远的氛围。 餐厅区域混凝土浇筑的洗手池与禅室空间可移动的和纸窗扇均在现场完成,厨房空间的部分实木橱柜与阳台区域的木地板均为关中地区的老榆木再加工完成,搭配扎染的布帘与木门上铜版也是为了重现那份温暖与熟悉。烹饪区前侧的铜版更是“时间的记录着”,每一次烹饪,蒸汽与油脂都会在铜版上留下痕迹,时间将会把它变得斑驳和富有质感。 卧室是我们栖居时间最久的空间,我们的策略是保持适度的退让,床头区域未做过多的造型处理,希望通过留白来保持空间的包容性和宁静感,同时确保足够的舒适度。 本案整体设计侧重对人与空间对自然的感知,并理性的融入禅意,以现代生活方式的语言呈现出素雅并富有生机的东方美学。
0
1

认证 · 让您身份增值