-
项目定位:本案整体侧重理性的择取禅意表达生活方式。
-
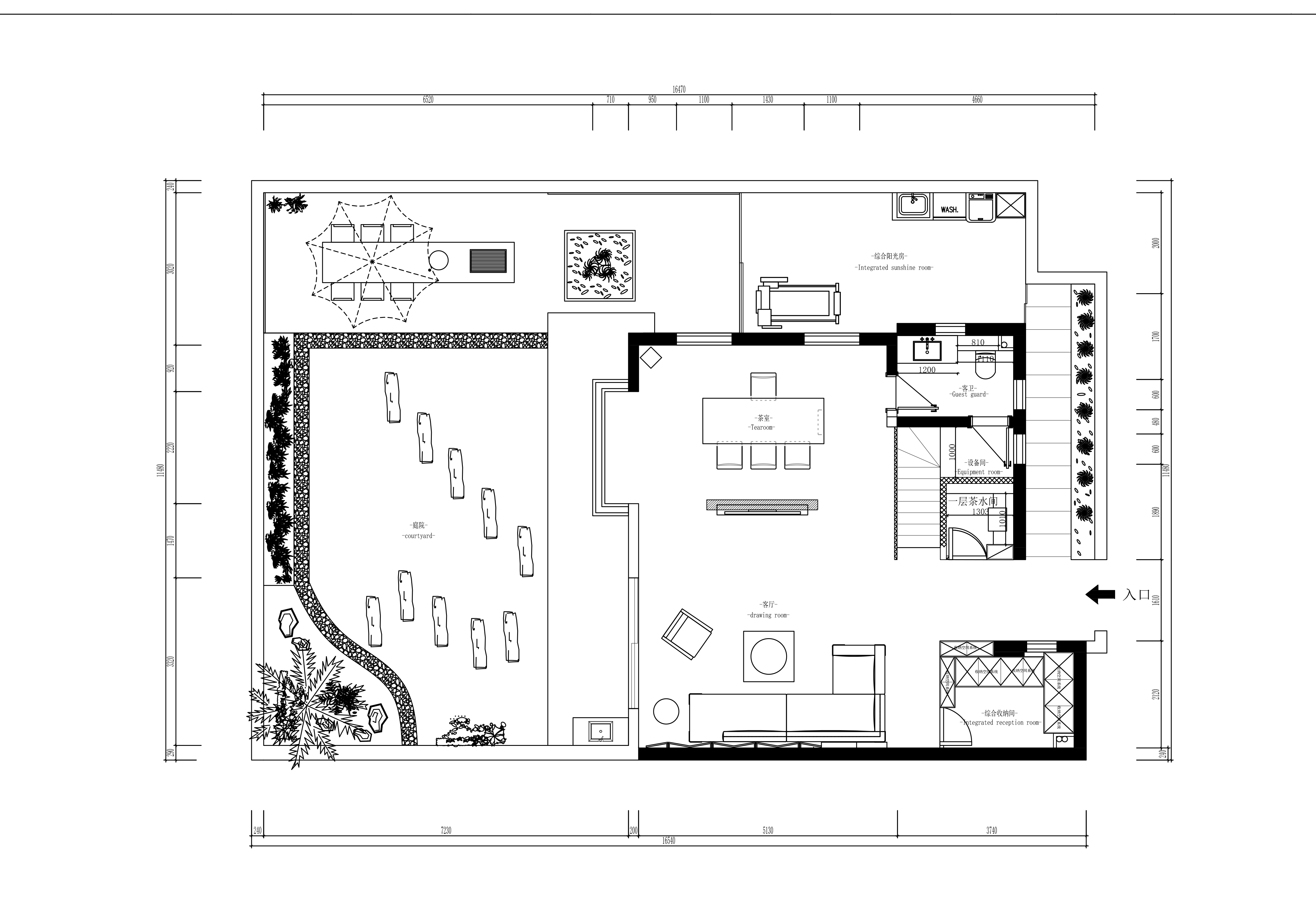
空间意境:用当下生活方式多语言呈现出素雅并富有生机的东方美学。
-
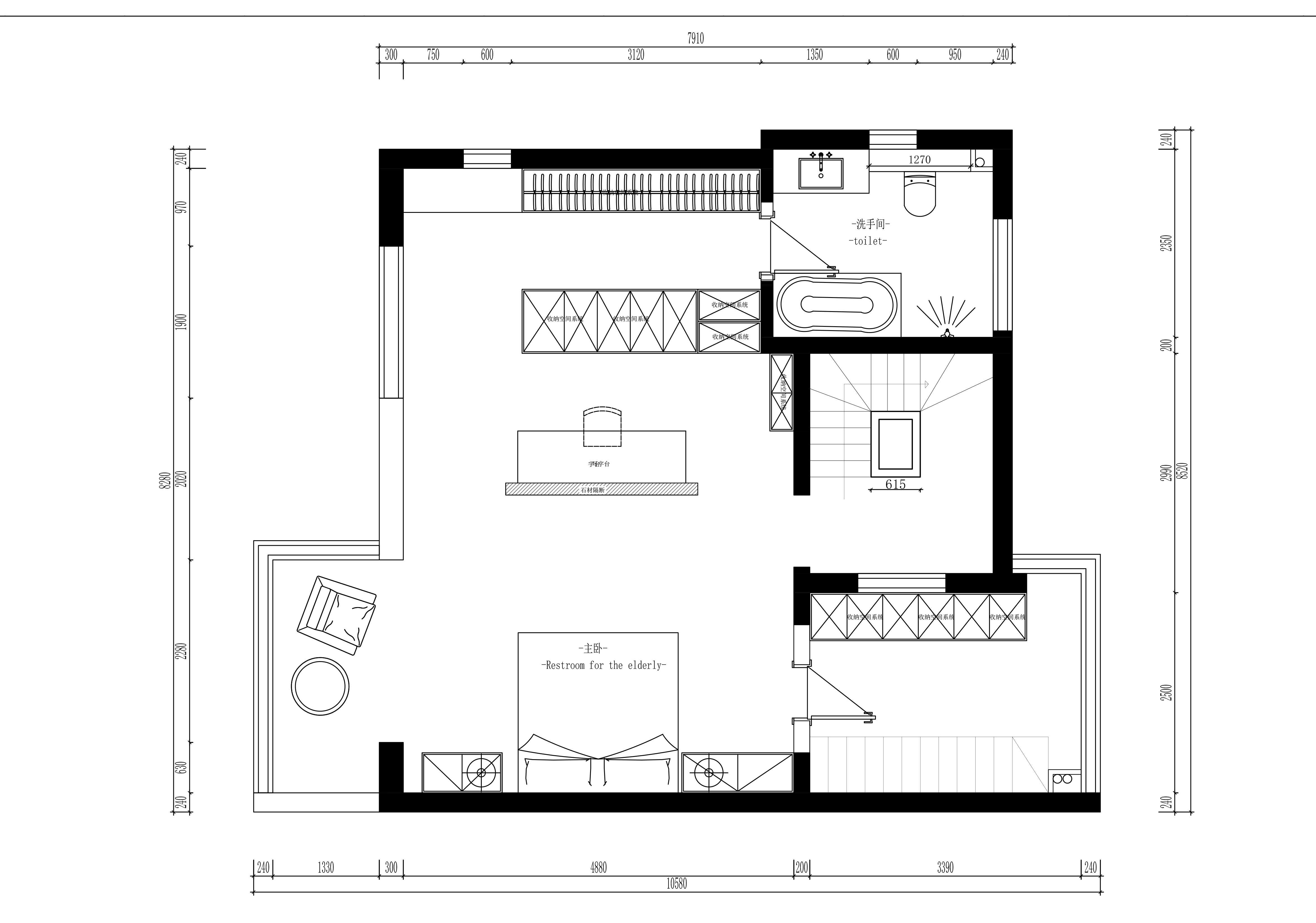
空间布局:本案在空间布局上更多的是解决不同功能区域在同一空间的融合与独立。
-
设计选材:更多的使用天然木材与石材,克制非天然材质的使用。
-
用户体验:茶区的氛围营造让主人可以找到自己的一片天地。
1
1

认证 · 让您身份增值
306