-
项目定位:整体设计摒弃冗余装饰,强调结构、材料与色彩的纯粹表达。通过暖色调砖墙与冷灰色水泥的碰撞,工业元素的硬朗与色彩带来的柔和之间的平衡,最终营造出一个既坚韧有力又充满温度、兼具现代感与永恒意味的独特场所。
-
空间意境:立面设计上,采用了深浅拼色的小砖精心砌筑,形成细腻而富有韵律的肌理变化。这种工艺不仅丰富了墙面的层次,更在光影下产生微妙的动态效果。与之相呼应的是大面积裸露的水泥肌理,其质朴、粗犷的质感与砖墙的精致拼贴形成巧妙对话,刚柔并济,诠释了材料本身的美学力量
-
空间布局:空间焦点之一在于定制设计的工业风吊灯。其造型简约而结构感强,金属材质与裸露的机械细节,直接呼应了现代工业设计的精髓。灯光透过独特的结构漫射而下,在水泥墙面与砖石肌理上勾勒出深邃的光影轮廓,进一步强化了空间的立体层次
-
设计选材:立面采用的深浅拼色小砖,优先选用本地生产,低能耗陶土砖,并通过精巧砌筑工艺最大化利用材料,减少损耗。深浅拼色不仅形成细腻肌理,更利于局部吸收与反射光线,调节建筑微气候。
-
用户体验:眼前一亮得感觉 和周围店铺反差感很大
门头设计上,运用了弧形结构,更好得贴合店铺位置,和弧形的地面 让空间看上去延伸感增强
景观池得设计完美的解决了地面红线不规则的限制
造型与等位区的一体设计既不影响空间的美观度,又兼容了等位需要
巨大的橄榄树装饰让空间生机盎然
墙面的拼砖设计让空间增加了趣味感
叠级天花的设计让空间有趣
logo墙与景观池的设计让品牌宣传的同时增加了温和感
灯具设计上是整个空间的亮点
软装装饰也采用干花蜡烛灯北欧休闲风格的特点
软装的氛围感给用餐环境增加了舒适感
镂空透景的设计 让空间增加了趣味
天花的细节设计
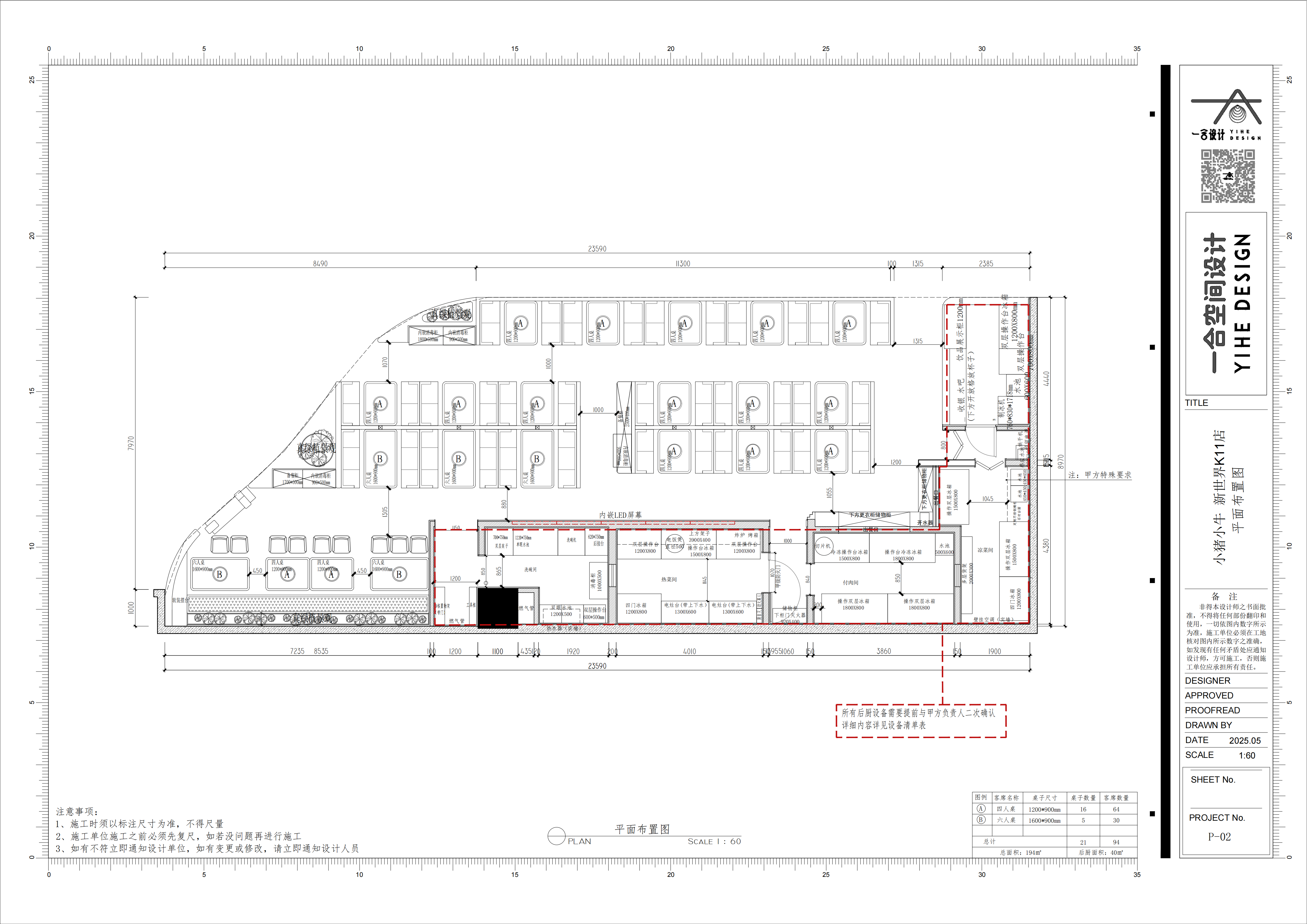
平面布置图
新建墙体
完成面尺寸
隔断尺寸
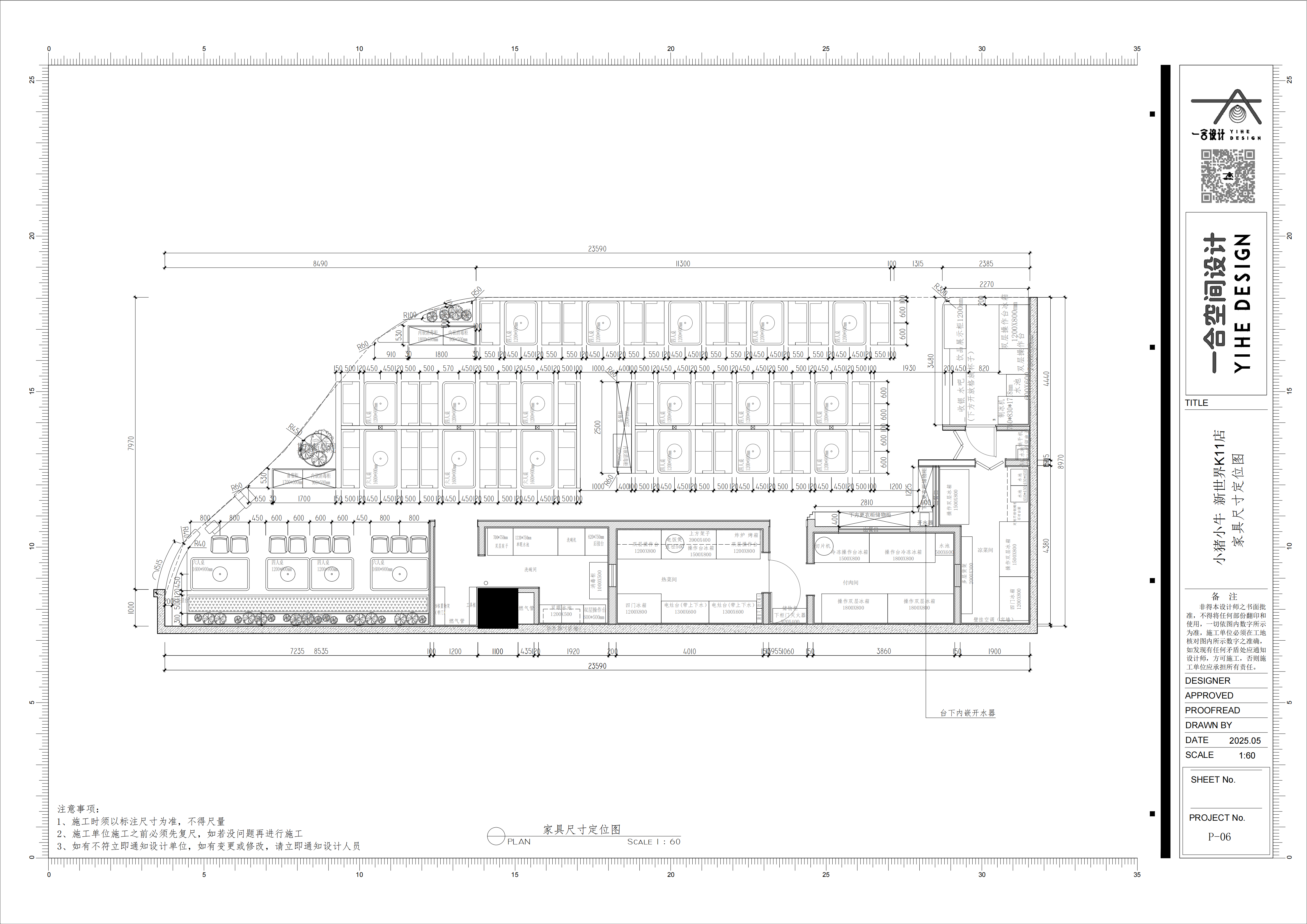
家具定位
天花布置
天花造型定位
天花灯具定位
天花灯具连线
地面铺装
0
0

认证 · 让您身份增值
91