中山尚郡
38
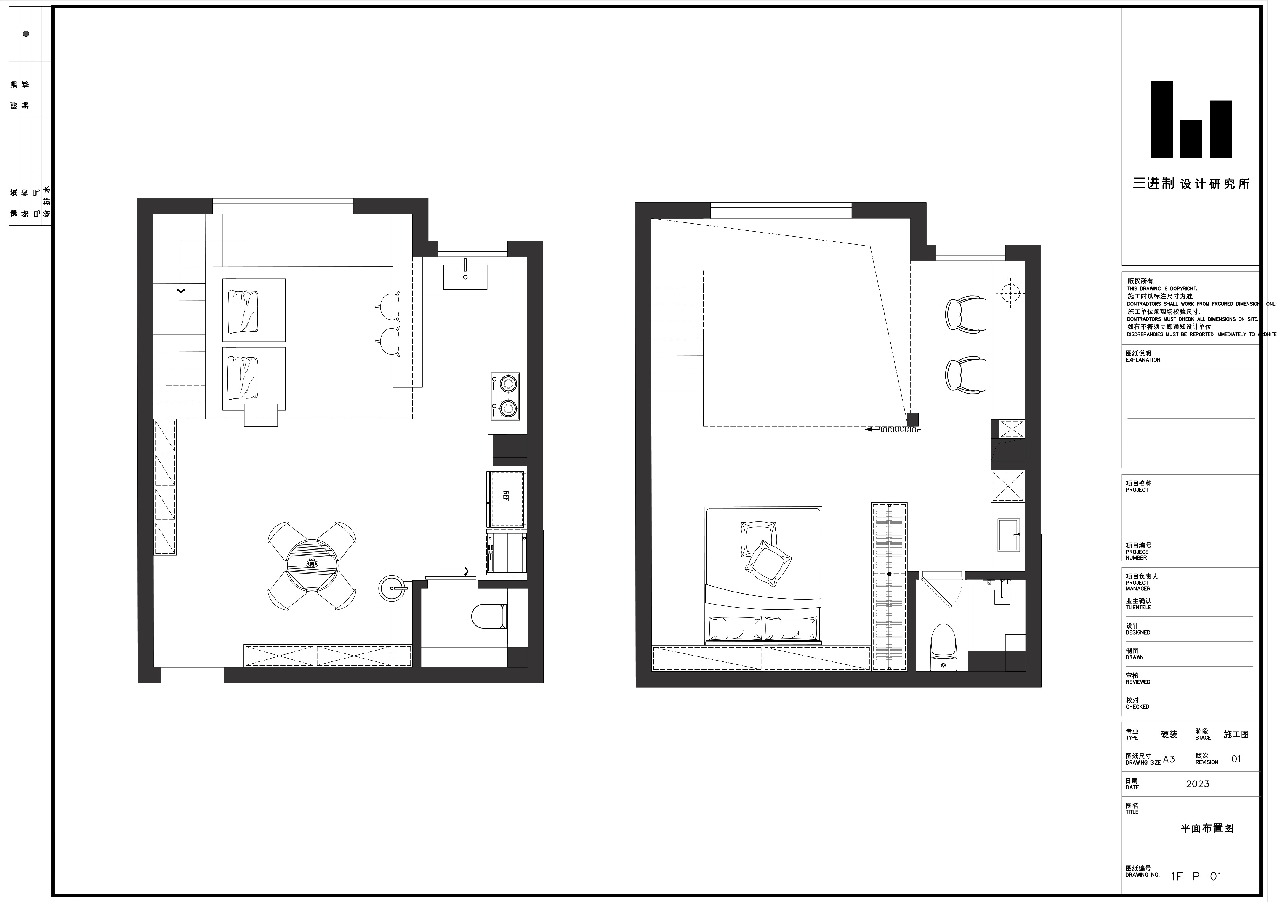
作品说明
- 项目类型:住宅公寓
- 项目地点:石家庄市
- 建筑面积:40㎡
- 项目造价:20万元
- 主案设计师: 王赤
- 竣工时间:2025年初
-
项目定位:委托人独居,自媒体博主的家,传统loft户型,能体现出现代风格且不一样的感觉的家
-
空间意境:loft在小户型设计中考虑细节点更要多,因为空间的局限远远比大户型要难把控。所以空间结构出彩的前提下,要兼顾实用。
-
空间布局:利用挑空空间,做出体块穿插效果
-
设计选材:本案均用最普通经济的材料,乳胶漆,瓷砖等。能节省预算等前提,还能运用颜色做出效果。
-
用户体验:客户是自媒体博主,一直做本案例等装修记录,因本案以涨粉上万,视频中均有本案的讲解,评论区一致好评
0
0

认证 · 让您身份增值