墨泊 · 境岸
2
作品说明
- 项目类型:住宅公寓
- 项目地点:台湾
- 建筑面积:205㎡
- 项目造价:80万元
- 竣工时间:2024
-
项目定位:在繁華的高雄港灣之側,本案以「現代人文雅奢」為墨,在深邃的墨色中調影,打破傳統豪宅對明亮金碧的依賴, 從「物質奢華」轉向「感官靜奢」勾勒出一座凌空於都市之巔的靜謐居所。
都會雅痞對「靜奢」生活的渴求,跳脫傳統豪宅對物質符號的過度堆砌,轉而追求一種回歸心靈感官的敘事空間。為居住者打造一個既能對外接待社交、又能對內靜心泊岸的私人隱居地,透過極致的感官體驗定義當代精英的居住身分。
-
空间意境:對「墨影」與「海藍」的動態掌控,讓環境不再是靜止的背景。當夕陽無聲融於黑夜,海港餘暉透過細膩的百葉窗櫺篩落入室,室內的墨灰色階與窗外的自然風光在邊界處匯合,形成一幅流動的藝術畫卷。我們摒棄了傳統室內設計對人工裝飾的執著,改以光影作為主要的空間畫筆。透過異材質表面對光的反射與漫射,室內場景隨時序推移展現出豐富的表情,從清晨的素雅人文到夜晚如精品 Lounge 般的微醺奢華,成功營造出一種「由外而內,引景入室」的沉浸式生活劇場。
-
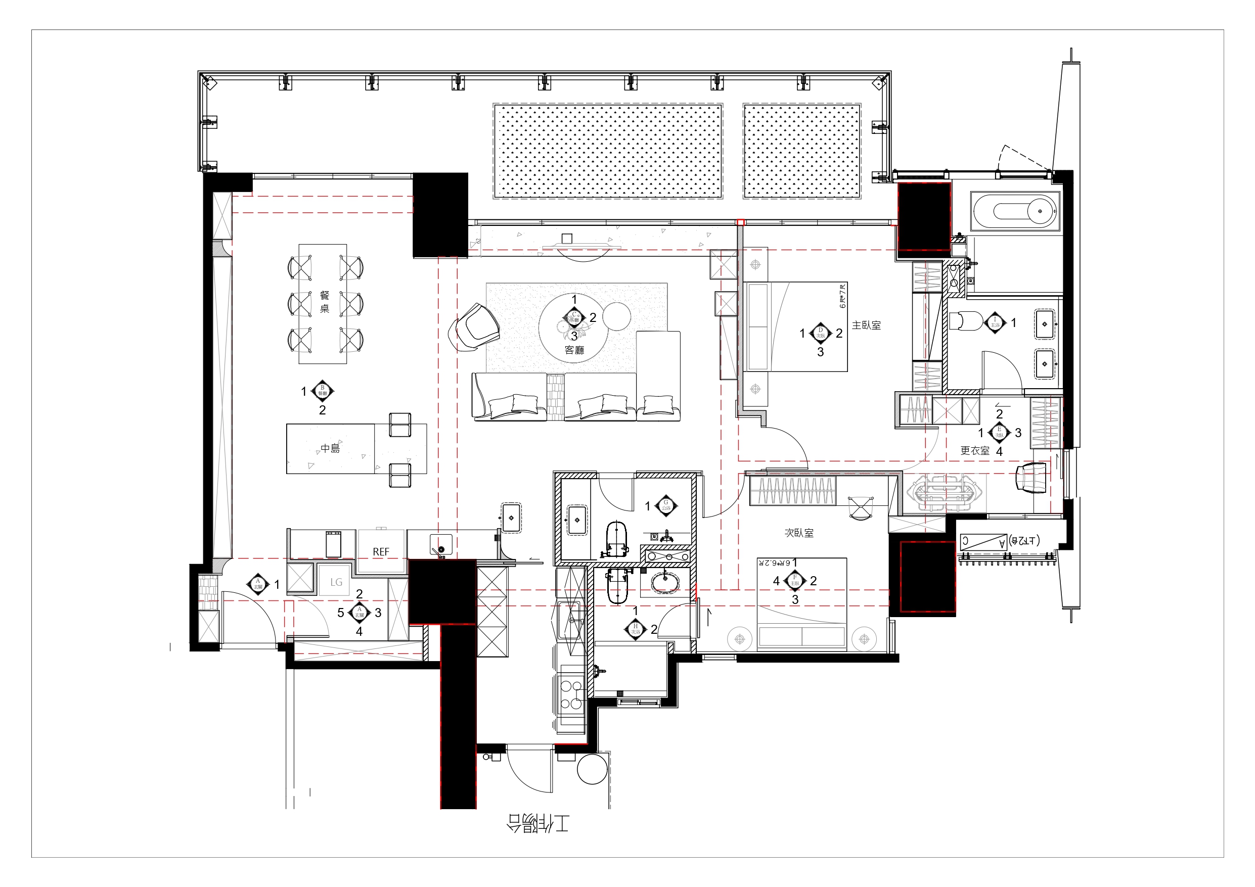
空间布局:佈局上大膽打破了住宅常見的區域框架,實現了空間的「自由呼吸」。我們決然摒棄了傳統以電視牆為中心的客廳格局,將空間的主權重新賦予窗外的港灣景致,改以一座具備高度穿透感的造型櫃體定義中軸。這座櫃體巧妙地區分了客餐廳的功能領域,卻保留了視覺的深度與空氣的流動性。這種開放式的軸線規劃,連結了採 Lounge 形式設計的開放式餐廚區,無方向性的中島配置消弭了社交邊界,讓備餐、品茗與對話自然融合。整體動線沿著生活節奏自如延伸,不僅優化了空間坪效,更大幅提升了當代居住者對自由、開放社交場域的需求。
-
设计选材:作品追求的是一種「柔中帶剛」的感官質感,透過選材的精準度體現設計的經濟價值。我們巧妙揉合冷冽的鍍鈦金屬、自然紋理的大理石與溫潤的鋼刷木皮,在墨色調中層層堆疊出細膩的異材質質感。這種選材策略深植於「長效設計」的理念,優先選擇具備高度耐久性、抗老化且易於維護的天然材料,有效降低了長期持有成本與未來翻新的資源耗損。同時,結合精準的智能間接照明系統與自然採光導引,大幅減少對高耗能裝飾燈具的依賴,在構築極致美學空間的同時,亦實踐了對環保低碳與經濟效益的雙重承諾。
-
用户体验:本案精準對位現代都會菁英的生活型態,大膽捨棄傳統三房格局,將空間優化為兩房並整合出極大化的開放式客廳與中島餐廚區,不僅消弭了場域邊界,更為居者創造出一處具備「癮奢 Lounge」氛圍的社交核心,滿足業主對高質感聚會與居家放鬆的雙重渴望。
0
0

认证 · 让您身份增值