現代奶茶 溫馨家居
173
作品说明
- 项目类型:住宅公寓
- 项目地点:台湾
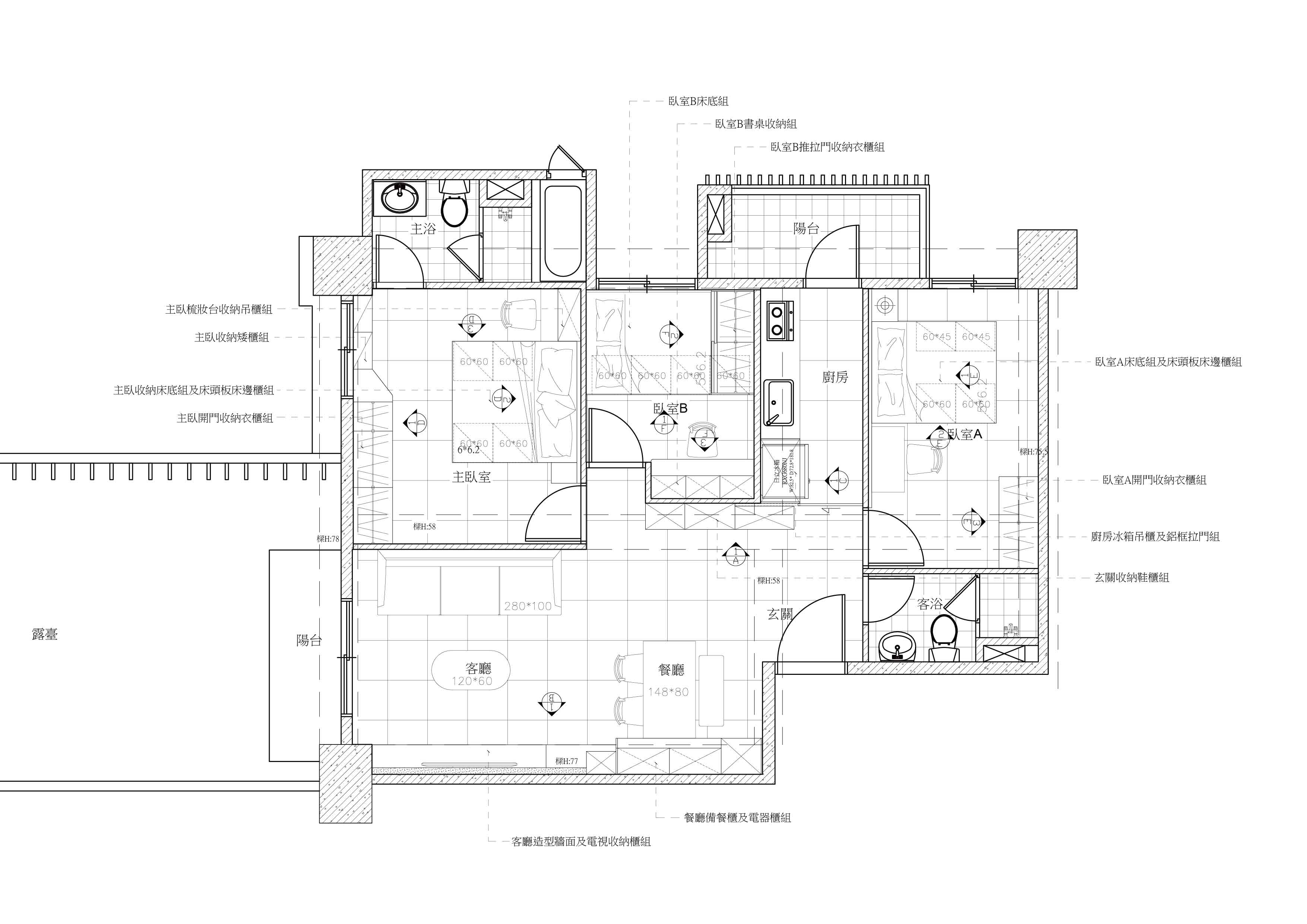
- 建筑面积:85㎡
- 项目造价:40万元
- 竣工时间:2025/02/27
- 设计机构:唐門室內裝修規劃設計
-
项目定位:以年輕夫妻的新婚生活為起點,迎接孩子到來的成長型住宅。空間規劃為三房兩廳,包含主臥、小孩房,以及一間結合辦公書房與遊戲機能的多功能空間。設計在家庭互動與個人獨處之間取得平衡,使住宅能隨著孩子成長與生活階段轉換,承載日常、工作與陪伴的多重情感,成為一家三口共同成長的溫暖居所。
-
空间意境:空間運用溫潤低彩度色系,柔和中帶有繽紛趣味,營造輕快且溫馨的生活氛圍。每個角落都透過色彩、材質與線條巧妙設計,既舒適又充滿生命力,使居住者在日常生活中感受細膩與愉悅。整體風格不僅表現出個人品味,也兼顧家庭互動與成長需求,呈現空間設計的多層次魅力與情感張力。
-
空间布局:在原有三房兩廳格局基礎上,透過細部微調優化動線與功能分區,使公共區域使用更具彈性。空間布局兼顧隱私與互動性,維持住宅原有結構優勢,同時提升生活便利性與舒適度,實現兼具功能性、靈活性與高品質的居住體驗。
-
设计选材:公共區域採莫蘭迪色系,線條俐落簡潔,呈現現代極簡與優雅氣質;臥室以木色搭配白色,展現北歐簡約溫潤感;書房則運用黑白灰色系,塑造專注而沉穩的工作氛圍。透過色彩、材質與線條的層次搭配,空間兼具視覺秩序與溫馨氛圍,每個細節都考量居住體驗,並紀錄孩子成長的點滴,使住宅呈現生活的溫度與美好。
-
用户体验:整體空間兼顧實用與舒適,營造放鬆愜意的生活氛圍。住宅不僅是居住場所,更是孩子成長的溫暖港灣。每個細節精心設計,展現對生活品質的追求,使居住者能細細享受每一刻的寧靜與美好,感受空間帶來的溫馨幸福,陪伴孩子健康成長。
0
0

认证 · 让您身份增值