我的四季
1371
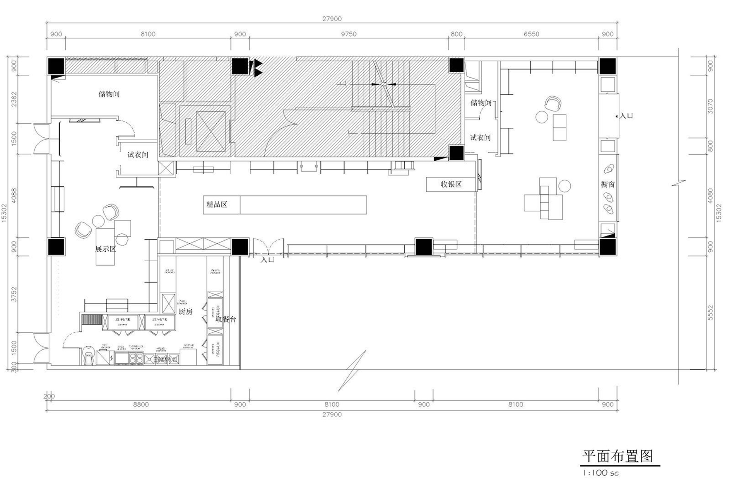
作品说明
- 项目类型:展示
- 项目地点:成都市
- 建筑面积:230.0000㎡
- 项目造价:120.0000万元
- 主案设计师: 李雪
- 参与设计师:杨星 李雪 李雪旭 黄施瑜 邹惠 彭小凤
- 竣工时间:2019-05-17
- 设计机构:成都润舍纳图装饰设计有限公司
-
项目定位:神 说 , 要 有 光 , 就 有 了 光 。
——《圣经》
那些转瞬即逝的自然意象被巧妙定格,幻化成室内空间的设计‘原型’:草、雨、云、光、岩……怡然自得、自由洒脱,让人们看到了设计之于生活的意义。
-
空间意境:本案的设计灵感源于时装秀场
以T台的形式在空间内穿插
模特装置以走秀的形式呈现
空间模特身上透明服装结合整个T台区域空灵干净的色调,呈现出一种时尚的未来感,服装具有呼吸感的诉求 -
空间布局:黄铜的运用为整个空间添加了清贵的时尚感
由于此项目位于商场内,缺乏自然采光,故在顶面的设计手法采用天井的形式模拟自然光,加强空间亲近感。
干练的线条延伸至空间尽头,让顾客进入店面后,视野开阔,没有丝毫束缚感
相比于白色,她多了几分蜂蜜色的甜蜜柔和
相比于黄色,又多了几分白色的纯洁优雅
香槟色
有着淡淡香槟酒的颜色和令人欲醉的魅力
看起来高贵优雅 简洁干练
尊贵的皇家蓝、温润的珍珠白和优雅的香槟色,整体上冷暖平衡的空间涌动着轻奢的气息......
-
设计选材:微水泥、水磨石和金属框架,这些材料被安放在有趣而灵活的空间之中,营造出一种温馨而时尚、纯粹而精致的气质。
-
用户体验:温馨而时尚,很干净的空间
0
0

认证 · 让您身份增值