重庆天景雨山前28阙闲谷
87
作品说明
- 项目类型:别墅
- 项目地点:重庆市
- 建筑面积:2300㎡
- 项目造价:1000万元
- 主案设计师: 杨韫榕
- 竣工时间:2025年10月18日
- 设计机构:肆面设计
票数 : 0
-
项目定位:我们的设计策略,旨在将这些多维度的诉求,转化为一处可感知、可体验、可生长的物理与情感空间。
1. 塑造“聚落式”布局,构建情感磁场我们摒弃了单一巨大厅堂的概念,转而打造了一系列尺度各异、氛围不同的公共节点:
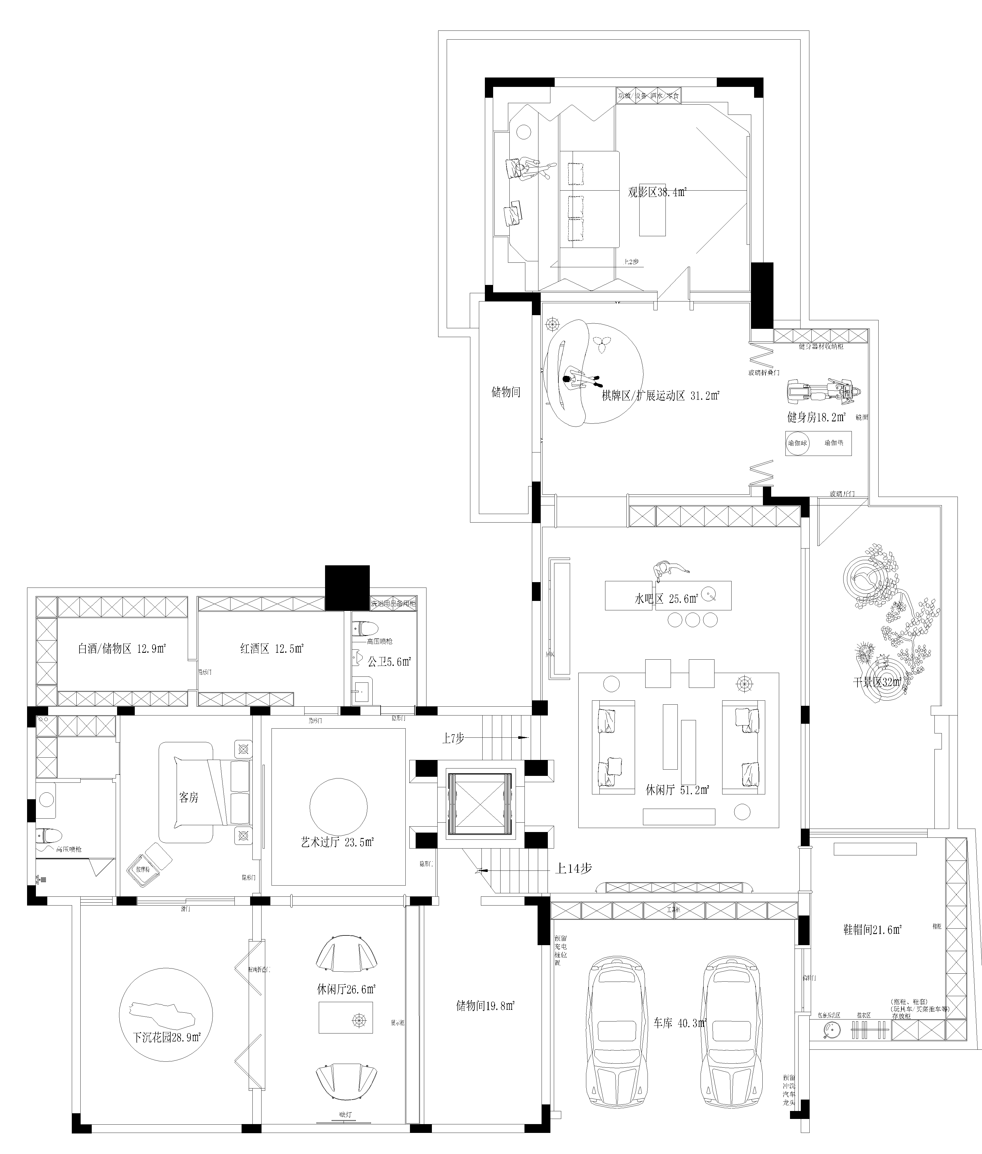
• 地下层的“家庭核心区”(家庭厅、影院、水吧),是轻松随性的家庭互动场。
• 首层的茶室与下沉庭院贯通,形成了接待与家庭休闲的景观客厅。
• 花园,则是家庭派对、户外活动的精神场域。
这些节点通过垂直交通与景观视线巧妙串联,如同一个微型聚落,鼓励着不同代际间的自发相遇与交流。与此同时,通过楼层自然分区,为每位成员赋予了拥有完整配套的私属领域,确保了绝对的静谧与尊严。
2. 设计“渗透性”界面,实现自然共栖,我们将建筑视为捕捉自然的装置。下沉庭院成为贯穿地下空间的光与绿之核心;几乎所有主要房间都配备了延展的露台或阳台,形成深远的景观层次。材料选择上,我们大量运用天然材质,让室内外的质感语汇统一,使建筑柔和地“锚固”于场地环境之中,实现真正的 “园中有宅,宅中有园” 。
3. 策划“行进式”美学体验,培育日常之美,整个家的叙事从颇具仪式感的艺术过厅开始。我们特别设计了连接子女卧室的漫长艺术走廊,它未来将成为展示家庭收藏与孩子创作的动态画廊。每一处细节,从隐藏式柜门到灯光设计,都被视为营造氛围的展品,让美学的熏陶发生在不经意的视线流转之间。
4. 整合“系统化”后台,承载从容生活,我们建立了一套清晰的分级收纳系统,并为其规划了专属的、便捷的存取动线。家政区域(保姆房、洗衣房、设备间)被集中、高效地组织,在相对独立的服务模块内,并通过巧妙的路径规划,使其与主人的生活动线完全分离。所有技术设备及大量储物空间均采用隐蔽式整合设计,确保了空间视觉的绝对沉静与高级感。
本项目不仅是一次空间规划,更是一场关于当代家族生活方式的温柔探索。我们最终交付的,将是一个能容纳时间、情感与自然,并在严谨的系统支撑下,自由绽放生活诗意的 “家” 。它是对中国式三代同堂理想的一次深刻而优雅的当代转译。 -
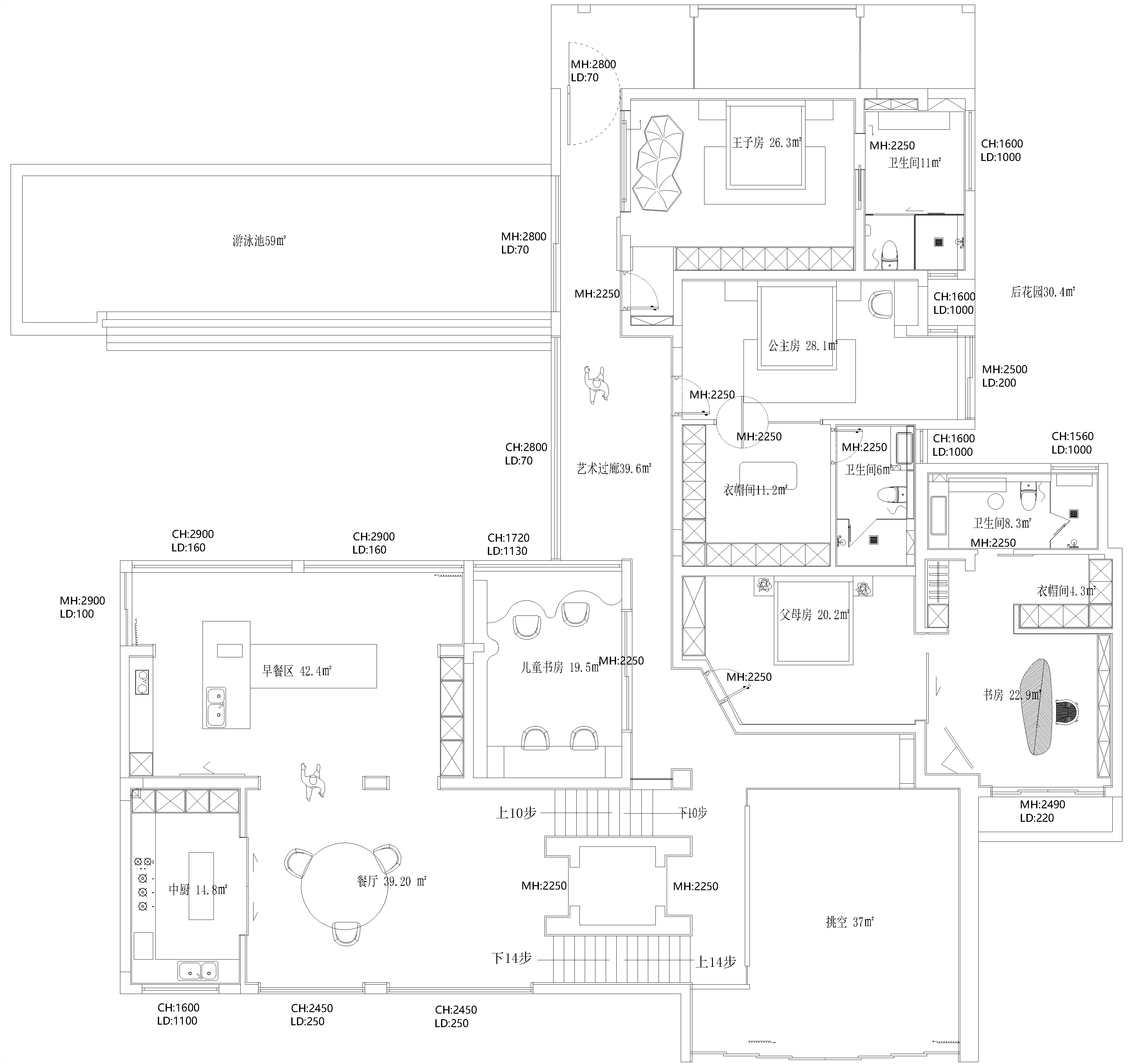
空间意境:一、“内外无界”自然融合创新:打破室内外壁垒,自然深度植入生活。一层下沉花园串联内外;二层挑高客厅借采光与绿植实现“室内外一体”;三层早餐区览泳池、森林景致,艺术走廊串联室内与后花园,让自然成为生活与成长底色。
二、“全龄场景化”人文适配创新:适配家庭多元需求。一层艺术过厅定调雅奢,兼顾长辈房与亲子空间;三层双餐厅划分日常治愈与社交场景;儿童书房适配学习,艺术走廊兼顾玩耍观景,实现全龄适配。
三、“仪式感与松弛感共生”氛围创新:摒弃过度装饰,以极简美学平衡格调与舒适。一层实现入户仪式感到日常松弛的自然过渡;二层挑高客厅兼具社交与休闲功能;四楼主卧套间打造疗愈私域,实现格调与温度并存。 -
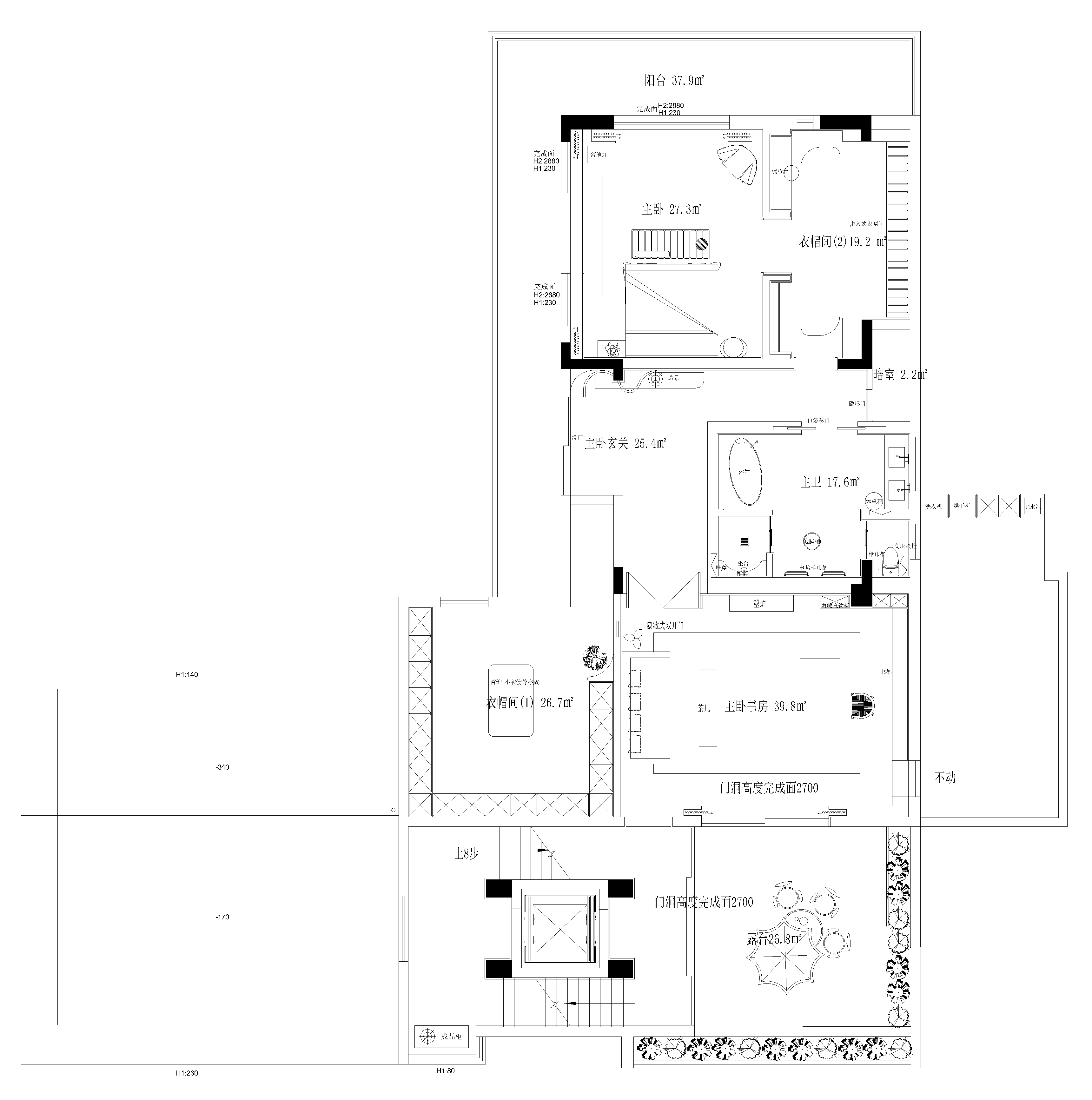
空间布局:1. 三楼增设艺术走廊:打通封闭墙体,串联儿童房、老人房与后花园,解决动线割裂与亲近自然难题。孩子、老人可直达户外,走廊框景设计将户外景致尽收眼底,让穿行成为观景仪式。
2. 中西厨分离+双餐厅设计:拆分厨房为独立封闭中厨(双灶台、充足操作台)与开放西厨(带岛台),满足多人操作与油烟隔离需求;增设双餐厅,长条早餐桌适配日常小聚,圆形大餐厅适配宴请。解决厨房功能不足与用餐场景单一问题,强化家人互动,提升用餐灵活性与仪式感。
3. 四楼规划双衣帽间+主卧起居室:新增大衣帽间,与日常衣帽间形成分区收纳,解决夫妻收纳不足问题;增设主卧起居室,打造独立私域休闲区,提供疗愈空间,兼顾舒适与仪式感。
4. 二楼整合儿童玩耍区与茶室:半开放式玩耍区与茶室对望,解决大人与孩子互动割裂问题,大人接待亲友时可随时关注孩子,玩耍区配套书架与学习角,兼顾嬉戏与专注力培养。
5. 一楼休闲厅与水吧区一体化:整合空间增设水吧与储物柜,解决老人取水不便问题,让老人休闲、取水更便捷舒适。
以人居需求为核心重构空间,打破割裂、整合功能,强化家人与空间、自然的连接,打造动线流畅、功能适配、情感紧密的生活体验,让家真正服务于生活。 -
设计选材:石材选择莱姆石与黑色岩板:莱姆石质地温润、肌理自然,被用在门洞、外墙与地面,既能弱化原始梁的突兀感,又能呼应庭院的自然基调,且耐磨耐脏,适合高频使用的公共区域;黑色岩板硬度高、易清洁,用在地面。木质选择实木与木饰面:实木温暖亲和,被用在家具、梯步与书架,为空间注入居家温度,尤其适合儿童房、老人房与休闲区,让家人触摸到的地方都能感受到柔软;木饰面则用在墙面与柜门,纹理统一且易理,增加了空间的整体性。玻璃选择超白玻璃:超白玻璃通透不遮挡视线,被用在窗户、玻璃栏杆与泳池边框,让室内外景色无缝衔接,同时扩大视觉空间;金属选择镜面不锈钢与黑色镍金属:镜面不锈钢被用在包梁与鞋帽间柜门,既能弱化结构突兀感,又能提亮空间,增加精致感;黑色镍金属则用在家具腿、灯具边框,作为点缀,增加空间的稳重感,且不易显脏。
-
用户体验:居住后的评价:
第一:客户觉得我们开的每一扇窗都很漂亮
第二:当时设计师给她选用的石材越看越好看。
第三点:做了足够多的收纳,现在家里面收纳都是就近原则,又干净又整洁又方便。
第四点:三代人在那个家里面居住。既可以在一个空间玩耍、聊天、沟通,然后又有自己独立的空间。互不打扰,就可以其乐融融。
对设计师的评价:
设计师设计得很好,考虑事情很周到,做事很用心。
会给客户分析弊端优势。整个团队都很用心负责
0
0

认证 · 让您身份增值