纯白盒子
109
作品说明
- 项目类型:住宅公寓
- 项目地点:武汉市
- 建筑面积:37㎡
- 项目造价:35万元
- 主案设计师: 刘璐
- 参与设计师:刘璐
- 竣工时间:2024/03
- 设计机构:武汉咫尺设计
票数 : 0
-
项目定位:这个家在效果图阶段就已经被很多人喜欢,干净的留白让人有种从生活琐碎中脱离出来的感觉,但细看又会发现它并非不食人间烟火,而是在功能与美学之间找到了平衡。新家落地,值得关注的并不止镜头前的美貌,简单和极简之间的区别,就在于那些贴近生活后真实存在的细节,正是把一点一滴容易忽略的细节都重视起来,家才会真正实现颜值与实用并存。
-
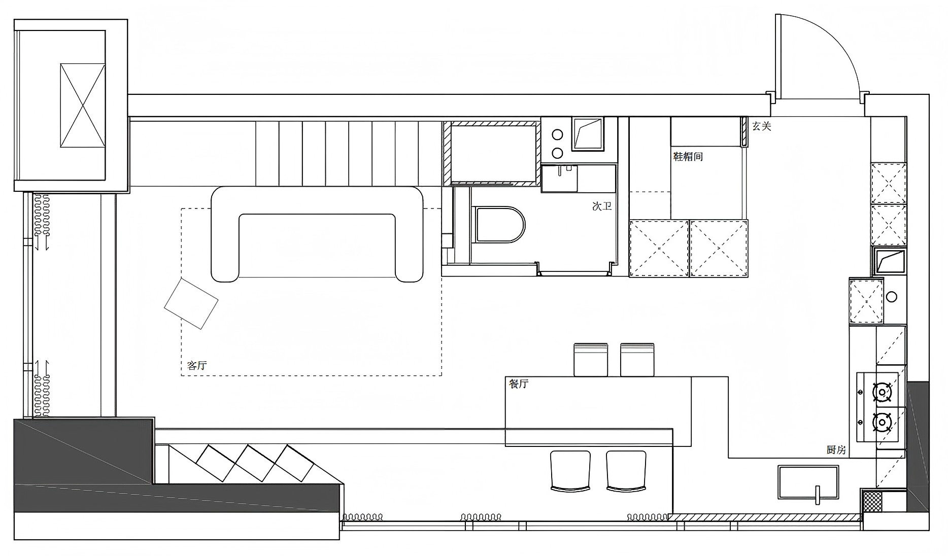
空间意境:客厅去背景墙化的通顶双面造型书架贯穿两层,让结构本身成为空间的亮点;悬浮楼梯和玻璃扶手,让空间更极简轻盈,楼梯下方空间以半开放的形式将绿植景观连通客卫,既解决了采光通风问题,又为客卫注入了新的可观赏性。
-
空间布局:入户处增设独立玄关,这里不仅有鞋柜,还有被折叠百叶门隔出的储物间,旅行用到的大大小小的行李箱都将在这里存放,日常穿脱的外套等也收纳其中,轻松维持视觉上的整洁;与玄关相连的是开放式餐厨区域,极简黑白配色有着错落的层次,由于屋主身高都偏高,因此在水槽一侧的操作台面也随之加高,背面利用转角空间做出迷你酒柜;灶台处吊柜下方灯带补充照明,电磁炉与岩板台面融为一体,伸缩烟机完美隐藏在吊柜中;餐厅地台延伸至客厅,这里其实是一根厚重的地梁隐藏其中,从橱柜悬挑而出的桌面被透明亚克力桌腿轻盈托起,餐桌两侧因地梁呈现不同的地面高度,顺势而为让地台一侧可作为正常高度餐桌使用,而另一侧则是吧台高度;试想在某个平常的夜晚,一边望向窗外星星点点的城市,一边在灯光渲染的浪漫氛围下喝到微醺,生活的每一个平凡时刻都值得被重视;餐桌后方的白色墙面中,隐藏着嵌入式冰箱,从底部的圆形散热孔就能发现它的存在;冰箱左侧的柜体内是洗衣机+烘干机+储物的组合,小空间设计就是要高效利用空间,又要让各功能的使用都足够舒适。
-
设计选材:全房墙顶涂料一体成型,舍弃了繁复的踢脚线收口问题,让全屋的质感达到一种和谐统一的状态。包括卫生间的隐形门同样外侧用涂料处理,让它与冰箱、洗衣机一样被隐藏于白色墙面之中,而打开门后,会瞬间被带有镭射效果的黑色马赛克墙砖包裹的空间所震撼,其中水滴造型的银镜及楼梯下方绿植景观区更是加强了这种对比的感受。
-
用户体验:在整个装修过程中,设计师的认真负责让我特别放心。不仅持续跟进施工进度,还会主动协调各方资源,确保每个环节都能按设计计划推进。即使遇到需要临时调整的情况,也能迅速给出解决方案,减少不必要的延误。这种全程在线的责任感,让我作为一个忙碌的业主省心不少。感谢我的设计师,我们现在已经成为可以继续交往的朋友。
0
0

认证 · 让您身份增值